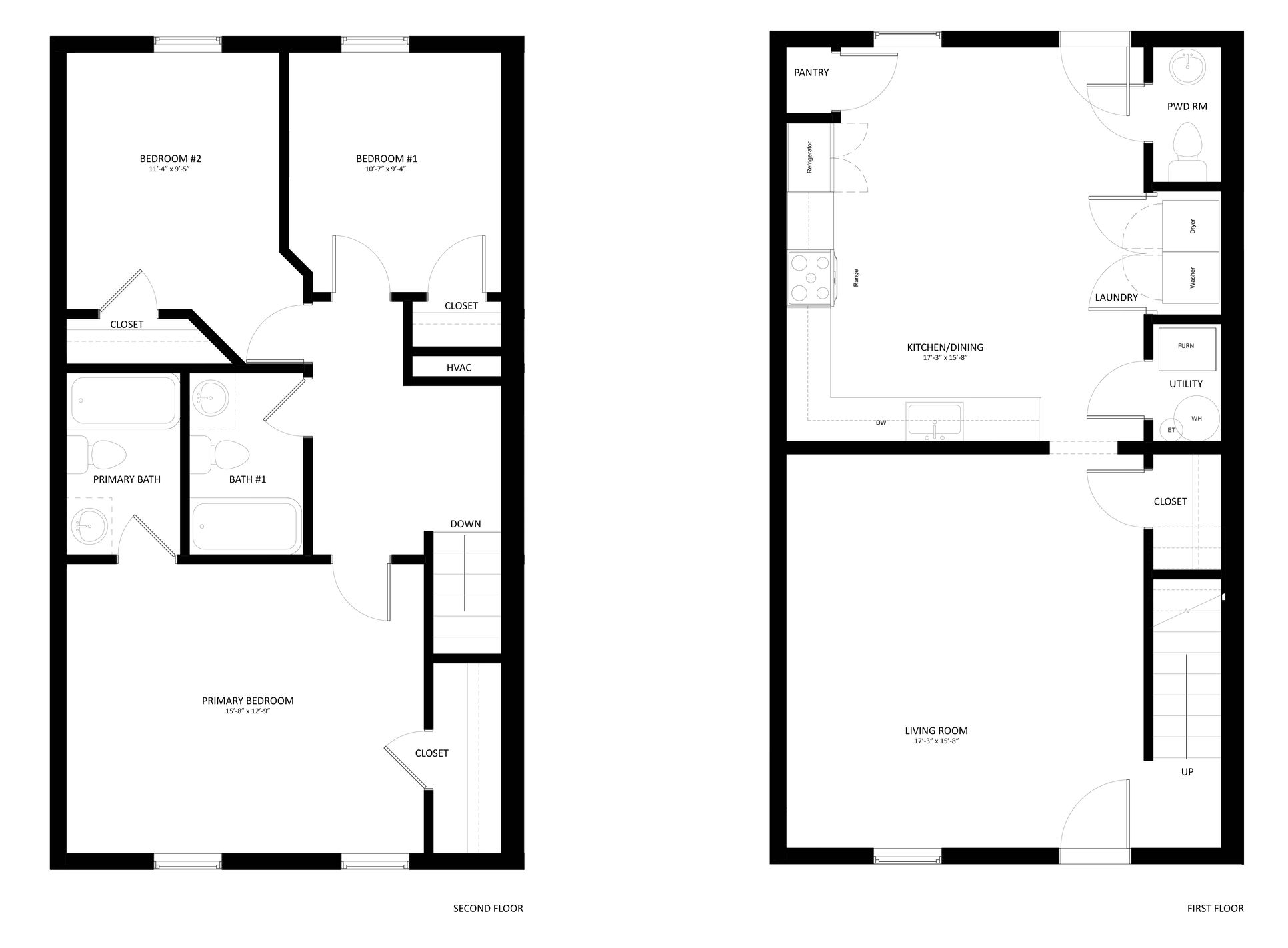
The Dahlia Plan Plan
Ready to build
Martinsburg WV 25405
Home by JBG Builders
The Price Range displayed reflects the base price of the homes built in this community.
You get to select from the many different types of homes built by this Builder and personalize your New Home with options and upgrades.
3 BR
2.5 BA
Claim this listing to update information, get access to exclusive tools and more!

Exterior 1/2
Overview
1 Half Bathroom
Single Family
The Dahlia Plan Plan Info
Welcome to this spacious and inviting townhouse boasting an impressive 1440 square feet of well-designed living space. From the moment you step inside you'll be captivated by the seamless blend of style and comfort that this home has to offer.
Neighborhood
Community location & sales center
<br/> Martinsburg, WV 25405
<br/> Martinsburg, WV 25405
888-790-3488
Schools near New Homes IN Martinsburg, WV
- Berkeley County Schools
- Berkeley Heights Elementary School
- Orchard View Intermediate School
- Martinsburg South Middle School
- Martinsburg High School
Actual schools may vary. Contact the builder for more information.
Amenities
Home details
Ready to build
Build the home of your dreams with the The Dahlia Plan plan by selecting your favorite options. For the best selection, pick your lot in New Homes IN Martinsburg, WV today!
Nearby schools
Berkeley County Schools
Berkeley Heights Elementary School
Elementary school. Grades PK to 3.
Public school
Teacher - student ratio: 1:17
Students enrolled: 680
304-267-3520
726 Hack Wilson Way, Martinsburg, WV, 25401
Orchard View Intermediate School
Elementary school. Grades 4 to 5.
Public school
Teacher - student ratio: 1:12
Students enrolled: 672
304-263-4143
1455 Delmar Orchard Rd, Martinsburg, WV, 25403
Martinsburg South Middle School
Middle school. Grades 6 to 8.
Public school
Teacher - student ratio: 1:12
Students enrolled: 747
304-267-3545
150 Bulldog Blvd, Martinsburg, WV, 25401
Martinsburg High School
High school. Grades 9 to 12.
Public school
Teacher - student ratio: 1:14
Students enrolled: 1471
304-267-3530
701 S Queen St, Martinsburg, WV, 25401
Actual schools may vary. We recommend verifying with the local school district, the school assignment and enrollment process.
Neighborhood amenities
ALDI
2.84 miles away
246 Retail Commons Pkwy
GIANT Food Stores LLC
3.19 miles away
901 Foxcroft Ave
MARTIN'S Food Market
3.19 miles away
901 Foxcroft Ave
MARTIN'S Food Market
3.89 miles away
1317 Old Courthouse Sq
sweetFrog
2.74 miles away
245 Retail Commons Pkwy
GNC
2.78 miles away
171 Retail Commons Pkwy
Sweet Inspirations LLC
3.04 miles away
839 Winchester Ave
Walmart Bakery
3.31 miles away
800 Foxcroft Ave
Everything Cheesecake LLC
3.34 miles away
324 W Stephen St
Crosswinds Cafe
1.14 miles away
170 Aviation Way
Made to Order
1.38 miles away
14686 Apple Harvest Dr
The Copper Still Pub
2.17 miles away
1911 Winchester Ave
Pizza Tonight LLC
2.26 miles away
340 Hack Wilson Way
Gypsy Soul Mobile Cafe & Personal Chef
2.37 miles away
2336 Charles Town Rd
Starbucks
2.69 miles away
436 Retail Commons Pkwy
Tropical Smoothie Cafe
2.78 miles away
171 Retail Commons Pkwy
Joe Muggs Coffee
2.84 miles away
300 Retail Commons Pkwy
Dunkin'
3.00 miles away
980 Foxcroft Ave
Starbucks
3.10 miles away
925 Foxcroft Ave
Gabe's
2.54 miles away
1291 Winchester Ave
Target
2.69 miles away
436 Retail Commons Pkwy
DICK'S Sporting Goods
2.74 miles away
398 Retail Commons Pkwy
Famous Footwear
2.84 miles away
292 Retail Commons Pkwy
Old Navy
2.84 miles away
172 Retail Commons Pkwy
Jose Phines Co
2.28 miles away
1832 Winchester Ave
Sam & Jake's Sports Bar
2.45 miles away
1517 Winchester Ave
Sara's Place LLC
2.54 miles away
3058 Charles Town Rd
Jasper's Sports Bar LLC
3.03 miles away
970 Foxcroft Ave
The Sycamore
3.28 miles away
1959 Golf Course Rd
Please note this information may vary. If you come across anything inaccurate, please contact us.
Builder details
JBG Builders
More new homes in Martinsburg, West Virginia
The Dahlia Plan Plan by JBG Builders
saved to favorites!
To see all the homes you’ve saved, visit the My Favorites section of your account.
Discover More Great Communities
Select additional listings for more information
Way to Go!
An agent will be in contact soon!