The Denton Plan
Ready to build
6056 Lundy Road, Theodore AL 36582
Home by D.R. Horton
Last updated 3 days ago
The Price Range displayed reflects the base price of the homes built in this community.
You get to select from the many different types of homes built by this Builder and personalize your New Home with options and upgrades.
4 BR
2 BA
2 GR
2,289 SQ FT
Claim this listing to update information, get access to exclusive tools and more!

Floorplan 0 1/3
Overview
1 Story
Single Family
The Denton Plan Info
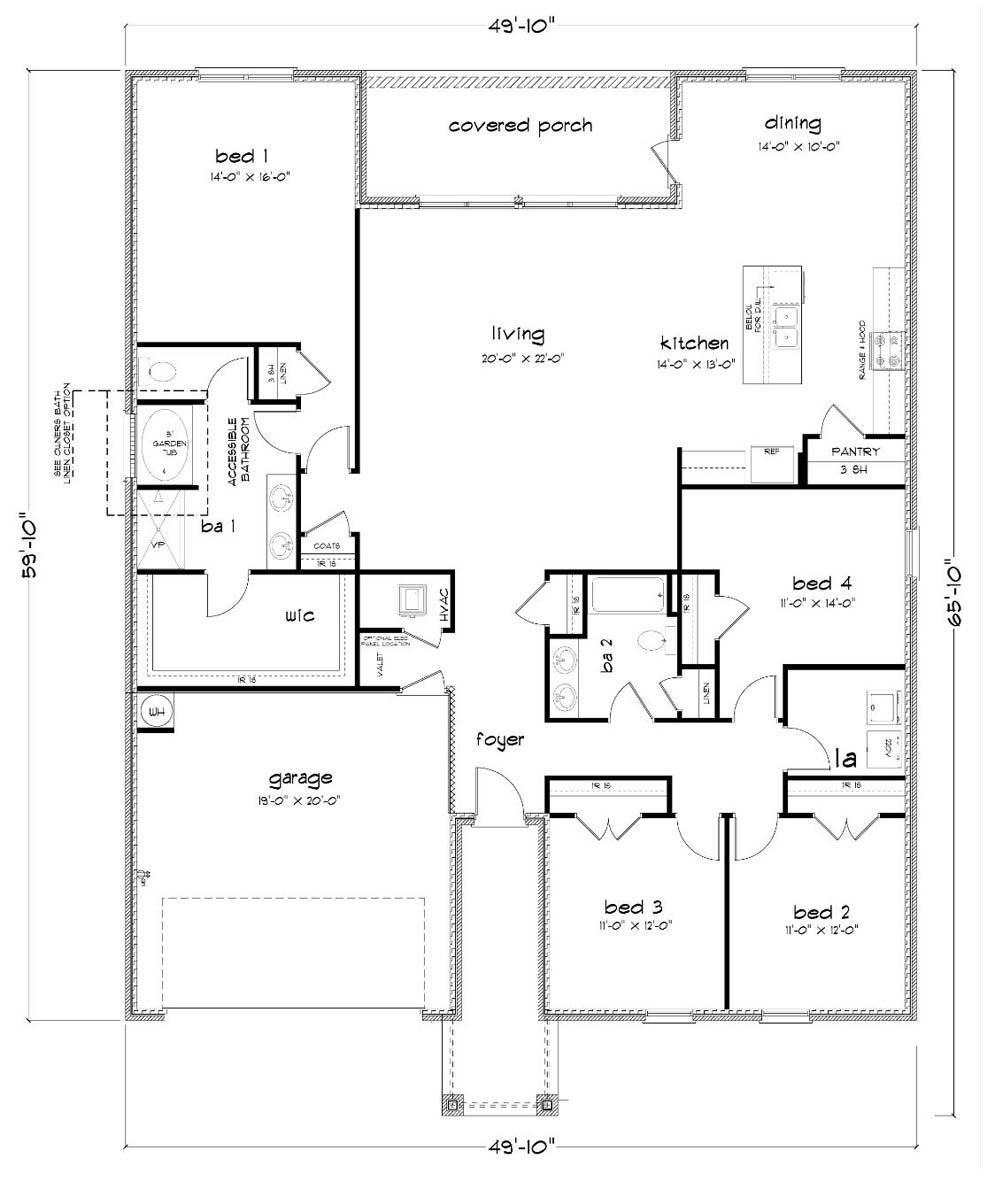
Step into the Denton at The Crossings, one of our best-selling floorplans. This home features four bedrooms, two bathrooms in over 2,200 square feet of comfortable living space with a two-car garage. As you enter the home through the front foyer, you walk past garage access, a short hallway with three bedrooms. These bedrooms have access to a full bathroom with double sink vanity and shower/tub combination. The laundry room is also positioned down this hallway. The well-appointed kitchen overlooks the living area, dining room, and covered porch. Entertaining is a breeze, as this popular single-family home features a spacious granite kitchen island, dining area and a spacious pantry for extra storage. The primary bedroom, located at the back corner of the home for privacy, has an ensuite bathroom with a double vanity, separate shower and garden tub with a spacious walk-in closet providing ample space for storage. Like all homes in The Crossings, the Denton includes a Home is Connected smart home technology package which allows you to control your home with your smart device while near or away. This home is also being built to Gold FORTIFIED HomeTM certification so see your Sales Representative for details. Pictures may be of a similar home and not necessarily of the subject property. Pictures are representational only. The Denton is a must-see floor plan so schedule your tour today!
Floor plan center
View floor plan details for this property.
- Floor Plans
- Exterior Images
- Interior Images
- Other Media
Neighborhood
Community location & sales center
6056 Lundy Road
Theodore, AL 36582
6056 Lundy Road
Theodore, AL 36582
888-790-3488
Schools near The Crossings
- Mobile County Schools
- Pearl Haskew Elementary School
- Hankins Middle School
- Theodore High School
Actual schools may vary. Contact the builder for more information.
Amenities
Home details
Ready to build
Build the home of your dreams with the The Denton plan by selecting your favorite options. For the best selection, pick your lot in The Crossings today!
Nearby schools
Mobile County Schools
Pearl Haskew Elementary School
Elementary school. Grades KG to 5.
Public school
Teacher - student ratio: 1:17
Students enrolled: 502
251-221-1850
7001 White Oak Dr, Irvington, AL, 36544
Hankins Middle School
Middle school. Grades 6 to 8.
Public school
Teacher - student ratio: 1:20
Students enrolled: 808
251-221-2200
5750 Katherine Hankins Dr, Theodore, AL, 36582
Theodore High School
High school. Grades 9 to 12.
Public school
Teacher - student ratio: 1:19
Students enrolled: 1280
251-221-3351
6201 Swedetown Rd N, Theodore, AL, 36582
Actual schools may vary. We recommend verifying with the local school district, the school assignment and enrollment process.
Builder details
D.R. Horton
In 1978, D.R. Horton broke ground on our first home in Fort Worth, Texas. Since that day, the company has defined its success not by bricks and mortar, but by the satisfaction of the families that make our houses their homes. Our foundation is a single, guiding principle: a value-first dedication to the individual needs of each and every one of our nation’s homebuyers.
From first-time homebuyers to empty nesters, our family of brands provides a home for every stage in life. Our highly-trained, market experts are where you want to live, from New Jersey to Hawaii, providing unique, personalized services tailored to your individual needs. But the real value comes from the quality construction we put into every home, and the peace of mind that comes with a premium-backed warranty from America’s Number One Homebuilder.
We’ve come a long way, and while more people choose our family of brands over any other builder in the country, we never forget the most important thing of all – the families that choose us for their place to call home.
So continue to live out those dreams, America, and know we’ll be here for you every step of the way.
More new homes in Theodore, Alabama
The Denton Plan by D.R. Horton
saved to favorites!
To see all the homes you’ve saved, visit the My Favorites section of your account.
Discover More Great Communities
Select additional listings for more information
Way to Go!
An agent will be in contact soon!
