229 New Albany Lane (The Florence)
Under Construction
San Marcos, TX 78666
Home by D.R. Horton
Last updated 2 days ago
The Price Range displayed reflects the base price of the homes built in this community.
You get to select from the many different types of homes built by this Builder and personalize your New Home with options and upgrades.
3 BR
2.5 BA
2 GR
1,853 SQ FT
Claim this listing to update information, get access to exclusive tools and more!

Floor Plan 1/10
Overview
1 Half Bathroom
1853 Sq Ft
2 Bathrooms
2 Car Garage
2 Stories
3 Bedrooms
Single Family
229 New Albany Lane (The Florence) Home Info
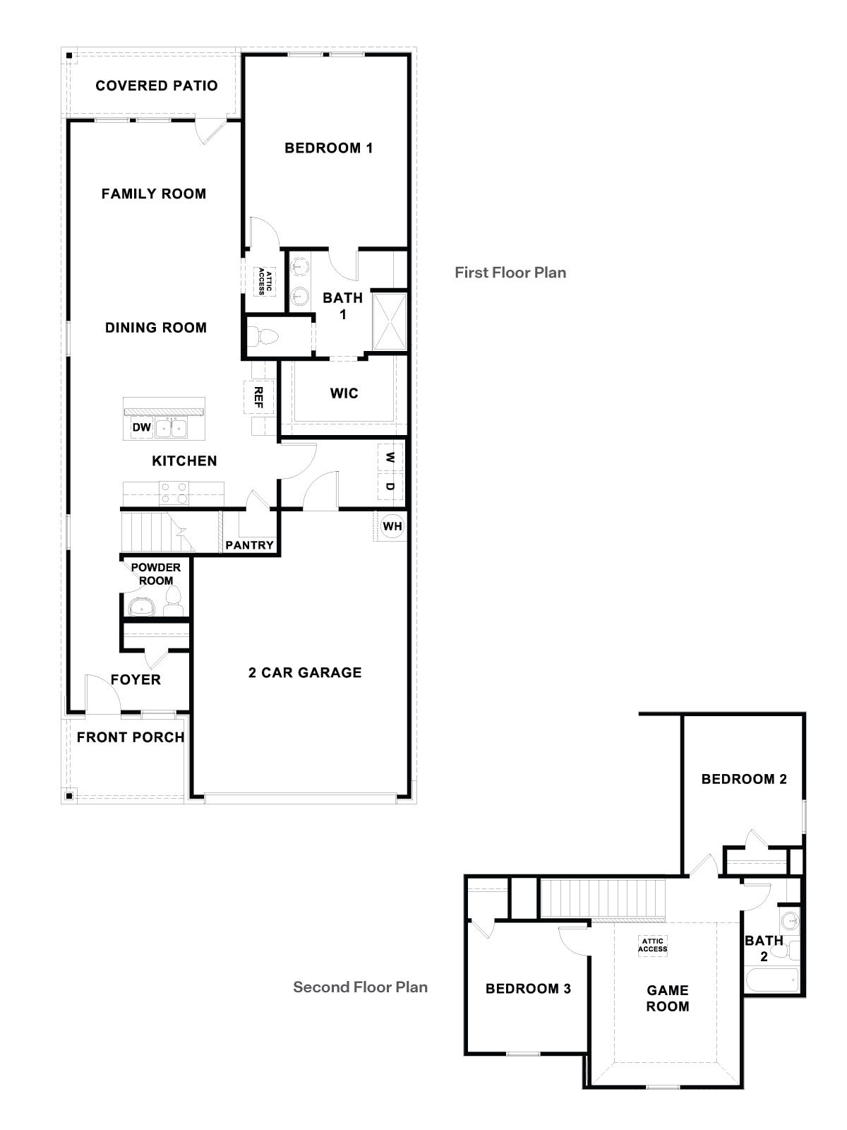
Check out the Florence floorplan at Whisper South in San Marcos, Texas. 229 New Albany Lane is a two-story new home has 3 bedrooms, 2.5 bathrooms, a gameroom and a 2 car garage across 1,852 square feet of modern living space. Our homes in Whisper South feature three-sided masonry exteriors and the Florence plan is available with 2 exterior options to choose from. Step inside the home from the covered front porch into the foyer. Passing the powder room and staircase, you'll enter the kitchen, dining, and family room. This open concept space was built to make cooking, eating, and entertaining a pleasant experience for family and friends. The kitchen features an island with undermount sink, quartz countertops, a pantry closet, 36" upper cabinets, and stainless-steel appliances, including a gas range. Enjoy the natural light from the side and rear windows. The oversized utility room is off the kitchen and connects to the garage, making it the perfect mud room. Completing the downstairs area is the primary bedroom, which includes an attached bathroom. This relaxing bathroom space features a walk-in shower, double vanity with marble counter tops, private toilet area with a door, and a huge walk-in closet. You will have plenty of space in this closet for your accessories and prized possessions. Upstairs are the two additional bedrooms, a full bathroom, and the gameroom. The secondary bathroom includes a shower/tub combination, and all secondary bedrooms have amble closet spac
Floor plan center
View floor plan details for this property.
- Floor Plans
- Exterior Images
- Interior Images
- Other Media
Neighborhood
Community location & sales center
213 Iron Mountain Cove
San Marcos, TX 78666
213 Iron Mountain Cove
San Marcos, TX 78666
888-355-8096
Schools near Whisper South
- San Marcos Consolidated Independent School District
- San Marcos High School
Actual schools may vary. Contact the builder for more information.
Amenities
Home details
Now building
This home is currently under construction at 229 New Albany Lane and will soon be available for move-in at Whisper South. Contact D.R. Horton today to lock in your options!
Nearby schools
San Marcos Consolidated Independent School District
High school. Grades 9 to 12.
- Public school
- Teacher - student ratio: 1:15
- Students enrolled: 2536
2601 Rattler Rd, San Marcos, TX, 78666
512-393-6800
Actual schools may vary. We recommend verifying with the local school district, the school assignment and enrollment process.
Neighborhood amenities
Walmart Supercenter
2.48 miles away
1015 Highway 80
H-E-B
2.97 miles away
641 E Hopkins St
Herberts Grocery Store
3.51 miles away
419 Riverside Dr
H-E-B
3.98 miles away
200 W Hopkins St
Vishva Inc
4.04 miles away
1501 Post Rd
EZ Eats Kitchen
2.08 miles away
641 Mill St
Nutrishop
2.44 miles away
1504 Aquarena Springs Dr
Walmart Bakery
2.48 miles away
1015 Highway 80
The New World Bakery, Inc.
3.06 miles away
310 Edwards Dr
Beta Alpha PSI
3.51 miles away
601 University Dr
Laredo Taco Company
1.56 miles away
1901 N Interstate 35
Hunt Brothers Pizza
1.74 miles away
1702 N Interstate 35
Hunt Brothers Pizza
1.83 miles away
1699 N Interstate 35
Laredo Taco Company
1.99 miles away
1550 N Interstate 35
EZ Eats Kitchen
2.08 miles away
641 Mill St
Shipley Do-nuts
2.36 miles away
1602 Aquarena Springs Dr
Teapioca Lounge
2.44 miles away
1504 Aquarena Springs Dr
Summer Moon Coffee
2.89 miles away
1180 Thorpe Ln
Starbucks
3.51 miles away
601 University Dr
Vitality Bowls
3.72 miles away
210 N Edward Gary St
Really Cool T Shirts
1.74 miles away
1951 Aquarena Springs Dr
Walmart Supercenter
2.48 miles away
1015 Highway 80
Cato Fashions
2.53 miles away
1023 Highway 80
Red Wing Shoe Store
2.79 miles away
200 Springtown Way
Barefoot Campus Outfitter
3.78 miles away
300 N LBJ Dr
Bad Habits Hookah Lounge
0.83 mile away
1111 Avalon Ave
Fatty's Smoke Shop
2.58 miles away
1330 Aquarena Springs Dr
Hwy 21 Bar & Club
2.98 miles away
6626 Camino Real
Growling
3.60 miles away
700 N LBJ Dr
Pie Society
3.60 miles away
700 N LBJ Dr
Please note this information may vary. If you come across anything inaccurate, please contact us.
Builder details
D.R. Horton
In 1978, D.R. Horton broke ground on our first home in Fort Worth, Texas. Since that day, the company has defined its success not by bricks and mortar, but by the satisfaction of the families that make our houses their homes. Our foundation is a single, guiding principle: a value-first dedication to the individual needs of each and every one of our nation’s homebuyers.
From first-time homebuyers to empty nesters, our family of brands provides a home for every stage in life. Our highly-trained, market experts are where you want to live, from New Jersey to Hawaii, providing unique, personalized services tailored to your individual needs. But the real value comes from the quality construction we put into every home, and the peace of mind that comes with a premium-backed warranty from America’s Number One Homebuilder.
We’ve come a long way, and while more people choose our family of brands over any other builder in the country, we never forget the most important thing of all – the families that choose us for their place to call home.
So continue to live out those dreams, America, and know we’ll be here for you every step of the way.
More new homes in San Marcos, Texas
229 New Albany Lane (The Florence) by D.R. Horton
saved to favorites!
To see all the homes you’ve saved, visit the My Favorites section of your account.
Discover More Great Communities
Select additional listings for more information
Way to Go!
An agent will be in contact soon!
