15515 Mint Patch Meadow (The Franklin)
Under Construction
Von Ormy, TX 78073
Home by D.R. Horton
Last updated 1 day ago
The Price Range displayed reflects the base price of the homes built in this community.
You get to select from the many different types of homes built by this Builder and personalize your New Home with options and upgrades.
5 BR
2.5 BA
2 GR
1,892 SQ FT
Claim this listing to update information, get access to exclusive tools and more!

Floor Plan 1/2
Overview
1 Half Bathroom
1892 Sq Ft
2 Bathrooms
2 Car Garage
2 Stories
5 Bedrooms
Single Family
15515 Mint Patch Meadow (The Franklin) Home Info
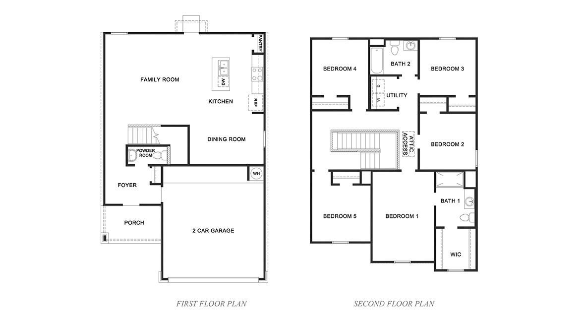
The Franklin plan is one of our two-story homes featured in Preserve at Medina in Von Ormy, TX. This new home layout offers 2 classic front exteriors, 5 bedrooms, 2.5 baths, 2 car-garage and 1891 square feet of comfortable living. Step inside The Franklin to find an elongated foyer opening to an open concept living room, kitchen, and dining area. The gourmet kitchen faces the living area so you don't miss a thing while cooking and includes quartz counter tops, stainless steel appliances and shaker style cabinetry. The main bedroom is located toward the front of the home on the second story and features an attractive attached bathroom with a walk-in shower, quartz countertops, a grand walk-in closet and plenty of storage space. The second story includes all secondary bedrooms, and two full bathrooms. You'll have carpeted floors in every bedroom and sheet vinyl flooring in your bathrooms and utility room. Additional features include sheet vinyl flooring in entry, living room, and all wet areas, quartz counter tops in all bathrooms and HOME IS CONNECTED base package. Using one central hub that talks to all the devices in your home, you can control the lights, thermostat and locks, all from your cellular device. Contact us today and find your home in Preserve at Medina by clicking the text with us button or the request information button.
Floor plan center
View floor plan details for this property.
- Floor Plans
- Exterior Images
- Interior Images
- Other Media
Neighborhood
Community location & sales center
4206 Marjoram Landing
Von Ormy, TX 78073
4206 Marjoram Landing
Von Ormy, TX 78073
888-355-8096
Schools near Preserve at Medina
- Southwest Independent School District
- Spicewood Park Elementary School
- Judith A Resnik Middle School
- Southwest Legacy High School
Actual schools may vary. Contact the builder for more information.
Amenities
Home details
Now building
This home is currently under construction at 15515 Mint Patch Meadow and will soon be available for move-in at Preserve at Medina. Contact D.R. Horton today to lock in your options!
Nearby schools
Southwest Independent School District
Elementary school. Grades PK to 5.
- Public school
- Teacher - student ratio: 1:14
- Students enrolled: 593
11303 Tilson Dr, San Antonio, TX, 78224
210-622-4999
Middle school. Grades 6 to 8.
- Public school
- Teacher - student ratio: 1:15
- Students enrolled: 818
4495 Sw Verano Pkwy Bldg 100, Von Ormy, TX, 78073
210-622-4810
High school. Grades 9 to 12.
- Public school
- Teacher - student ratio: 1:16
- Students enrolled: 2014
4495 Verano Pkwy, Von Ormy, TX, 78073
210-623-6539
Actual schools may vary. We recommend verifying with the local school district, the school assignment and enrollment process.
Neighborhood amenities
Points Food Park Four
2.31 miles away
19120 State Highway 16 S
Walmart Supercenter
5.15 miles away
8538 Interstate Highway 35 S
Lowe's Market
5.31 miles away
19860 Somerset Rd
Triple J Grocery
5.51 miles away
178 Iroquois St
Horizon Grocery
5.72 miles away
8614 S Zarzamora St
Walmart Bakery
5.15 miles away
8538 Interstate 35 S
Chica's Bakery Y Mas
5.29 miles away
9155 S Zarzamora St
La Popular Bakery
5.58 miles away
6020 Old Pearsall Rd
San Antonio Bakery
6.00 miles away
223 Palo Alto Rd
La Mejor Bakery
6.26 miles away
7205 Somerset Rd
Casias 2
1.20 miles away
17360 State Highway 16 S
Subway
2.03 miles away
15511 Applewhite Rd
La Fonda Express
2.03 miles away
15415 Applewhite Rd
Benjamin's Kitchen
2.32 miles away
12886 Fischer Rd
Stay For the Food
2.99 miles away
19861 State Highway 16 S
Cultura
4.49 miles away
9427 Poteet Jourdanton Fwy
Starbucks
6.51 miles away
2810 SW Military Dr
Coco Bliss
6.92 miles away
5032 W Military Dr
Dutch Bros Coffee
6.94 miles away
2227 SW Military Dr
Starbucks
7.11 miles away
1935 SW Military Dr
Dress For Less Fashions & More
5.07 miles away
9333 SW Loop 410
Jazmin Shoes
5.07 miles away
9333 SW Loop 410
J B Sporty Wear
5.07 miles away
9333 SW Loop 410
Texas Sunflower Boutique
5.07 miles away
9333 SW Loop 410
Western Fashion
5.07 miles away
9333 SW Loop 410
Ojos Locos Sports Cantina
5.17 miles away
7635 Interstate 35 Access Rd
Little Joe's Ice House
5.27 miles away
7405 Old Pearsall Rd
R & J Lounge
5.60 miles away
18086 Pleasanton Rd
Poco Loco Sports Bar
5.84 miles away
22855 State Highway 16 S
Buffalo Wild Wings
6.27 miles away
7823 S Zarzamora St
Please note this information may vary. If you come across anything inaccurate, please contact us.
Builder details
D.R. Horton
In 1978, D.R. Horton broke ground on our first home in Fort Worth, Texas. Since that day, the company has defined its success not by bricks and mortar, but by the satisfaction of the families that make our houses their homes. Our foundation is a single, guiding principle: a value-first dedication to the individual needs of each and every one of our nation’s homebuyers.
From first-time homebuyers to empty nesters, our family of brands provides a home for every stage in life. Our highly-trained, market experts are where you want to live, from New Jersey to Hawaii, providing unique, personalized services tailored to your individual needs. But the real value comes from the quality construction we put into every home, and the peace of mind that comes with a premium-backed warranty from America’s Number One Homebuilder.
We’ve come a long way, and while more people choose our family of brands over any other builder in the country, we never forget the most important thing of all – the families that choose us for their place to call home.
So continue to live out those dreams, America, and know we’ll be here for you every step of the way.
More new homes in Von Ormy, Texas
15515 Mint Patch Meadow (The Franklin) by D.R. Horton
saved to favorites!
To see all the homes you’ve saved, visit the My Favorites section of your account.
Discover More Great Communities
Select additional listings for more information
Way to Go!
An agent will be in contact soon!
