The Galen Plan
Ready to build
20 Brighton Drive, Crawfordville FL 32327
Home by D.R. Horton
at Wesley Park
Last updated 1 day ago
The Price Range displayed reflects the base price of the homes built in this community.
You get to select from the many different types of homes built by this Builder and personalize your New Home with options and upgrades.
4 BR
2.5 BA
2 GR
2,416 SQ FT
Claim this listing to update information, get access to exclusive tools and more!

Floorplan 0 1/1
Overview
1 Half Bathroom
2 Stories
Single Family
The Galen Plan Info
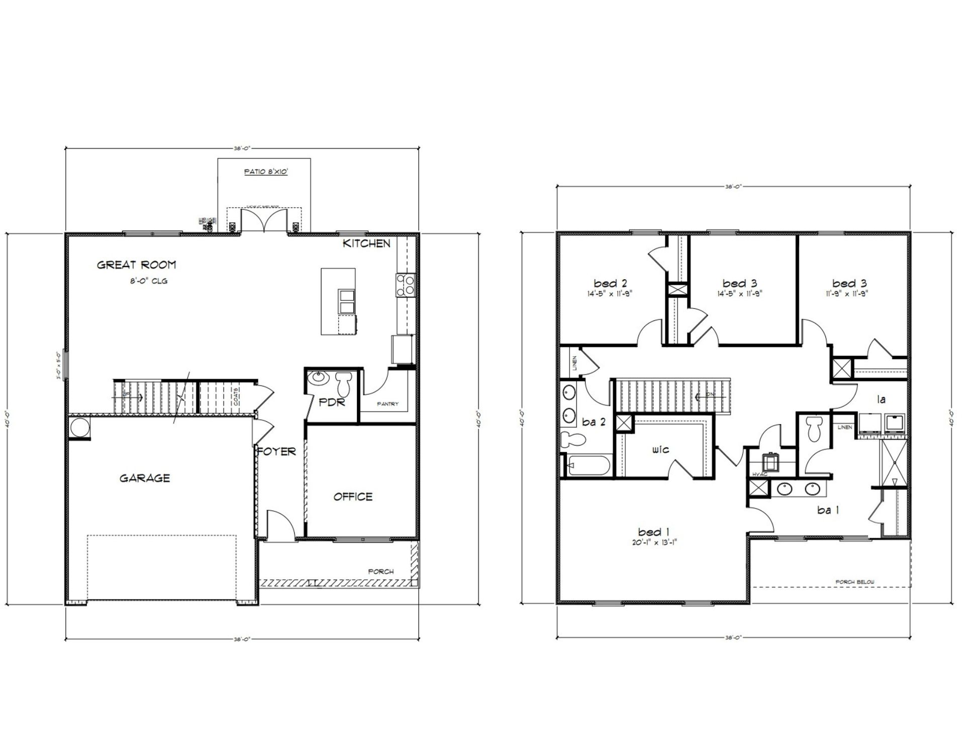
Introducing the Galen featured in Wesley Park, our new home community in Crawfordville, FL. This inviting two-story single-family home offers 2,416 square feet of modern living space with 4 bedrooms, 2.5 bathrooms, and a spacious 2-car garage, perfectly suited for families of all sizes. On the first floor, the Galen welcomes you with an open-concept layout ideal for everyday living and entertaining. The expansive great room flows seamlessly into the well-appointed kitchen, complete with a large center island, ample countertop space, and a walk-in pantry-perfect for meal prep, gatherings, or casual dining. Adjacent to the main living area is a versatile flex room. A convenient half bathroom completes the first-floor layout, offering comfort and accessibility for guests. On the second floor, all four bedrooms are thoughtfully positioned for privacy and comfort. The primary suite includes a spacious bedroom, an en-suite bathroom with dual vanities, a walk-n shower, and generous closet space. The three additional bedrooms each feature ample closet space and easy access to a well-designed shared full bathroom. A second-floor laundry room adds another layer of convenience, helping keep household routines running smoothly. Beyond the interior features and details, every home is equipped with Smart Home Technology. This thoughtful integration of technology ensures that your new home is perfectly designed to meet the demands of modern life. Enjoy quality materials and workmanshi
Floor plan center
View floor plan details for this property.
- Floor Plans
- Exterior Images
- Interior Images
- Other Media
Neighborhood
Community location & sales center
20 Brighton Drive
Crawfordville, FL 32327
20 Brighton Drive
Crawfordville, FL 32327
888-790-3488
Schools near Wesley Park
- Wakulla
- Crawfordville Elementary School
- Wakulla Middle School
- Wakulla High School
Actual schools may vary. Contact the builder for more information.
Amenities
Home details
Ready to build
Build the home of your dreams with the The Galen plan by selecting your favorite options. For the best selection, pick your lot in Wesley Park today!
Nearby schools
Wakulla
Crawfordville Elementary School
Elementary school. Grades KG to 5
Public school
Class ratio: 1: 17
Enrollment: 684
850-926-3641
379 Arran Rd, Crawfordville, FL, 32327
Wakulla Middle School
Middle school. Grades 6 to 8
Public school
Class ratio: 1: 15
Enrollment: 486
850-926-7143
22 Jean Dr, Crawfordville, FL, 32327
Wakulla High School
High school. Grades 9 to 12
Public school
Class ratio: 1: 18
Enrollment: 1418
850-926-7125
3237 Coastal Hwy, Crawfordville, FL, 32327
Actual schools may vary. We recommend verifying with the local school district, the school assignment and enrollment process.
Neighborhood amenities
Winn-Dixie
0.74 mile away
2629 Crawfordville Hwy
Publix
1.28 miles away
2343 Crawfordville Hwy
Walmart Supercenter
2.03 miles away
35 Mike Stewart
Walmart Bakery
2.03 miles away
35 Mike Stewart
Mary's Simply Sweet
2.05 miles away
39 Ross Dr
Myra Jean's Cakes
0.80 mile away
2669 Crawfordville Hwy
Domino's
0.81 mile away
2615 Crawfordville Hwy
McDonald's
0.83 mile away
2605 Crawfordville Hwy
Doughboy's Pizza-Crawfordville
0.84 mile away
2698B Crawfordville Hwy
Lex & Roll Sushi & Thai
0.85 mile away
2698 Crawfordville Hwy
Bealls
0.87 mile away
2646 Crawfordville Hwy
Cambet Couture LLC
1.22 miles away
158 Ochlockonee St
Walmart Supercenter
2.03 miles away
35 Mike Stewart
maurices
2.21 miles away
2000 Crawfordville Hwy
Blessed at Hand Service LLC
3.40 miles away
1626 Crawfordville Hwy
Skybox Sports Bar & Grill
0.85 mile away
2581 Crawfordville Hwy
BW's Grill
0.90 mile away
27 Azalea Dr
Kast Net
8.36 miles away
892 Woodville Hwy
Cooter Stew Cafe
9.39 miles away
859 Port Leon Dr
Please note this information may vary. If you come across anything inaccurate, please contact us.
Builder details
D.R. Horton
In 1978, D.R. Horton broke ground on our first home in Fort Worth, Texas. Since that day, the company has defined its success not by bricks and mortar, but by the satisfaction of the families that make our houses their homes. Our foundation is a single, guiding principle: a value-first dedication to the individual needs of each and every one of our nation’s homebuyers.
From first-time homebuyers to empty nesters, our family of brands provides a home for every stage in life. Our highly-trained, market experts are where you want to live, from New Jersey to Hawaii, providing unique, personalized services tailored to your individual needs. But the real value comes from the quality construction we put into every home, and the peace of mind that comes with a premium-backed warranty from America’s Number One Homebuilder.
We’ve come a long way, and while more people choose our family of brands over any other builder in the country, we never forget the most important thing of all – the families that choose us for their place to call home.
So continue to live out those dreams, America, and know we’ll be here for you every step of the way.
More new homes in Crawfordville, Florida
The Galen Plan by D.R. Horton
saved to favorites!
To see all the homes you’ve saved, visit the My Favorites section of your account.
Discover More Great Communities
Select additional listings for more information
Way to Go!
An agent will be in contact soon!
