12207 Douglas Fir Circle (The Grace)
Under Construction
Mustang Ridge, TX 78610
Home by D.R. Horton
at Durango
Last updated 2 days ago
The Price Range displayed reflects the base price of the homes built in this community.
You get to select from the many different types of homes built by this Builder and personalize your New Home with options and upgrades.
4 BR
2.5 BA
2 GR
1,952 SQ FT
Claim this listing to update information, get access to exclusive tools and more!

Floor Plan 1/3
Overview
1 Half Bathroom
1952 Sq Ft
2 Bathrooms
2 Car Garage
2 Stories
4 Bedrooms
Single Family
12207 Douglas Fir Circle (The Grace) Home Info
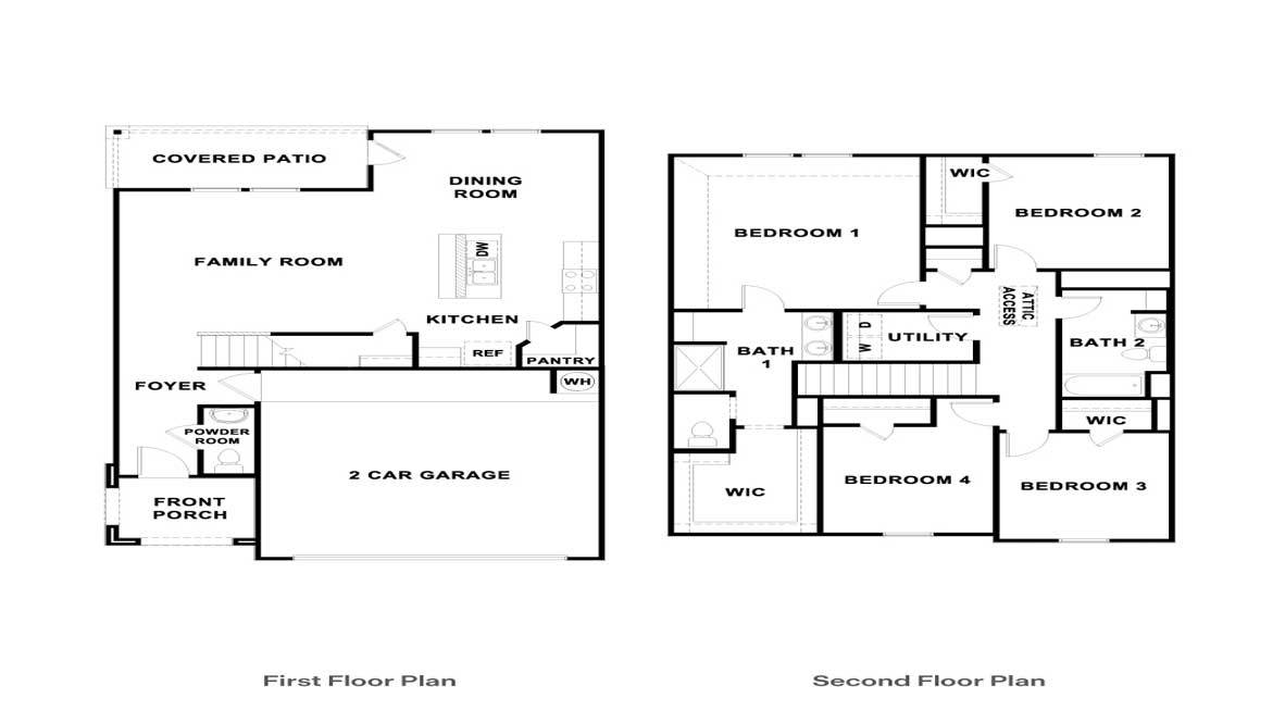
12207 Douglas Fir Circle is one of our two-story floorplans featured in our Durango community in Mustang Ridge, TX. The Grace is a two-story floorplan offering 1,937 sq. ft. of living space across 4 bedrooms and 2.5 bathrooms. As you enter the home through foyer, you'll see the convenient half bath next to the stairwell. Continuing into the home you will enter the wide-open living space. The family room flows into the dining area and kitchen which features quartz countertops, stainless steel appliances, and a large kitchen island. This space offers tons of natural lighting and looks out to the spacious covered patio. Upstairs you will find all of the bedrooms, giving the home a more private feel. The main bedroom, bedroom 1, offers a large walk-in closet and bathroom that includes two sinks and a walk-in shower. This home comes included with a professionally designed landscape package and an irrigation system as well as our America's Smart Home® package that offers devices such as the Qolsys IQ Panel, Video Doorbell, Alarm.com app, Honeywell Thermostat, Deako Smart Light Switch, Kwikset Smart lock, and more. Images are representative of plan and may vary as built. Contact us today and find your home at Durango.
Floor plan center
View floor plan details for this property.
- Floor Plans
- Exterior Images
- Interior Images
- Other Media
Neighborhood
Community location & sales center
13412 Roughstock Way
Mustang Ridge, TX 78610
13412 Roughstock Way
Mustang Ridge, TX 78610
888-355-8096
Schools near Durango
- Del Valle Independent School District
- Del Valle Middle School
- Del Valle High School
Actual schools may vary. Contact the builder for more information.
Amenities
Home details
Now building
This home is currently under construction at 12207 Douglas Fir Circle and will soon be available for move-in at Durango. Contact D.R. Horton today to lock in your options!
Nearby schools
Del Valle Independent School District
Middle school. Grades 6 to 8.
- Public school
- Teacher - student ratio: 1:14
- Students enrolled: 869
5500 Ross Rd, Del Valle, TX, 78617
512-386-3400
High school. Grades 9 to 12.
- Public school
- Teacher - student ratio: 1:17
- Students enrolled: 3460
5201 Ross Rd, Del Valle, TX, 78617
512-386-3200
Actual schools may vary. We recommend verifying with the local school district, the school assignment and enrollment process.
Neighborhood amenities
Creedmoor Country Grocery
3.60 miles away
12510 FM 1625
Dale Supermercado
6.09 miles away
4490 FM 1185
J D's Supermarket
6.51 miles away
9111 FM 812
Elroy & Ross Market
6.68 miles away
7200 Elroy Rd
La Moreliana Grocery Store
7.13 miles away
6112 US Highway 183 S
Fleas-Never Again
8.37 miles away
8708 Grelle Ln
Walmart Bakery
8.80 miles away
690 Old San Antonio Rd
La Reyna Bakery
8.93 miles away
5200 E William Cannon Dr
Mi Victoria Bakery
8.93 miles away
5200 E William Cannon Dr
Bestbakes
8.94 miles away
1480 Cabelas Dr
Hunt Brothers Pizza
2.20 miles away
10050 US Highway 183 S
Hunt Brothers Pizza
2.48 miles away
17500 Camino Real
Hermanos Restaurant & Bakery
2.52 miles away
13627 FM 1854
Fruter?A Las Mazorcas
2.55 miles away
6419 US-183 N
Ferrufino House of Coffee
6.84 miles away
7300 Coit Rd
Fresh Donuts
7.44 miles away
7930 Thaxton Rd
Del Valle Donuts
8.02 miles away
12800 Pearce Ln
Teal House Coffee & Bakery
8.06 miles away
1716 E Slaughter Ln
Five One Two Clothing
3.58 miles away
10105 Rodriguez Rd
Family Dollar
5.22 miles away
13151 Camino Real
Gomez Fashion
7.05 miles away
8714 FM 812
Walmart Supercenter
8.80 miles away
690 Old San Antonio Rd
Novedades
9.10 miles away
58 N Old Spanish Trl
Magic Hookah Bar
7.59 miles away
5613 US Highway 183 S
Arivn
8.66 miles away
1671 Main St
Chili's
8.68 miles away
420 Old San Antonio Rd
Chili's
9.22 miles away
9900 S Interstate 35
Little Woodrow's Southpark Meadows
9.36 miles away
9500 S Interstate 35
Please note this information may vary. If you come across anything inaccurate, please contact us.
Builder details
D.R. Horton
In 1978, D.R. Horton broke ground on our first home in Fort Worth, Texas. Since that day, the company has defined its success not by bricks and mortar, but by the satisfaction of the families that make our houses their homes. Our foundation is a single, guiding principle: a value-first dedication to the individual needs of each and every one of our nation’s homebuyers.
From first-time homebuyers to empty nesters, our family of brands provides a home for every stage in life. Our highly-trained, market experts are where you want to live, from New Jersey to Hawaii, providing unique, personalized services tailored to your individual needs. But the real value comes from the quality construction we put into every home, and the peace of mind that comes with a premium-backed warranty from America’s Number One Homebuilder.
We’ve come a long way, and while more people choose our family of brands over any other builder in the country, we never forget the most important thing of all – the families that choose us for their place to call home.
So continue to live out those dreams, America, and know we’ll be here for you every step of the way.
More new homes in Mustang Ridge, Texas
12207 Douglas Fir Circle (The Grace) by D.R. Horton
saved to favorites!
To see all the homes you’ve saved, visit the My Favorites section of your account.
Discover More Great Communities
Select additional listings for more information
Way to Go!
An agent will be in contact soon!
