The Isabella Plan
Ready to build
216 Vermilion Circle, Port Saint Joe FL 32456
Home by D.R. Horton
Last updated 24 hours ago
The Price Range displayed reflects the base price of the homes built in this community.
You get to select from the many different types of homes built by this Builder and personalize your New Home with options and upgrades.
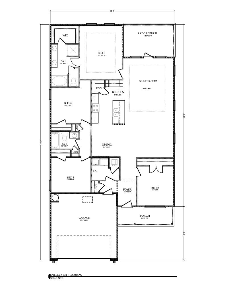
4 BR
2 BA
2 GR
1,900 SQ FT
Claim this listing to update information, get access to exclusive tools and more!

Floorplan 0 1/1
Overview
1 Story
1900 Sq Ft
2 Bathrooms
2 Car Garage
4 Bedrooms
Single Family
The Isabella Plan Info
Welcome to the Isabella, a new home floor plan at WindMark Beach in Port Saint Joe, Florida. The Isabella is a single-story floor plan at WindMark Beach. On the exterior of the home, you will see beautiful Hardie Board on all sides as well as a sodded yard with landscaped front flowerbed. As you enter this 4 bedroom, 2 bath home, you will see a spacious living concept. The interior features 9' ceilings throughout and engineered vinyl plank flooring throughout the home. This home has tray ceilings in the living room and master bedroom per plan as an added feature, granite countertops, and elegant doors. The kitchen has a center island with granite countertops, a nice size walk-in pantry and the stainless-steel appliances include smooth top range, microwave, and dishwasher. The kitchen opens to the living room, making your home more comfortable and open. The primary bedroom has its own bathroom featuring a spacious walk-in closet, a double vanity with granite countertops, and a separate shower and tub. Whatever room in this house you're in, you will feel right at home. This community features a town center complete with food, shopping, a gym, and more. There are sidewalks, boardwalks, bike paths, golf cart paths, and beach accesses along with a large two community pools and breathtaking views of the Gulf of Mexico. Homes are subject to prior sale or rent.
Floor plan center
View floor plan details for this property.
- Floor Plans
- Exterior Images
- Interior Images
- Other Media
Neighborhood
Community location & sales center
216 Vermilion Circle
Port Saint Joe, FL 32456
216 Vermilion Circle
Port Saint Joe, FL 32456
888-790-3488
Schools near Windmark Beach
- Gulf
Actual schools may vary. Contact the builder for more information.
Amenities
Home details
Ready to build
Build the home of your dreams with the The Isabella plan by selecting your favorite options. For the best selection, pick your lot in Windmark Beach today!
Neighborhood amenities
Bayside Bakery
2.19 miles away
182 Sea Glass Way
Mermaids Cove Cafe
7.68 miles away
260 Ponderosa Pines Dr
Crazy Beach Pizza
2.37 miles away
2902 Highway 98
Mr G's Smokehouse & Seafood Grill
2.37 miles away
9320 Co Road 386
Paul Gant's Barbeque Inc
2.37 miles away
Highway 98
Taco Bell
2.37 miles away
Ave B And Highway 98
Shipwreck Raw Bar
3.04 miles away
7008 W Highway 98
Gulf Glazed
3.84 miles away
8134 W Highway 98
Josie's Joe Coffee Company
3.84 miles away
8134 W Highway 98
No Name Cafe Books & More
3.95 miles away
325 Reid Ave
Caribbean Coffee
7.60 miles away
2802 Highway 98
Mermaids Cove Cafe
7.68 miles away
260 Ponderosa Pines Dr
Walter Green
3.63 miles away
135 W Highway 98
Merle Norman Cosmetic Studio
3.82 miles away
208 Reid Ave
Fuss
3.83 miles away
205 Reid Ave
Boutique By the Bay
4.00 miles away
414 Reid Ave
Family Dollar Dollar Tree
4.10 miles away
510 Cecil G Costin Sr Blvd
Shipwreck Raw Bar
3.04 miles away
7008 W Highway 98
Haughty Heron
3.73 miles away
117 Sailors Cove Dr
St Joe Bar
3.90 miles away
305 Reid Ave
The Brick Wall
4.00 miles away
414 Reid Ave
Please note this information may vary. If you come across anything inaccurate, please contact us.
Builder details
D.R. Horton
In 1978, D.R. Horton broke ground on our first home in Fort Worth, Texas. Since that day, the company has defined its success not by bricks and mortar, but by the satisfaction of the families that make our houses their homes. Our foundation is a single, guiding principle: a value-first dedication to the individual needs of each and every one of our nation’s homebuyers.
From first-time homebuyers to empty nesters, our family of brands provides a home for every stage in life. Our highly-trained, market experts are where you want to live, from New Jersey to Hawaii, providing unique, personalized services tailored to your individual needs. But the real value comes from the quality construction we put into every home, and the peace of mind that comes with a premium-backed warranty from America’s Number One Homebuilder.
We’ve come a long way, and while more people choose our family of brands over any other builder in the country, we never forget the most important thing of all – the families that choose us for their place to call home.
So continue to live out those dreams, America, and know we’ll be here for you every step of the way.
More new homes in Port Saint Joe, Florida
The Isabella Plan by D.R. Horton
saved to favorites!
To see all the homes you’ve saved, visit the My Favorites section of your account.
Discover More Great Communities
Select additional listings for more information
Way to Go!
An agent will be in contact soon!
