635 Fluted Shoals (The Knight)
Under Construction
Cibolo, TX 78108
Home by D.R. Horton
at Steele Creek
Last updated 1 day ago
The Price Range displayed reflects the base price of the homes built in this community.
You get to select from the many different types of homes built by this Builder and personalize your New Home with options and upgrades.
4 BR
2 BA
2 GR
1,901 SQ FT
Claim this listing to update information, get access to exclusive tools and more!

Floor Plan 1/2
Overview
1 Story
1901 Sq Ft
2 Bathrooms
2 Car Garage
4 Bedrooms
Single Family
635 Fluted Shoals (The Knight) Home Info
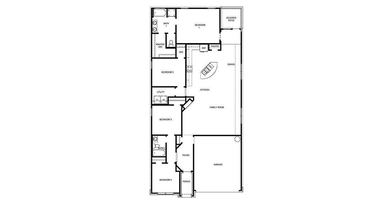
Welcome to The Knight, our largest single-story home offered at Steele Creek in Cibolo, TX. Featuring 3 classic front exterior, 4 bedrooms, 2 bathrooms, 2-car garage and 1901 square feet of living space, this floor plan is sure to turn heads. Spacious, comfortable living greets you at the door with a long foyer leading to a decorative wall nook and a grand, open concept living room, kitchen and dining area. The kitchen is complete with beautiful quartz countertops, stainless steel appliances, classic white subway tile backsplash, and an oversized kitchen island with a deep single basin sink. Your blended living room and dining area feature luxury hard surface flooring and plenty of windows, creating a light and bright space for living and entertaining. The private main bedroom is located at the back of the home and features a large, relaxing ensuite bathroom complete with a separate tub and walk-in shower, dual vanities, a water closet, and spacious walk-in closet. All secondary bedrooms offer quality carpeted floors and a closet. These rooms are versatile! Use them as bedrooms, offices, work out rooms or other bonus spaces. Additional features include tall 9-foot ceilings, 2-inch faux wood blinds throughout the home, ceramic tile in the bathrooms and utility room, pre-plumb for water softener loop, and full yard landscaping and irrigation. You'll enjoy added security in your new home with our Home is Connected features. Using one central hub that talks to all t
Floor plan center
View floor plan details for this property.
- Floor Plans
- Exterior Images
- Interior Images
- Other Media
Neighborhood
Community location & sales center
404 Steele Rapids
Cibolo, TX 78108
404 Steele Rapids
Cibolo, TX 78108
888-355-8096
Schools near Steele Creek
- Schertz-cibolo-u City Independent School District
- J. Frank Dobie Junior High School
- Byron P. Steele Ii High School
Actual schools may vary. Contact the builder for more information.
Amenities
Home details
Now building
This home is currently under construction at 635 Fluted Shoals and will soon be available for move-in at Steele Creek. Contact D.R. Horton today to lock in your options!
Nearby schools
Schertz-cibolo-u City Independent School District
Middle school. Grades 7 to 8.
- Public school
- Teacher - student ratio: 1:17
- Students enrolled: 1347
395 W Borgfeld Rd, Cibolo, TX, 78108
210-619-4100
High school. Grades 9 to 12.
- Public school
- Teacher - student ratio: 1:18
- Students enrolled: 2716
1300 Fm 1103, Cibolo, TX, 78108
210-619-4000
Actual schools may vary. We recommend verifying with the local school district, the school assignment and enrollment process.
Neighborhood amenities
H-E-B
0.67 mile away
850 FM 1103
Walmart Supercenter
1.02 miles away
602 Cibolo Valley Dr
Cibolo Market
2.48 miles away
3859 Cibolo Valley Dr
H-E-B plus!
3.86 miles away
17460 Interstate 35 N
Walmart Supercenter
3.98 miles away
6102 FM 3009
Walmart Bakery
1.02 miles away
602 Cibolo Valley Dr
Gourmet CCM Confections
2.39 miles away
628 Cavan
Glass Cow Cakery
3.29 miles away
3609 Whitefield Sq
Brew K Cafe
0.40 mile away
121 Cibolo CMNS
Itachi Teppanyaki Express
0.78 mile away
100 N Main St
Old Main Ice House
0.78 mile away
110 N Main St
1908 House of Wine & Ale
0.79 mile away
207 N Main St
Catalano Pizzeria
0.79 mile away
102 N Main St
The Rooted Fork
0.80 mile away
201 N Main St
Kings Cross Coffee LLC
1.76 miles away
209 Highland Pl
Starbucks
2.01 miles away
21550 Interstate 35 N
Starbucks
2.37 miles away
917 FM 3009
Cibolo Coffee Haus Inc
2.51 miles away
3893 Cibolo Valley Dr
Walmart Supercenter
1.02 miles away
602 Cibolo Valley Dr
Family Dollar
2.47 miles away
1072 FM 78
Graphictwear
2.60 miles away
1641 Yucca Park
Unique Boutique on Main Street
3.10 miles away
618 Main St
All Seasons Sportswear
3.15 miles away
1068 Randolph Ave
Old Main Ice House
0.78 mile away
110 N Main St
1908 House of Wine & Ale
0.79 mile away
207 N Main St
Buffalo Wild Wings GO
1.12 miles away
778 Cibolo Valley Dr
Cibolo Self Service
2.01 miles away
505 FM 78 Rd
Anchor Bar-Schertz
3.16 miles away
3900 FM 3009
Please note this information may vary. If you come across anything inaccurate, please contact us.
Builder details
D.R. Horton
In 1978, D.R. Horton broke ground on our first home in Fort Worth, Texas. Since that day, the company has defined its success not by bricks and mortar, but by the satisfaction of the families that make our houses their homes. Our foundation is a single, guiding principle: a value-first dedication to the individual needs of each and every one of our nation’s homebuyers.
From first-time homebuyers to empty nesters, our family of brands provides a home for every stage in life. Our highly-trained, market experts are where you want to live, from New Jersey to Hawaii, providing unique, personalized services tailored to your individual needs. But the real value comes from the quality construction we put into every home, and the peace of mind that comes with a premium-backed warranty from America’s Number One Homebuilder.
We’ve come a long way, and while more people choose our family of brands over any other builder in the country, we never forget the most important thing of all – the families that choose us for their place to call home.
So continue to live out those dreams, America, and know we’ll be here for you every step of the way.
More new homes in Cibolo, Texas
635 Fluted Shoals (The Knight) by D.R. Horton
saved to favorites!
To see all the homes you’ve saved, visit the My Favorites section of your account.
Discover More Great Communities
Select additional listings for more information
Way to Go!
An agent will be in contact soon!
