The Knight Plan
Ready to build
15134 Pinyon Jay, San Antonio TX 78253
Home by D.R. Horton
Last updated 1 day ago
The Price Range displayed reflects the base price of the homes built in this community.
You get to select from the many different types of homes built by this Builder and personalize your New Home with options and upgrades.
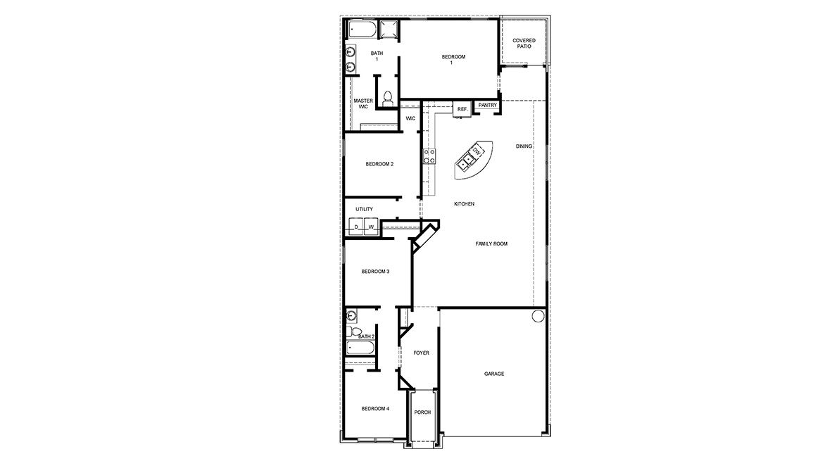
4 BR
2 BA
2 GR
1,901 SQ FT
Claim this listing to update information, get access to exclusive tools and more!

Floorplan 0 1/1
Overview
1 Story
1901 Sq Ft
2 Bathrooms
2 Car Garage
4 Bedrooms
Single Family
The Knight Plan Info
Welcome to The Knight, our largest single-story home offered at Redbird Ranch in San Antonio, TX. Featuring 3 classic front exterior, 4 bedrooms, 2 bathrooms, 2-car garage and 1901 square feet of living space, this floor plan is sure to turn heads. Spacious, comfortable living greets you at the door with a long foyer leading to a decorative wall nook and a grand, open concept living room, kitchen and dining area. The kitchen is complete with beautiful quartz countertops, stainless steel appliances, classic white subway tile backsplash, and an oversized kitchen island with a deep single basin sink. Your blended living room and dining area feature luxury hard surface flooring and plenty of windows, creating a light and bright space for living and entertaining. The private main bedroom is located at the back of the home and features a large, relaxing ensuite bathroom complete with a separate tub and walk-in shower, dual vanities, a water closet, and spacious walk-in closet. All secondary bedrooms offer quality carpeted floors and a closet. These rooms are versatile! Use them as bedrooms, offices, work out rooms or other bonus spaces. Additional features include tall 9-foot ceilings, 2-inch faux wood blinds throughout the home, ceramic tile in the bathrooms and utility room, pre-plumb for water softener loop, and full yard landscaping and irrigation. You'll enjoy added security in your new home with our Home is Connected features. Using one central hub that talks to
Floor plan center
View floor plan details for this property.
- Floor Plans
- Exterior Images
- Interior Images
- Other Media
Neighborhood
Community location & sales center
15134 Pinyon Jay
San Antonio, TX 78253
15134 Pinyon Jay
San Antonio, TX 78253
888-355-8096
Schools near Redbird Ranch
- Medina Valley Independent School District
- Northside Independent School District
- Herbert G. Boldt Elementary School
- Bernal Middle School
Actual schools may vary. Contact the builder for more information.
Amenities
Home details
Ready to build
Build the home of your dreams with the The Knight plan by selecting your favorite options. For the best selection, pick your lot in Redbird Ranch today!
Nearby schools
Northside Independent School District
Elementary school. Grades PK to 5.
- Public school
- Teacher - student ratio: 1:16
- Students enrolled: 863
310 Hollimon Pkwy, San Antonio, TX, 78253
210-398-2000
Middle school. Grades 6 to 8.
- Public school
- Teacher - student ratio: 1:17
- Students enrolled: 1495
14045 Bella Vista Pl, San Antonio, TX, 78253
210-398-1900
Actual schools may vary. We recommend verifying with the local school district, the school assignment and enrollment process.
Neighborhood amenities
H-E-B
1.36 miles away
14325 Potranco Rd
H-E-B
3.55 miles away
12355 Potranco Rd
Potranco Food Market
4.59 miles away
12135 Potranco Rd
Costco Wholesale
4.98 miles away
191 W Loop 1604 S
Walmart Supercenter
5.01 miles away
11210 Potranco Rd
Funnel Cake Fanatics LLC
2.76 miles away
135 Fontana Albero
Juanys Bakery
4.59 miles away
12024 Potranco Rd
Walmart Bakery
5.01 miles away
11210 Potranco Rd
Nothing Bundt Cakes
5.11 miles away
407 W Loop 1604 S
El Rodeo Mexican Grill
0.58 mile away
15284 FM 1957
Donut Palace
0.64 mile away
15122 FM 1957
SONIC Drive-in
0.71 mile away
15090 FM 1957
Chick-fil-A
1.29 miles away
14521 Potranco Rd
McDonald's
1.43 miles away
14250 Potranco Rd
Donut Palace
0.64 mile away
15122 FM 1957
Starbucks
1.63 miles away
14212 Potranco Rd
Cajun Coffee Shack
4.51 miles away
11618 FM 1957
Shipley Do-nuts
4.69 miles away
11440 Potranco Rd
Dunkin'
4.79 miles away
11330 Potranco Rd
High Line Boutique
2.47 miles away
3310 Farley Rnch
Seabee Cruise Box
4.50 miles away
11606 Lemonmint Pkwy
Victoria's Secret & PINK
4.59 miles away
5437 W Loop 1604 N
Walmart Supercenter
5.01 miles away
11210 Potranco Rd
Old Navy Outlet
5.03 miles away
415 W Loop 1604 S
Buffalo Wild Wings
4.59 miles away
5411 West 1604 North
The Rusty Nail
4.59 miles away
15122 Potranco Rd
Texas Spirits Saloon
5.31 miles away
3940 FM 471 N
Senoritas Wine Bar
5.65 miles away
5514 Lone Star Pkwy
Pepper Patch Lounge
5.84 miles away
1827 Highland Mist Ln
Please note this information may vary. If you come across anything inaccurate, please contact us.
Builder details
D.R. Horton
In 1978, D.R. Horton broke ground on our first home in Fort Worth, Texas. Since that day, the company has defined its success not by bricks and mortar, but by the satisfaction of the families that make our houses their homes. Our foundation is a single, guiding principle: a value-first dedication to the individual needs of each and every one of our nation’s homebuyers.
From first-time homebuyers to empty nesters, our family of brands provides a home for every stage in life. Our highly-trained, market experts are where you want to live, from New Jersey to Hawaii, providing unique, personalized services tailored to your individual needs. But the real value comes from the quality construction we put into every home, and the peace of mind that comes with a premium-backed warranty from America’s Number One Homebuilder.
We’ve come a long way, and while more people choose our family of brands over any other builder in the country, we never forget the most important thing of all – the families that choose us for their place to call home.
So continue to live out those dreams, America, and know we’ll be here for you every step of the way.
More new homes in San Antonio, Texas
The Knight Plan by D.R. Horton
saved to favorites!
To see all the homes you’ve saved, visit the My Favorites section of your account.
Discover More Great Communities
Select additional listings for more information
Way to Go!
An agent will be in contact soon!
