The Lakeside Plan
Ready to build
9766 Reserve Boulevard, Biloxi MS 39532
Home by D.R. Horton
Last updated 2 days ago
The Price Range displayed reflects the base price of the homes built in this community.
You get to select from the many different types of homes built by this Builder and personalize your New Home with options and upgrades.
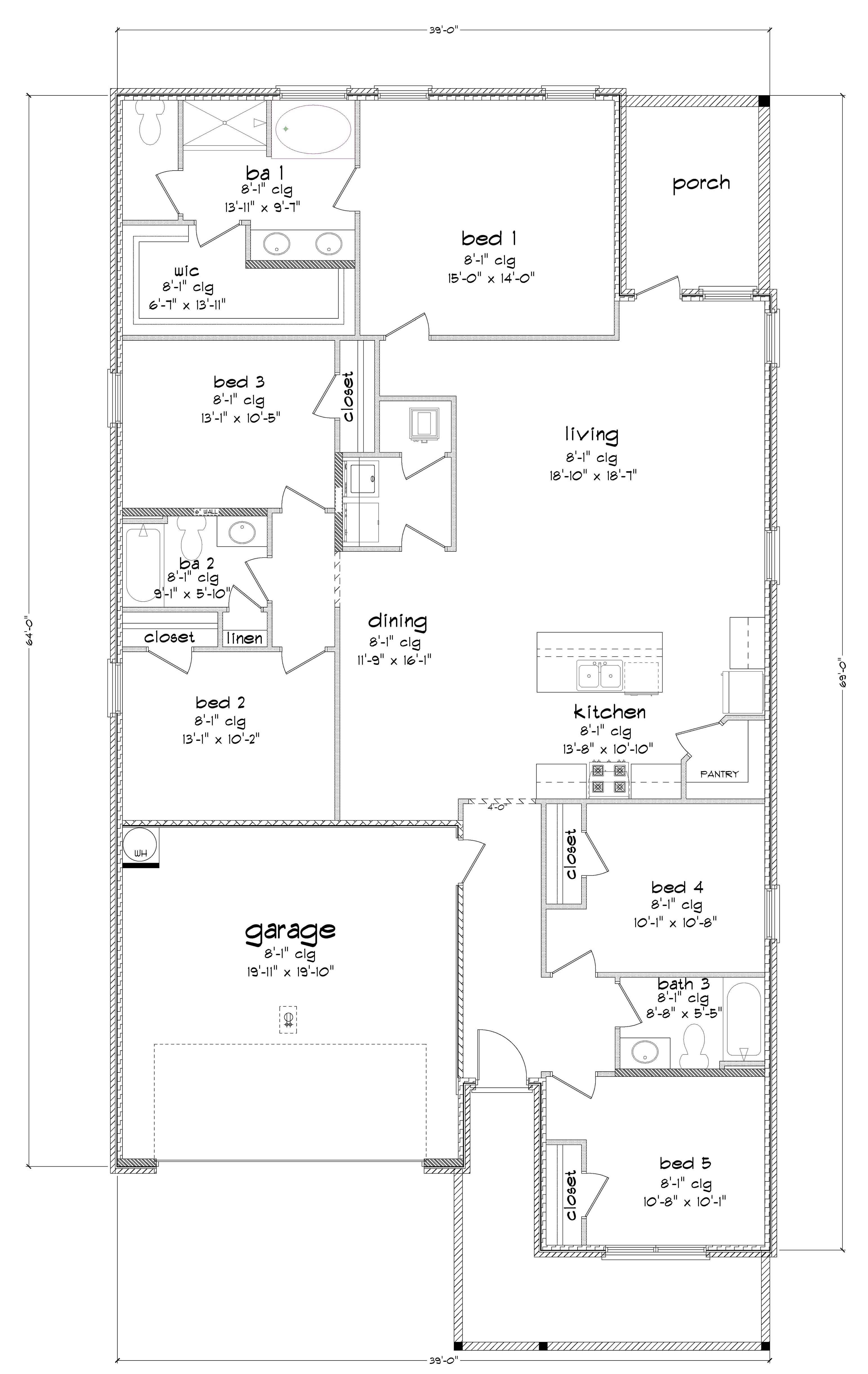
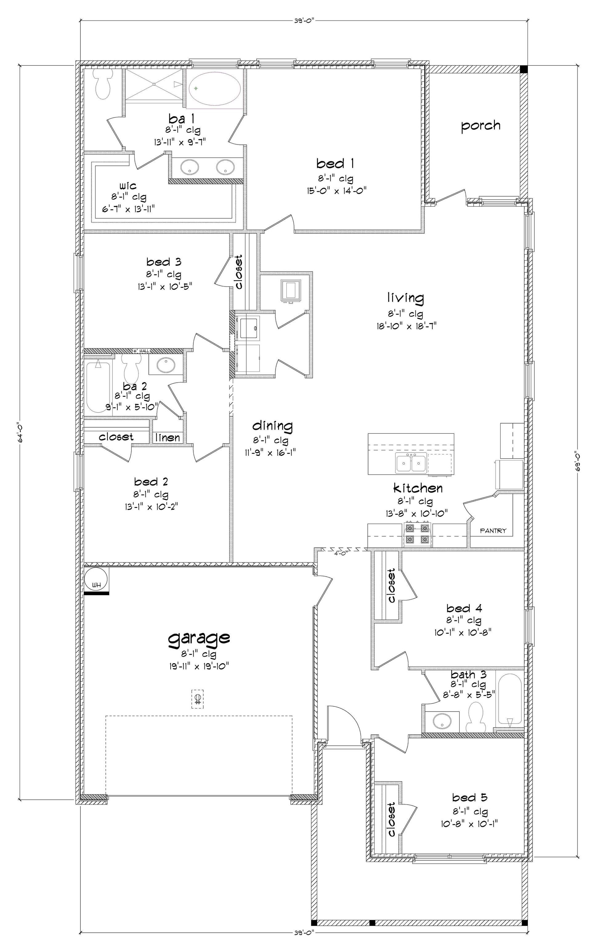
5 BR
3 BA
2 GR
2,100 SQ FT
Claim this listing to update information, get access to exclusive tools and more!

Floorplan 0 1/1
Overview
1 Story
2 Car Garage
2100 Sq Ft
3 Bathrooms
5 Bedrooms
Single Family
The Lakeside Plan Info
This Lakeside offers 5-bedrooms, 3-bathrooms in over 2,000 square feet with a 2-car garage. As you enter, you'll find access to two bedrooms that share a full bathroom. To the opposite side of the home are two bedrooms, a full bathroom with a linen closet and the laundry room. The kitchen boasts a stunning design featuring granite countertops, spacious island bar, stainless-steel appliances and a corner pantry. Seamlessly connected to the family and dining room, this kitchen is ideal for hosting gatherings and enjoying quality time with loved ones. The living area has back door access to a covered porch, further enhancing the relaxing ambiance. The primary bedroom offers ample space and is accompanied by an adjoining ensuite that showcases a double vanity with granite countertop, a generous standing shower, relaxing garden tub and a walk-in closet that can accommodate the most ambitious wardrobe. The Lakeside includes a Home is Connected smart home technology package which allows you to control your home with your smart device while near or away. This home is also being built to Gold FORTIFIED HomeTM certification so see your Sales Representative for details. Pictures may be of a similar home and not necessarily of the subject property. Pictures are representational only. Schedule your tour today!
Floor plan center
View floor plan details for this property.
- Floor Plans
- Exterior Images
- Interior Images
- Other Media
Neighborhood
Community location & sales center
9766 Reserve Boulevard
Biloxi, MS 39532
9766 Reserve Boulevard
Biloxi, MS 39532
888-790-3488
Schools near The Reserve at Carr Bridge
- Harrison County School District
Actual schools may vary. Contact the builder for more information.
Amenities
Home details
Ready to build
Build the home of your dreams with the The Lakeside plan by selecting your favorite options. For the best selection, pick your lot in The Reserve at Carr Bridge today!
Neighborhood amenities
Woolmarket Grocery
5.88 miles away
12874 Lorraine Rd
Super C-Three Dad's Cooking
7.53 miles away
12515 Three Rivers Rd
Walmart Neighborhood Market
8.54 miles away
1820A Popps Ferry Rd
Walmart Supercenter
8.90 miles away
3615 Sangani Blvd
E Z Food Mart
8.94 miles away
4529 Popps Ferry Rd
Walmart Bakery
8.19 miles away
1820A Popps Ferry Rd
GNC
8.63 miles away
3821 Promenade Pkwy
Smallcakes Cupcakery
8.69 miles away
3920 Promenade Pkwy
Walmart Bakery
8.90 miles away
3615 Sangani Blvd
Subway
3.65 miles away
19485 Highway 67
Mae Lee's BBQ
5.05 miles away
22361 Ira Johnson Rd
Cannery Bar & Grill
5.82 miles away
13066 Shriners Blvd
Love Shack
5.98 miles away
8244 Woolmarket Rd
Liz & Nomiegs Gourmet Eats
6.45 miles away
13427 Grady Dr
The Grind Coffee & Nosh
8.37 miles away
934 Cedar Lake Rd
Shipley Do-nuts
8.41 miles away
896 Vee St
Dunkin'
8.41 miles away
919 Cedar Lake Rd
Starbucks
8.60 miles away
3868 Promenade Pkwy
Starbucks
8.67 miles away
3867 Promenade Pkwy
Family Dollar
5.77 miles away
13000 Lorraine Rd
Family Dollar
7.35 miles away
13111 Three Rivers Rd
Family Dollar
8.36 miles away
13137 Dedeaux Rd
Gabrielle's
8.42 miles away
1765 Popps Ferry Rd
The Sequin Siren
8.42 miles away
1765 Popps Ferry Rd
Orangutang's Daiquiris & Bar
6.95 miles away
12097 Sandbar Ln
Rookies Sports Bar & Grill
7.35 miles away
24376 Airey Tower Rd
Big Jim's
7.49 miles away
17422 Highway 49
Applebee's Grill + Bar
8.30 miles away
951 Cedar Lake Rd
Tailgaters Tailgaters
8.38 miles away
1777 Popps Ferry Rd
Please note this information may vary. If you come across anything inaccurate, please contact us.
Builder details
D.R. Horton
In 1978, D.R. Horton broke ground on our first home in Fort Worth, Texas. Since that day, the company has defined its success not by bricks and mortar, but by the satisfaction of the families that make our houses their homes. Our foundation is a single, guiding principle: a value-first dedication to the individual needs of each and every one of our nation’s homebuyers.
From first-time homebuyers to empty nesters, our family of brands provides a home for every stage in life. Our highly-trained, market experts are where you want to live, from New Jersey to Hawaii, providing unique, personalized services tailored to your individual needs. But the real value comes from the quality construction we put into every home, and the peace of mind that comes with a premium-backed warranty from America’s Number One Homebuilder.
We’ve come a long way, and while more people choose our family of brands over any other builder in the country, we never forget the most important thing of all – the families that choose us for their place to call home.
So continue to live out those dreams, America, and know we’ll be here for you every step of the way.
More new homes in Biloxi, Mississippi
The Lakeside Plan by D.R. Horton
saved to favorites!
To see all the homes you’ve saved, visit the My Favorites section of your account.
Discover More Great Communities
Select additional listings for more information
Way to Go!
An agent will be in contact soon!
