124 Dewberry Drive (The Lakeside)
Under Construction
Lucedale, MS 39452
Home by D.R. Horton
Last updated 24 hours ago
The Price Range displayed reflects the base price of the homes built in this community.
You get to select from the many different types of homes built by this Builder and personalize your New Home with options and upgrades.
5 BR
3 BA
2 GR
2,100 SQ FT
Claim this listing to update information, get access to exclusive tools and more!

Floor Plan 1/1
Overview
1 Story
2 Car Garage
2100 Sq Ft
3 Bathrooms
5 Bedrooms
Single Family
124 Dewberry Drive (The Lakeside) Home Info
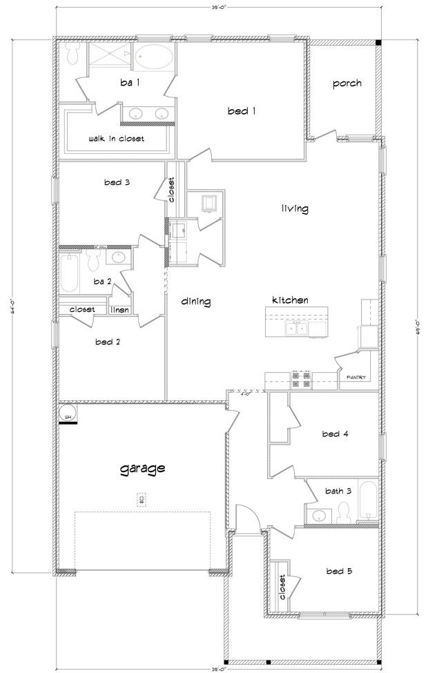
Welcome to 124 Dewberry Drive at our Magnolia Farms community in Lucedale, Mississippi. This Lakeside offers 5-bedrooms, 3-bathrooms in over 2,000 square feet with a 2-car garage. As you enter, you'll find access to two bedrooms that share a full bathroom. To the opposite side of the home are two bedrooms, a full bathroom with a linen closet and the laundry room. The kitchen boasts a stunning design featuring granite countertops, spacious island bar, stainless-steel appliances and a corner pantry. Seamlessly connected to the family and dining room, this kitchen is ideal for hosting gatherings and enjoying quality time with loved ones. The living area has back door access to a covered porch, further enhancing the relaxing ambiance. The primary bedroom offers ample space and is accompanied by an adjoining ensuite that showcases a double vanity with granite countertop, a generous standing shower, relaxing garden tub and a walk-in closet that can accommodate the most ambitious wardrobe. The Lakeside includes a Home is Connected smart home technology package which allows you to control your home with your smart device while near or away. This home is also being built to Gold FORTIFIED HomeTM certification so see your Sales Representative for details. Pictures may be of a similar home and not necessarily of the subject property. Pictures are representational only. Schedule your tour today!
Floor plan center
View floor plan details for this property.
- Floor Plans
- Exterior Images
- Interior Images
- Other Media
Neighborhood
Community location & sales center
101 Mulberry Drive
Lucedale, MS 39452
101 Mulberry Drive
Lucedale, MS 39452
888-790-3488
Schools near Magnolia Farms
- George County School District
- Lc Hatcher Elementary
- George County Middle School
- George County High School
Actual schools may vary. Contact the builder for more information.
Amenities
Home details
Now building
This home is currently under construction at 124 Dewberry Drive and will soon be available for move-in at Magnolia Farms. Contact D.R. Horton today to lock in your options!
Nearby schools
George County School District
Elementary school. Grades PK to 2.
- Public school
- Teacher - student ratio: 1:13
- Students enrolled: 249
689 Church St, Lucedale, MS, 39452
601-947-3110
Middle school. Grades 7 to 8.
- Public school
- Teacher - student ratio: 1:15
- Students enrolled: 655
330 Church St, Lucedale, MS, 39452
601-947-3106
High school. Grades 9 to 12.
- Public school
- Teacher - student ratio: 1:14
- Students enrolled: 1104
9284 Old 63 S, Lucedale, MS, 39452
601-947-3116
Actual schools may vary. We recommend verifying with the local school district, the school assignment and enrollment process.
Neighborhood amenities
R & R Food Market
0.88 mile away
181 Winter St
Cheap Charley's Surplus
1.15 miles away
11200 Highway 613
Walmart Supercenter
2.14 miles away
11228 Old 63 S
Wayne Lee's Grocery & Market
2.15 miles away
12109 Old 63 S
Carolyn
6.84 miles away
105 Bexley Rd N
Lucedale Herb Shop
1.21 miles away
5192 Main St
Walmart Bakery
2.14 miles away
11228 Old 63 S
Aunt Jenny's Country Buffet
0.41 mile away
470 Cowart St
Hardee's
0.84 mile away
24 E Frontage Rd
SONIC Drive-in
0.88 mile away
182 Winter St
Catfish One Lucedale
0.90 mile away
227 Winter St
Pizza Hut
0.93 mile away
72 Ventura Dr
Sole Mate LLC
1.22 miles away
5178 Main St
Vincent's Clothiers
1.24 miles away
5154 Main St
Family Dollar
1.38 miles away
4270 Main St
Church Clothes
2.04 miles away
159 Gay Pierce Rd
Cato Fashions
2.13 miles away
11231 Old 63 S
Please note this information may vary. If you come across anything inaccurate, please contact us.
Builder details
D.R. Horton
In 1978, D.R. Horton broke ground on our first home in Fort Worth, Texas. Since that day, the company has defined its success not by bricks and mortar, but by the satisfaction of the families that make our houses their homes. Our foundation is a single, guiding principle: a value-first dedication to the individual needs of each and every one of our nation’s homebuyers.
From first-time homebuyers to empty nesters, our family of brands provides a home for every stage in life. Our highly-trained, market experts are where you want to live, from New Jersey to Hawaii, providing unique, personalized services tailored to your individual needs. But the real value comes from the quality construction we put into every home, and the peace of mind that comes with a premium-backed warranty from America’s Number One Homebuilder.
We’ve come a long way, and while more people choose our family of brands over any other builder in the country, we never forget the most important thing of all – the families that choose us for their place to call home.
So continue to live out those dreams, America, and know we’ll be here for you every step of the way.
More new homes in Lucedale, Mississippi
124 Dewberry Drive (The Lakeside) by D.R. Horton
saved to favorites!
To see all the homes you’ve saved, visit the My Favorites section of your account.
Discover More Great Communities
Select additional listings for more information
Way to Go!
An agent will be in contact soon!
