The Mitchell Plan
Ready to build
5030 Millrace Landing, San Antonio TX 78266
Home by D.R. Horton
Last updated 20 hours ago
The Price Range displayed reflects the base price of the homes built in this community.
You get to select from the many different types of homes built by this Builder and personalize your New Home with options and upgrades.
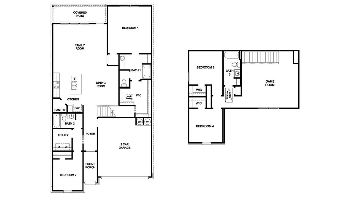
4 BR
3 BA
2 GR
2,257 SQ FT
Claim this listing to update information, get access to exclusive tools and more!

Floorplan 0 1/1
Overview
2 Stories
Single Family
The Mitchell Plan Info
Tour The Mitchell floor plan at Brookstone Creek in San Antonio, TX. This home delivers the space, comfort and flexibility your lifestyle demands - offering 2257 square feet, four bedrooms and 3 full bathrooms across a smart and functional two-story layout. Your new home comes equipped with a full landscaping and irrigation package, ensuring both beauty and curb appeal. The heart of the home is the open-concept kitchen, dining and living room area where you'll enjoy gathering with family and friends. The kitchen showcases stainless steel appliances, quartz countertops, flat panel cabinetry, an elegant kitchen island with a deep farmhouse-style sink and white subway tile backsplash for a timeless finish. Your primary bedroom suite is located on the main level and tucked away toward the back of the home for privacy. It includes a spacious, tiled walk-in shower, dual vanity sinks and a walk-in closet. A secondary bedroom and full bath on the first floor offer an ideal setup for guests, a nursery or multi-generational living. Upstairs, two additional bedrooms are situated alongside a versatile game room, perfect for move nights, study space or a secondary living area. Every bedroom features quality carpet flooring, large windows and ample closet space. This home includes our HOME IS CONNECTED base package. Using one central hub that talks to all the devices in your home, you can control the lights, thermostat and locks, all from your cellular device. Additional featur
Floor plan center
View floor plan details for this property.
- Floor Plans
- Exterior Images
- Interior Images
- Other Media
Neighborhood
Community location & sales center
5030 Millrace Landing
San Antonio, TX 78266
5030 Millrace Landing
San Antonio, TX 78266
888-355-8096
Schools near Brookstone Creek
- North East Independent School District
- Roan Forest Elementary School
- Hill Middle School
- Johnson High School
Actual schools may vary. Contact the builder for more information.
Amenities
Home details
Ready to build
Build the home of your dreams with the The Mitchell plan by selecting your favorite options. For the best selection, pick your lot in Brookstone Creek today!
Nearby schools
North East Independent School District
Roan Forest Elementary School
Elementary school. Grades KG to 5.
Public school
Teacher - student ratio: 1:14
Students enrolled: 861
210-407-6800
22710 Roan Park, San Antonio, TX, 78259
Hill Middle School
Middle school. Grades 6 to 8.
Public school
Teacher - student ratio: 1:17
Students enrolled: 1044
210-356-8000
21314 Bulverde Rd, San Antonio, TX, 78259
Johnson High School
High school. Grades 9 to 12.
Public school
Teacher - student ratio: 1:17
Students enrolled: 3202
210-356-0400
23203 Bulverde Rd, San Antonio, TX, 78259
Actual schools may vary. We recommend verifying with the local school district, the school assignment and enrollment process.
Neighborhood amenities
Sprouts Farmers Market
2.68 miles away
22135 Bulverde Rd
La Colmena Fruteria
3.65 miles away
15171 Judson Rd
H-E-B
3.73 miles away
17238 Bulverde Rd
Walmart Supercenter
3.76 miles away
16503 Nacogdoches Rd
Sam's Club
4.08 miles away
2530 Summit Church Rd
Cookie Plug
3.51 miles away
3830 N Loop 1604 E
Kolache
3.65 miles away
15171 Judson Rd
Walmart Bakery
3.76 miles away
16503 Nacogdoches Rd
Little Muse Catering & Cakes
3.95 miles away
15426 Cross Vine
Roxy's Keto Kitchen
4.09 miles away
21025 Encino Commons
SONIC Drive-in
0.30 mile away
5617 E Evans Rd
Pho 4 Star
1.28 miles away
4419 E Evans Rd
18 Oaks
2.13 miles away
23808 Resort Pkwy
Cibolo Moon
2.13 miles away
23808 Resort Pkwy
High Velocity
2.13 miles away
23808 Resort Pkwy
Starbucks
2.13 miles away
23808 Resort Pkwy
Super Donut
2.47 miles away
21920 Bulverde Rd
Dunkin'
3.12 miles away
18235 Bulverde Rd
Coffee Bound LLC
3.34 miles away
15902 Tampke Pl
Dunkin'
3.47 miles away
3107 TPC Pkwy
Sister Creek Boutique
0.56 mile away
21510 Foxpark Ldg
B & B Boutique
2.37 miles away
3515 Canyon Pkwy
Claire's
2.89 miles away
22706 US Hghwy 281 North 103
Betty B Boutique
3.60 miles away
6909 N Loop 1604 E
Claire's
3.60 miles away
6909 N Loop 1604 E
High Velocity
2.13 miles away
23808 Resort Pkwy
Crooked Branch
2.89 miles away
23808 Resort Pkwy JW Marriott San Antonio Hill Country Resor
Puzzles Tavern
3.53 miles away
3111 TPC Pkwy
Lefty's Draft House
3.62 miles away
15179 Judson Rd
BJ's Restaurant & Brewhouse
3.95 miles away
22410 US Highway 281 N
Please note this information may vary. If you come across anything inaccurate, please contact us.
Builder details
D.R. Horton
In 1978, D.R. Horton broke ground on our first home in Fort Worth, Texas. Since that day, the company has defined its success not by bricks and mortar, but by the satisfaction of the families that make our houses their homes. Our foundation is a single, guiding principle: a value-first dedication to the individual needs of each and every one of our nation’s homebuyers.
From first-time homebuyers to empty nesters, our family of brands provides a home for every stage in life. Our highly-trained, market experts are where you want to live, from New Jersey to Hawaii, providing unique, personalized services tailored to your individual needs. But the real value comes from the quality construction we put into every home, and the peace of mind that comes with a premium-backed warranty from America’s Number One Homebuilder.
We’ve come a long way, and while more people choose our family of brands over any other builder in the country, we never forget the most important thing of all – the families that choose us for their place to call home.
So continue to live out those dreams, America, and know we’ll be here for you every step of the way.
More new homes in San Antonio, Texas
The Mitchell Plan by D.R. Horton
saved to favorites!
To see all the homes you’ve saved, visit the My Favorites section of your account.
Discover More Great Communities
Select additional listings for more information
Way to Go!
An agent will be in contact soon!
