The Monroe Plan
Ready to build
216 Vermilion Circle, Port Saint Joe FL 32456
Home by D.R. Horton
Last updated 3 days ago
The Price Range displayed reflects the base price of the homes built in this community.
You get to select from the many different types of homes built by this Builder and personalize your New Home with options and upgrades.
3 BR
2.5 BA
1 GR
1,846 SQ FT
Claim this listing to update information, get access to exclusive tools and more!

Floorplan 0 1/1
Overview
1 Half Bathroom
2 Stories
Single Family
The Monroe Plan Info
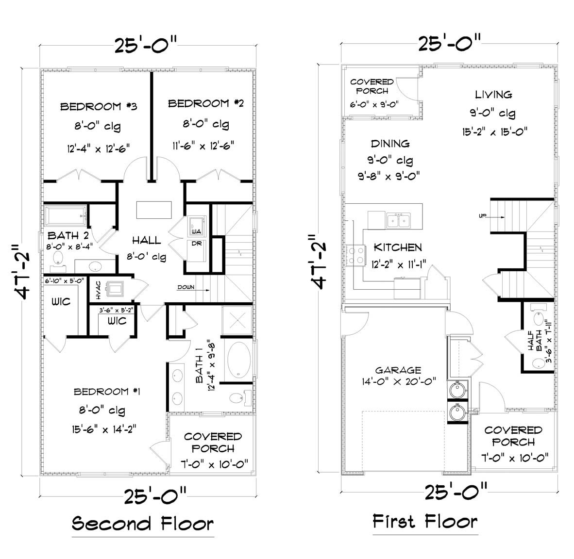
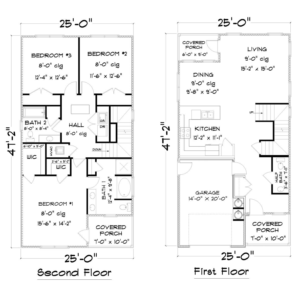
Welcome to the Monroe, a new home floor plan located at Windmark Beach in Port Saint Joe, Florida. This floor plan features two stories with three bedrooms and two and a half bathrooms. The exterior of this home features a covered front porch on the main level and a covered balcony on the second level just off the primary bedroom. Both have waterviews of two charming ponds in the front and back of the home. Entering the foyer, you are greeted with an open entry that leads to the grand living space with open concept design. The kitchen is open to the dining and living areas features a peninsula bar with space for seating. There is an appointed dining area that is surrounded with windows allowing for an abundance of natural light to filter through. Traditional 9' ceilings grace the living area which opens to the covered back porch where you can spend your mornings and evenings enjoying your coffee or beverage. The main level serves as the heart of the home with plenty of space and a powder room located just off the entry. The stairs leading to the second level are accessible from the living area and lead to all three bedrooms. As you reach the second level you are met with a landing with laundry area and shared bathroom. Two bedrooms are located at the back of the home and have spacious closets. The Primary bedroom is located overlooking the front lawn and has a private ensuite bathroom. Two large closets are in the primary bedroom and offer plenty of space for your wardrobe ne
Floor plan center
View floor plan details for this property.
- Floor Plans
- Exterior Images
- Interior Images
- Other Media
Neighborhood
Community location & sales center
216 Vermilion Circle
Port Saint Joe, FL 32456
216 Vermilion Circle
Port Saint Joe, FL 32456
888-790-3488
Schools near Windmark Beach
- Gulf
- Port St. Joe Elementary School
Actual schools may vary. Contact the builder for more information.
Amenities
Home details
Ready to build
Build the home of your dreams with the The Monroe plan by selecting your favorite options. For the best selection, pick your lot in Windmark Beach today!
Nearby schools
Gulf
Port St. Joe Elementary School
Elementary-Middle school. Grades PK to 6
Public school
Class ratio: 1: 14
Enrollment: 534
850-227-1221
2201 Long Ave, Port St Joe, FL, 32456
Actual schools may vary. We recommend verifying with the local school district, the school assignment and enrollment process.
Neighborhood amenities
Bayside Bakery
2.19 miles away
182 Sea Glass Way
Mermaids Cove Cafe
7.68 miles away
260 Ponderosa Pines Dr
Crazy Beach Pizza
2.37 miles away
2902 Highway 98
Mr G's Smokehouse & Seafood Grill
2.37 miles away
9320 Co Road 386
Paul Gant's Barbeque Inc
2.37 miles away
Highway 98
Taco Bell
2.37 miles away
Ave B And Highway 98
Shipwreck Raw Bar
3.04 miles away
7008 W Highway 98
Gulf Glazed
3.84 miles away
8134 W Highway 98
Josie's Joe Coffee Company
3.84 miles away
8134 W Highway 98
No Name Cafe Books & More
3.95 miles away
325 Reid Ave
Caribbean Coffee
7.60 miles away
2802 Highway 98
Mermaids Cove Cafe
7.68 miles away
260 Ponderosa Pines Dr
Walter Green
3.63 miles away
135 W Highway 98
Merle Norman Cosmetic Studio
3.82 miles away
208 Reid Ave
Fuss
3.83 miles away
205 Reid Ave
Boutique By the Bay
4.00 miles away
414 Reid Ave
Family Dollar Dollar Tree
4.10 miles away
510 Cecil G Costin Sr Blvd
Shipwreck Raw Bar
3.04 miles away
7008 W Highway 98
Haughty Heron
3.73 miles away
117 Sailors Cove Dr
St Joe Bar
3.90 miles away
305 Reid Ave
The Brick Wall
4.00 miles away
414 Reid Ave
Please note this information may vary. If you come across anything inaccurate, please contact us.
Builder details
D.R. Horton
In 1978, D.R. Horton broke ground on our first home in Fort Worth, Texas. Since that day, the company has defined its success not by bricks and mortar, but by the satisfaction of the families that make our houses their homes. Our foundation is a single, guiding principle: a value-first dedication to the individual needs of each and every one of our nation’s homebuyers.
From first-time homebuyers to empty nesters, our family of brands provides a home for every stage in life. Our highly-trained, market experts are where you want to live, from New Jersey to Hawaii, providing unique, personalized services tailored to your individual needs. But the real value comes from the quality construction we put into every home, and the peace of mind that comes with a premium-backed warranty from America’s Number One Homebuilder.
We’ve come a long way, and while more people choose our family of brands over any other builder in the country, we never forget the most important thing of all – the families that choose us for their place to call home.
So continue to live out those dreams, America, and know we’ll be here for you every step of the way.
More new homes in Port Saint Joe, Florida
The Monroe Plan by D.R. Horton
saved to favorites!
To see all the homes you’ve saved, visit the My Favorites section of your account.
Discover More Great Communities
Select additional listings for more information
Way to Go!
An agent will be in contact soon!
