The Nicole Plan
Ready to build
6308 Buckeye Path, Leon Valley TX 78238
Home by D.R. Horton
Last updated 24 hours ago
The Price Range displayed reflects the base price of the homes built in this community.
You get to select from the many different types of homes built by this Builder and personalize your New Home with options and upgrades.
4 BR
3 BA
2 GR
2,473 SQ FT
Claim this listing to update information, get access to exclusive tools and more!

Floorplan 0 1/1
Overview
2 Stories
Single Family
The Nicole Plan Info
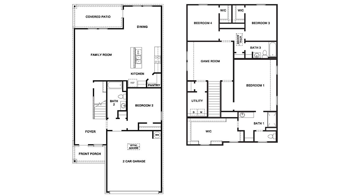
Step inside The Nicole plan, a two-story home featured at Seneca Trails in Leon Valley, TX. Featuring 2 classic front exteriors, 4 bedrooms, 3 full baths and a 2-car garage, this floor plan is sure to turn heads. The Nicole offers 2473 square feet of comfortable living and includes a full bathroom and bedroom located right off the foyer that is perfect for guests. Continue down the hall to find an open concept plan with the family room opening to a gourmet kitchen and dining room. The kitchen includes quartz counter tops, stainless steel appliances, shaker style cabinetry and a spacious corner pantry. A kitchen island overlooks the living room and includes a deep, single basin sink and a breakfast bar, perfect for fast mornings on the go. The wide, inviting staircase leads to a spacious game room, utility room, main bedroom suite, two secondary bedrooms with carpet flooring and spacious closets and third full bathroom. Your private main bedroom features an attached ensuite bathroom built with plenty of storage space, a walk-in shower and a separate water closet for the toilet. The grand walk-in closet is a stand-out feature of The Nicole floor plan, complete with plenty of windows for natural lighting. Additional features of The Nicole include sheet vinyl flooring in entry, living room, and all wet areas, quartz counter tops in all bathrooms, and full yard landscaping and irrigation. This home includes our HOME IS CONNECTED base package. Using one central hub
Floor plan center
View floor plan details for this property.
- Floor Plans
- Exterior Images
- Interior Images
- Other Media
Neighborhood
Community location & sales center
6308 Buckeye Path
Leon Valley, TX 78238
6308 Buckeye Path
Leon Valley, TX 78238
888-355-8096
Schools near Seneca Trails
- Northside Independent School District
- Driggers Elementary School
- Neff Middle School
- Marshall High School
Actual schools may vary. Contact the builder for more information.
Amenities
Home details
Ready to build
Build the home of your dreams with the The Nicole plan by selecting your favorite options. For the best selection, pick your lot in Seneca Trails today!
Nearby schools
Northside Independent School District
Driggers Elementary School
Elementary school. Grades PK to 5
Public school
Class ratio: 1: 13
Enrollment: 495
210-397-5900
6901 Shadow Mist, San Antonio, TX, 78238
Neff Middle School
Middle school. Grades 6 to 8
Public school
Class ratio: 1: 14
Enrollment: 932
210-397-4100
5227 Evers Rd, San Antonio, TX, 78238
Marshall High School
High school. Grades 9 to 12
Public school
Class ratio: 1: 16
Enrollment: 2634
210-397-7100
8000 Lobo Ln, San Antonio, TX, 78240
Actual schools may vary. We recommend verifying with the local school district, the school assignment and enrollment process.
Builder details
D.R. Horton
In 1978, D.R. Horton broke ground on our first home in Fort Worth, Texas. Since that day, the company has defined its success not by bricks and mortar, but by the satisfaction of the families that make our houses their homes. Our foundation is a single, guiding principle: a value-first dedication to the individual needs of each and every one of our nation’s homebuyers.
From first-time homebuyers to empty nesters, our family of brands provides a home for every stage in life. Our highly-trained, market experts are where you want to live, from New Jersey to Hawaii, providing unique, personalized services tailored to your individual needs. But the real value comes from the quality construction we put into every home, and the peace of mind that comes with a premium-backed warranty from America’s Number One Homebuilder.
We’ve come a long way, and while more people choose our family of brands over any other builder in the country, we never forget the most important thing of all – the families that choose us for their place to call home.
So continue to live out those dreams, America, and know we’ll be here for you every step of the way.
More new homes in Leon Valley, Texas
The Nicole Plan by D.R. Horton
saved to favorites!
To see all the homes you’ve saved, visit the My Favorites section of your account.
Discover More Great Communities
Select additional listings for more information
Way to Go!
An agent will be in contact soon!
