2419 CLIFF HOLLOW CIR (The Palm Interior)
Under Construction
Gulf Breeze, FL 32563
Home by D.R. Horton
Last updated 2 days ago
The Price Range displayed reflects the base price of the homes built in this community.
You get to select from the many different types of homes built by this Builder and personalize your New Home with options and upgrades.
3 BR
2.5 BA
1 GR
1,460 SQ FT
Claim this listing to update information, get access to exclusive tools and more!

Floor Plan 1/1
Overview
1 Car Garage
1 Half Bathroom
1460 Sq Ft
2 Bathrooms
2 Stories
3 Bedrooms
Multi Family
2419 CLIFF HOLLOW CIR (The Palm Interior) Home Info
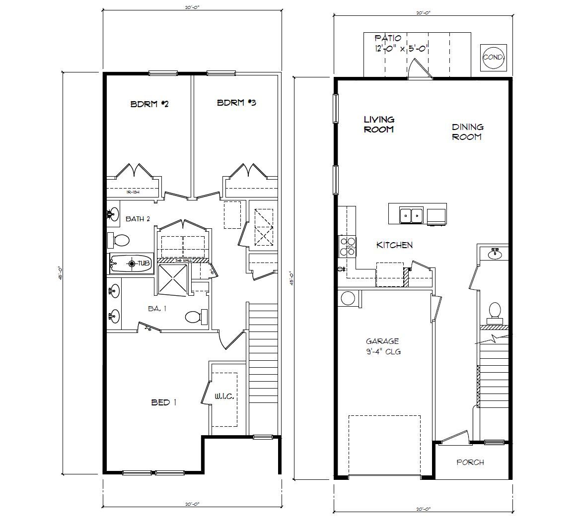
Welcome to 2419 Hollow Circle the Palm Interior Plan, at Soundview Point Villas, our new home community in Gulf Breeze, FL. Just over 1,400 square feet, this beautiful two- story townhome offers 3-bedrooms with 2.5-bathrooms, a 1-car garage, and a seamless open layout.t6 As you enter the home on the first floor, you are met with the foyer featuring a half bathroom perfect for guests. Walking past the foyer is a large open concept living space including the kitchen, living room and dining space. The kitchen includes quartz countertops, under mount sink, smooth top range, stainless steel appliances, pantry, stylish shaker cabinetry, and a center island. With natural light and nearby patio access, the living and dining area are integrated perfectly. Right off of the foyer you will find stairs leading to the 2nd floor. Additional bedroom 1, and 2 are both located on the 2nd floor with a gorgeous full bathroom. This bathroom features a vanity, a soaking tub, and toilet. You will also find the laundry room conveniently located on the second floor. The primary bedroom is also located on the 2nd floor. This bedroom is a spacious and relaxing space that includes an attached primary bathroom. The double vanity, toilet, shower, and walk-in closet will provide a haven of relaxation. Each Palm is built with our Smart Home technology package, designed to bring the ease and convenience of life right to your fingertips. Call to schedule your tour of the Palm plan at Soundview Point today
Floor plan center
View floor plan details for this property.
- Floor Plans
- Exterior Images
- Interior Images
- Other Media
Neighborhood
Community location & sales center
2535 Cliff Hollow Circle
Gulf Breeze, FL 32563
2535 Cliff Hollow Circle
Gulf Breeze, FL 32563
888-790-3488
Schools near Soundview Point Villas
- Santa Rosa Schools
- West Navarre Primary School
- West Navarre Intermediate School
- Gulf Breeze High School
Actual schools may vary. Contact the builder for more information.
Amenities
Home details
Now building
This home is currently under construction at 2419 CLIFF HOLLOW CIR and will soon be available for move-in at Soundview Point Villas. Contact D.R. Horton today to lock in your options!
Nearby schools
Santa Rosa Schools
Elementary school. Grades PK to 2.
- Public school
- Teacher - student ratio: 1:12
- Students enrolled: 723
1955 Lowe Rd, Navarre, FL, 32566
850-936-6000
Elementary school. Grades 3 to 5.
- Public school
- Teacher - student ratio: 1:13
- Students enrolled: 813
1970 Cotton Bay Ln, Navarre, FL, 32566
850-936-6060
High school. Grades 9 to 12.
- Public school
- Teacher - student ratio: 1:26
- Students enrolled: 1978
675 Gulf Breeze Pkwy, Gulf Breeze, FL, 32561
850-916-4100
Actual schools may vary. We recommend verifying with the local school district, the school assignment and enrollment process.
Builder details
D.R. Horton
In 1978, D.R. Horton broke ground on our first home in Fort Worth, Texas. Since that day, the company has defined its success not by bricks and mortar, but by the satisfaction of the families that make our houses their homes. Our foundation is a single, guiding principle: a value-first dedication to the individual needs of each and every one of our nation’s homebuyers.
From first-time homebuyers to empty nesters, our family of brands provides a home for every stage in life. Our highly-trained, market experts are where you want to live, from New Jersey to Hawaii, providing unique, personalized services tailored to your individual needs. But the real value comes from the quality construction we put into every home, and the peace of mind that comes with a premium-backed warranty from America’s Number One Homebuilder.
We’ve come a long way, and while more people choose our family of brands over any other builder in the country, we never forget the most important thing of all – the families that choose us for their place to call home.
So continue to live out those dreams, America, and know we’ll be here for you every step of the way.
More new homes in Gulf Breeze, Florida
2419 CLIFF HOLLOW CIR (The Palm Interior) by D.R. Horton
saved to favorites!
To see all the homes you’ve saved, visit the My Favorites section of your account.
Discover More Great Communities
Select additional listings for more information
Way to Go!
An agent will be in contact soon!
