15941 Blue Ridge Drive (The Riverside)
Under Construction
Gulfport, MS 39503
Home by D.R. Horton
at River Hills
Last updated 22 hours ago
The Price Range displayed reflects the base price of the homes built in this community.
You get to select from the many different types of homes built by this Builder and personalize your New Home with options and upgrades.
5 BR
3 BA
2 GR
2,034 SQ FT
Claim this listing to update information, get access to exclusive tools and more!

Floor Plan 1/1
Overview
1 Story
2 Car Garage
2034 Sq Ft
3 Bathrooms
5 Bedrooms
Single Family
15941 Blue Ridge Drive (The Riverside) Home Info
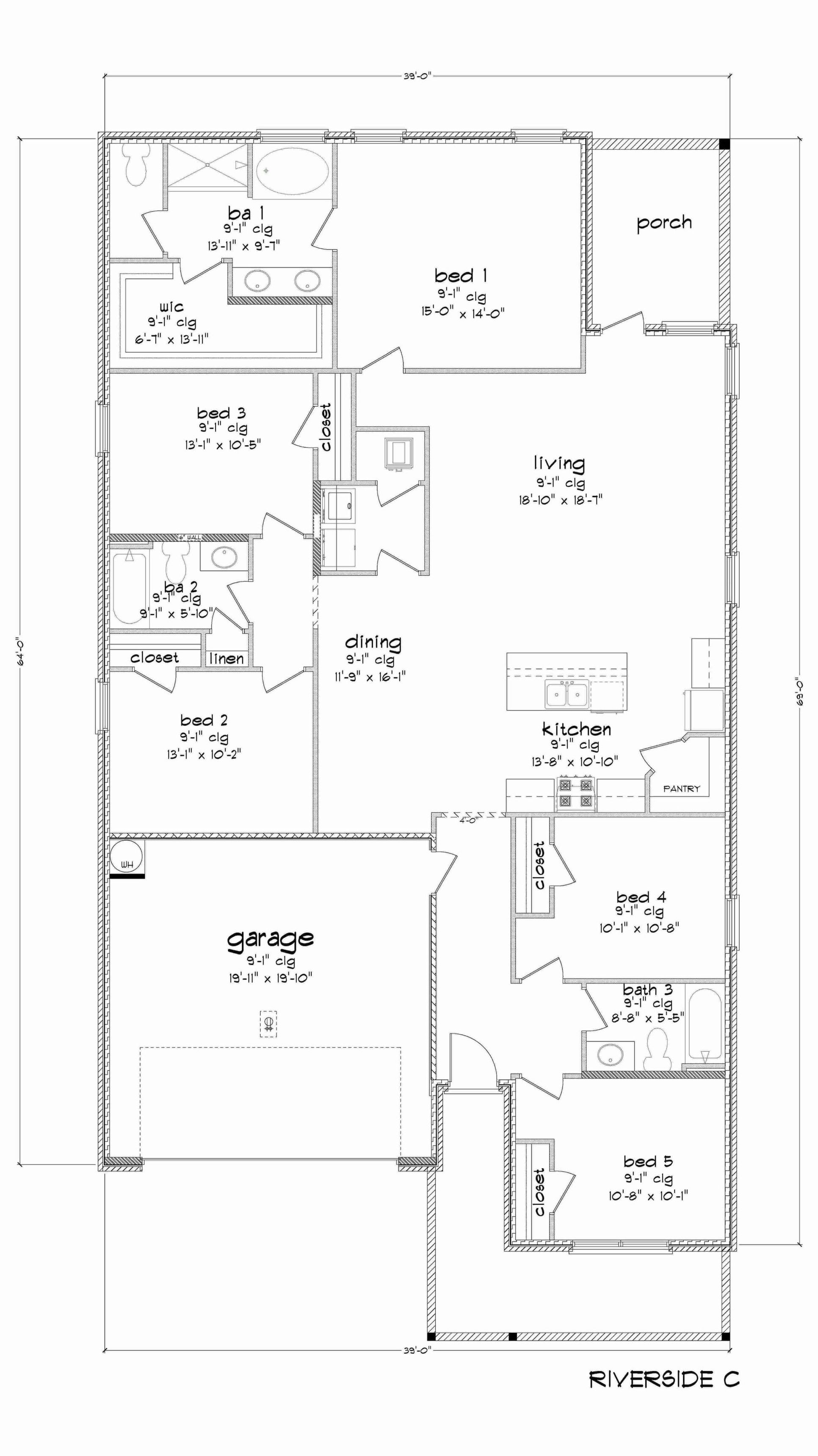
Welcome to 15941 Blue Ridge Drive at our River Hills community in Gulfport, Mississippi. This Riverside offers 5-bedrooms, 3-bathrooms in over 2,000 square feet with a 2-car garage. As you enter, you'll find access to two bedrooms that share a full bathroom. To the opposite side of the home are two bedrooms, a full bathroom with a linen closet and the laundry room. The kitchen boasts a stunning design featuring granite countertops, spacious island bar, stainless-steel appliances and a corner pantry. Seamlessly connected to the family and dining room, this kitchen is ideal for hosting gatherings and enjoying quality time with loved ones. The living area has back door access to a covered porch, further enhancing the relaxing ambiance. The primary bedroom offers ample space and is accompanied by an adjoining ensuite that showcases a double vanity with granite countertop, a generous standing shower, relaxing garden tub and a walk-in closet that can accommodate the most ambitious wardrobe. The Riversides includes a Home is Connected smart home technology package which allows you to control your home with your smart device while near or away. This home is also being built to Gold FORTIFIED HomeTM certification so see your Sales Representative for details. Pictures may be of a similar home and not necessarily of the subject property. Pictures are representational only. Schedule your tour today!
Floor plan center
View floor plan details for this property.
- Floor Plans
- Exterior Images
- Interior Images
- Other Media
Neighborhood
Community location & sales center
17014 River Hills Drive
Gulfport, MS 39503
17014 River Hills Drive
Gulfport, MS 39503
888-790-3488
Schools near River Hills
- Harrison County School District
- Lyman Elementary School
- North Gulfport 7th Grade
- North Gulfport 8th Grade
Actual schools may vary. Contact the builder for more information.
Amenities
Home details
Now building
This home is currently under construction at 15941 Blue Ridge Drive and will soon be available for move-in at River Hills. Contact D.R. Horton today to lock in your options!
Nearby schools
Harrison County School District
Elementary-Middle school. Grades KG to 6.
- Public school
- Teacher - student ratio: 1:14
- Students enrolled: 490
14222 Old Highway 49, Gulfport, MS, 39503
228-832-2257
Middle school. Grades 6 to 8.
- Public school
- Teacher - student ratio: 1:37
- Students enrolled: 1098
4715 Illinois Ave, Gulfport, MS, 39501
228-864-5326
Middle school. Grades 6 to 8.
- Public school
- Teacher - student ratio: 1:24
- Students enrolled: 1098
4715 Illinois Ave, Gulfport, MS, 39501
228-864-5326
Actual schools may vary. We recommend verifying with the local school district, the school assignment and enrollment process.
Neighborhood amenities
Canal Country Store
3.63 miles away
13056 Canal Rd
Food Giant
4.66 miles away
12057 Highway 49
Super C-Three Dad's Cooking
4.72 miles away
12515 Three Rivers Rd
Walmart Neighborhood Market
5.10 miles away
11333 Highway 49
Winn-Dixie
5.20 miles away
11312 Highway 49
Walmart Bakery
5.10 miles away
11333 Highway 49
Melissas Specialty Cakes
5.32 miles away
15335 Dedeaux Rd
Hunt Brothers Pizza
1.70 miles away
16303 Highway 53
Juan Tequilas II
2.07 miles away
18369 Highway 49
Hunt Brothers Pizza
2.15 miles away
18447 Highway 49
Domino's
2.26 miles away
17145 W Wortham Rd
Acee Pizza LLC
2.49 miles away
18252 Robinwood Dr
Jelly Donuts
3.91 miles away
12449 Highway 49
Dunkin'
5.41 miles away
11181 Highway 49
Tastea Fusion
5.58 miles away
14451 Dedeaux Rd
Fantasy Donut 2
5.78 miles away
11340 Three Rivers Rd
Starbucks
6.11 miles away
15299 Crossroads Pkwy
Family Dollar
3.14 miles away
20014 Highway 53
Family Dollar
4.55 miles away
13111 Three Rivers Rd
H&M
4.70 miles away
1000 Factory Shops Blvd
kate spade Outlet
4.70 miles away
10455 Factory Shop Boulevards
Trace of Lace
4.70 miles away
15456 Irby Rd
Big Jim's
1.20 miles away
17422 Highway 49
Goodtimes Sports Bar
5.44 miles away
11289 Klein Rd
Chili's
6.12 miles away
15291 Crossroads Pkwy
TGI Friday's
6.13 miles away
15190 Crossroads Pkwy
LongHorn Steakhouse
6.15 miles away
15270 Crossroads Pkwy
Please note this information may vary. If you come across anything inaccurate, please contact us.
Builder details
D.R. Horton
In 1978, D.R. Horton broke ground on our first home in Fort Worth, Texas. Since that day, the company has defined its success not by bricks and mortar, but by the satisfaction of the families that make our houses their homes. Our foundation is a single, guiding principle: a value-first dedication to the individual needs of each and every one of our nation’s homebuyers.
From first-time homebuyers to empty nesters, our family of brands provides a home for every stage in life. Our highly-trained, market experts are where you want to live, from New Jersey to Hawaii, providing unique, personalized services tailored to your individual needs. But the real value comes from the quality construction we put into every home, and the peace of mind that comes with a premium-backed warranty from America’s Number One Homebuilder.
We’ve come a long way, and while more people choose our family of brands over any other builder in the country, we never forget the most important thing of all – the families that choose us for their place to call home.
So continue to live out those dreams, America, and know we’ll be here for you every step of the way.
More new homes in Gulfport, Mississippi
15941 Blue Ridge Drive (The Riverside) by D.R. Horton
saved to favorites!
To see all the homes you’ve saved, visit the My Favorites section of your account.
Discover More Great Communities
Select additional listings for more information
Way to Go!
An agent will be in contact soon!
