115 Harper Grove Circle (The Sabal Interior)
Under Construction
Ocean Springs, MS 39564
Home by D.R. Horton
Last updated 24 hours ago
The Price Range displayed reflects the base price of the homes built in this community.
You get to select from the many different types of homes built by this Builder and personalize your New Home with options and upgrades.
3 BR
2.5 BA
1 GR
1,521 SQ FT
Claim this listing to update information, get access to exclusive tools and more!

Floor Plan 1/1
Overview
1 Car Garage
1 Half Bathroom
1521 Sq Ft
2 Bathrooms
2 Stories
3 Bedrooms
Multi Family
115 Harper Grove Circle (The Sabal Interior) Home Info
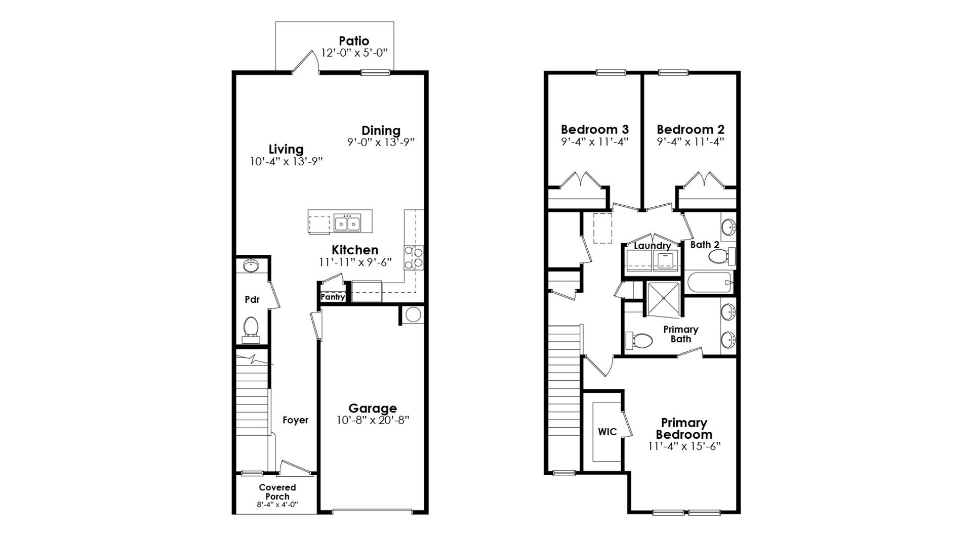
Welcome to 115 Harper Grove Circle in Ocean Springs, Mississippi-one of our new D.R. Horton townhomes in Harper Grove Townhomes. Entering the from Groveland onto Harper Grove Circle, this home is on the left. The Sabal is an interior townhome unit featuring a single car garage. With approximately 1,521 square feet, this thoughtfully designed floorplan includes 3 bedrooms and 2.5 bathrooms, giving you the flexibility and comfort your lifestyle demands. On the main level, you'll find an open-concept layout where the kitchen, dining, and living areas flow together seamlessly. The kitchen is equipped with shaker-style cabinetry, quartz countertops, an undermount sink, and a complete stainless steel appliance package, including a smooth-top range, microwave with hood, and a quiet dishwasher. A large walk-in pantry adds convenience and storage space. Upstairs, all three bedrooms are designed with luxury vinyl plank flooring no carpet in this home. Each room offers ample closet space and can easily be adapted to serve as a guest room, home office, or hobby space. The secondary bathroom features a tub/shower combo, while the primary suite includes a walk-in closet and an ensuite bathroom with a standing shower, double vanity with quartz countertops, and linen shelving. The Sabal includes D.R. Horton's Home is Connected® Smart Home package, giving you control of many home features from your smart device whether you're at home or away. This home is also being built to Gold
Floor plan center
View floor plan details for this property.
- Floor Plans
- Exterior Images
- Interior Images
- Other Media
Neighborhood
Community location & sales center
101 Harper Grove Circle
Ocean Springs, MS 39564
101 Harper Grove Circle
Ocean Springs, MS 39564
888-790-3488
Schools near Harper Grove Townhomes
- Ocean Springs School District
Actual schools may vary. Contact the builder for more information.
Amenities
Home details
Now building
This home is currently under construction at 115 Harper Grove Circle and will soon be available for move-in at Harper Grove Townhomes. Contact D.R. Horton today to lock in your options!
Builder details
D.R. Horton
In 1978, D.R. Horton broke ground on our first home in Fort Worth, Texas. Since that day, the company has defined its success not by bricks and mortar, but by the satisfaction of the families that make our houses their homes. Our foundation is a single, guiding principle: a value-first dedication to the individual needs of each and every one of our nation’s homebuyers.
From first-time homebuyers to empty nesters, our family of brands provides a home for every stage in life. Our highly-trained, market experts are where you want to live, from New Jersey to Hawaii, providing unique, personalized services tailored to your individual needs. But the real value comes from the quality construction we put into every home, and the peace of mind that comes with a premium-backed warranty from America’s Number One Homebuilder.
We’ve come a long way, and while more people choose our family of brands over any other builder in the country, we never forget the most important thing of all – the families that choose us for their place to call home.
So continue to live out those dreams, America, and know we’ll be here for you every step of the way.
More new homes in Ocean Springs, Mississippi
115 Harper Grove Circle (The Sabal Interior) by D.R. Horton
saved to favorites!
To see all the homes you’ve saved, visit the My Favorites section of your account.
Discover More Great Communities
Select additional listings for more information
Way to Go!
An agent will be in contact soon!
