278 Sea Tern Lane (The Sabal Interior Unit)
Under Construction
Port Saint Joe, FL 32456
Home by D.R. Horton
Last updated 3 days ago
The Price Range displayed reflects the base price of the homes built in this community.
You get to select from the many different types of homes built by this Builder and personalize your New Home with options and upgrades.
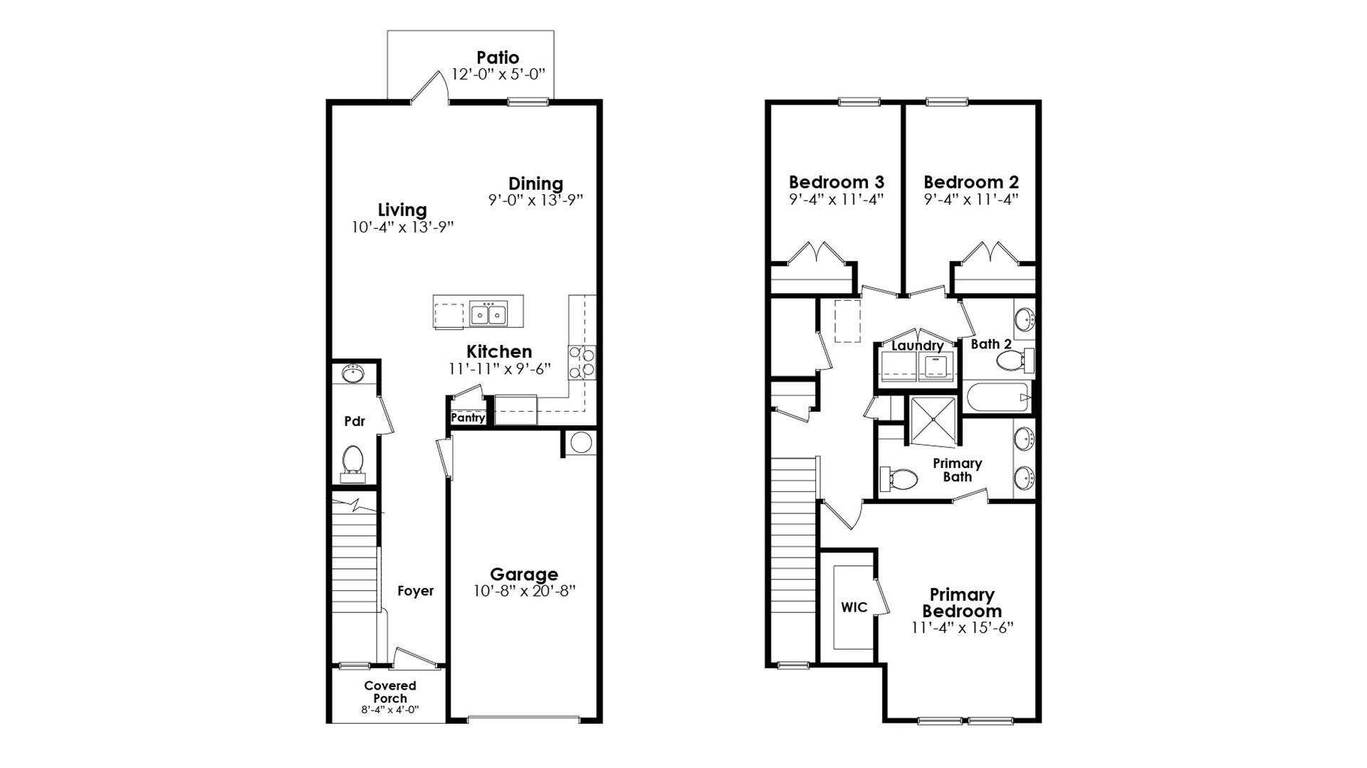
3 BR
2.5 BA
1 GR
1,460 SQ FT
Claim this listing to update information, get access to exclusive tools and more!

Floor Plan 1/1
Overview
1 Car Garage
1 Half Bathroom
1460 Sq Ft
2 Bathrooms
2 Stories
3 Bedrooms
Single Family
278 Sea Tern Lane (The Sabal Interior Unit) Home Info
Welcome to 278 Sea Tern Lane, a new home at WindMark Townhomes located in the highly visited town of Port Saint Joe, Florida. The Sabal Townhome features 2 floor plans, an interior and exterior unit. These thoughtfully designed townhomes offer either 4 bedrooms and 2.5 bathrooms or 3 bedrooms and 2.5 bathrooms. The single townhome has a 1-car garage, and the exterior unit has a 2-car garage. On the outside of these units, you will see quality Color-Plus Hardie Board exteriors, complemented by prairie-style doors and 30-year dimensional shingles. Convenience meets security with steel garage doors equipped with openers, weatherproof outlets, hose bibs, and Kwikset deadbolts on all exterior doors. As you enter inside, you will feel right at home with beautiful EVP flooring at your feet, leading you to the open living room and kitchen or the spacious upstairs. In the kitchen and bathroom, you will find gorgeous quartz countertops, white cabinets with brushed nickel hardware, and stainless-steel appliances in the kitchen. Stay cool at the beach with energy-efficient cooling and heating systems, Low-E insulated windows with screens, and water-saving elongated commodes. For added security, every home comes equipped with a Safe Haven Surveillance system, Skybell doorbell, Honeywell thermostat, and DEAKO Smart Switches. Rest assured with a one-year builder's warranty from DR Horton and a ten-year structural warranty through RWC. Located directly across from the Gulf of Mexico, y
Floor plan center
View floor plan details for this property.
- Floor Plans
- Exterior Images
- Interior Images
- Other Media
Neighborhood
Community location & sales center
216 Vermilion Circle
Port Saint Joe, FL 32456
216 Vermilion Circle
Port Saint Joe, FL 32456
888-790-3488
Schools near Windmark Beach
- Gulf
Actual schools may vary. Contact the builder for more information.
Amenities
Home details
Now building
This home is currently under construction at 278 Sea Tern Lane and will soon be available for move-in at Windmark Beach. Contact D.R. Horton today to lock in your options!
Neighborhood amenities
Bayside Bakery
2.19 miles away
182 Sea Glass Way
Mermaids Cove Cafe
7.68 miles away
260 Ponderosa Pines Dr
Crazy Beach Pizza
2.37 miles away
2902 Highway 98
Mr G's Smokehouse & Seafood Grill
2.37 miles away
9320 Co Road 386
Paul Gant's Barbeque Inc
2.37 miles away
Highway 98
Taco Bell
2.37 miles away
Ave B And Highway 98
Shipwreck Raw Bar
3.04 miles away
7008 W Highway 98
Gulf Glazed
3.84 miles away
8134 W Highway 98
Josie's Joe Coffee Company
3.84 miles away
8134 W Highway 98
No Name Cafe Books & More
3.95 miles away
325 Reid Ave
Caribbean Coffee
7.60 miles away
2802 Highway 98
Mermaids Cove Cafe
7.68 miles away
260 Ponderosa Pines Dr
Walter Green
3.63 miles away
135 W Highway 98
Merle Norman Cosmetic Studio
3.82 miles away
208 Reid Ave
Fuss
3.83 miles away
205 Reid Ave
Boutique By the Bay
4.00 miles away
414 Reid Ave
Family Dollar Dollar Tree
4.10 miles away
510 Cecil G Costin Sr Blvd
Shipwreck Raw Bar
3.04 miles away
7008 W Highway 98
Haughty Heron
3.73 miles away
117 Sailors Cove Dr
St Joe Bar
3.90 miles away
305 Reid Ave
The Brick Wall
4.00 miles away
414 Reid Ave
Please note this information may vary. If you come across anything inaccurate, please contact us.
Builder details
D.R. Horton
In 1978, D.R. Horton broke ground on our first home in Fort Worth, Texas. Since that day, the company has defined its success not by bricks and mortar, but by the satisfaction of the families that make our houses their homes. Our foundation is a single, guiding principle: a value-first dedication to the individual needs of each and every one of our nation’s homebuyers.
From first-time homebuyers to empty nesters, our family of brands provides a home for every stage in life. Our highly-trained, market experts are where you want to live, from New Jersey to Hawaii, providing unique, personalized services tailored to your individual needs. But the real value comes from the quality construction we put into every home, and the peace of mind that comes with a premium-backed warranty from America’s Number One Homebuilder.
We’ve come a long way, and while more people choose our family of brands over any other builder in the country, we never forget the most important thing of all – the families that choose us for their place to call home.
So continue to live out those dreams, America, and know we’ll be here for you every step of the way.
More new homes in Port Saint Joe, Florida
278 Sea Tern Lane (The Sabal Interior Unit) by D.R. Horton
saved to favorites!
To see all the homes you’ve saved, visit the My Favorites section of your account.
Discover More Great Communities
Select additional listings for more information
Way to Go!
An agent will be in contact soon!
