The Savannah Plan
Ready to build
Fields Way, Pass Christian MS 39571
Home by D.R. Horton
at Trinity Park
Last updated 20 hours ago
The Price Range displayed reflects the base price of the homes built in this community.
You get to select from the many different types of homes built by this Builder and personalize your New Home with options and upgrades.
3 BR
2.5 BA
1,796 SQ FT
Claim this listing to update information, get access to exclusive tools and more!

Floorplan 0 1/2
Overview
1 Half Bathroom
1796 Sq Ft
2 Bathrooms
2 Stories
3 Bedrooms
Single Family
The Savannah Plan Info
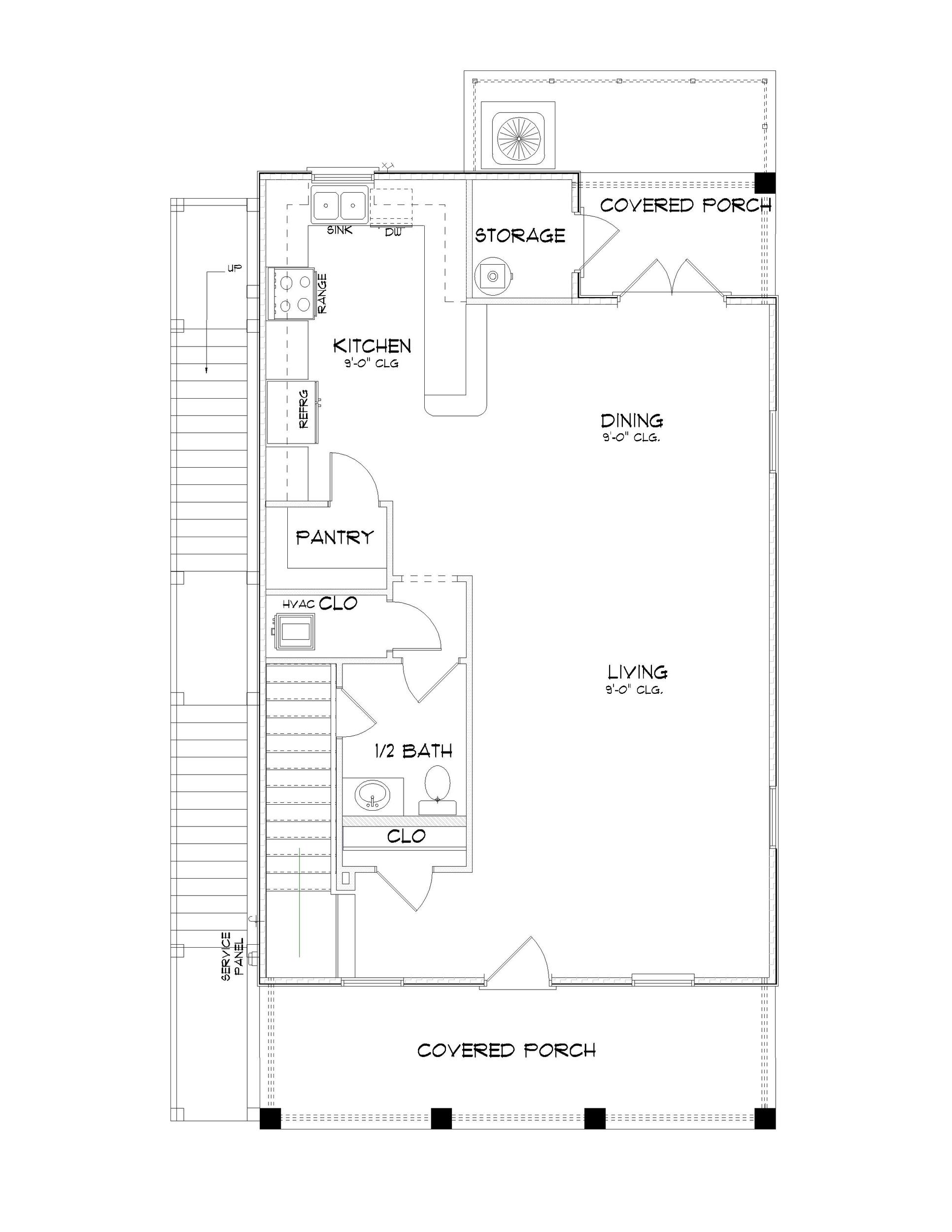
Welcome to The Savannah, a breathtaking coastal marvel that redefines modern living within an impressive 1,796 sq. ft. This beautiful home seamlessly blends comfort and style, making it the perfect retreat for those seeking the ultimate coastal lifestyle. Upon entering, enjoy the bright and open floor plan that encourages relaxation and socializing. The spacious living area flows effortlessly into the dining space, creating an inviting atmosphere for family dinners and entertaining guests. The kitchen boasts granite countertops and stainless steel appliances, providing both function and elegance for your culinary adventures. Upstairs, you will find a charming sitting area, an ideal second spot for cozy gatherings. This warm and inviting nook offers a perfect retreat for late-night conversations or quiet reading sessions, enhancing the overall experience of coastal living. The home features three bedrooms, spacious enough to cater to your family or weekend visitors. The primary suite serves as a luxurious getaway, complete with a walk-in closet and an en-suite bathroom designed with relaxation in mind. Two additional bedrooms provide comfort and convenience, accommodating all your living needs. Step outside to enjoy covered porches that allow you to savor the refreshing coastal breezes. Built to FORTIFIED Gold Home™ standards, this home not only offers beauty and comfort but also peace of mind. Contact us today to discover more about The Savannah. Pictures may be of
Floor plan center
View floor plan details for this property.
- Floor Plans
- Exterior Images
- Interior Images
- Other Media
Neighborhood
Community location & sales center
Fields Way
Pass Christian, MS 39571
Fields Way
Pass Christian, MS 39571
888-790-3488
Schools near Trinity Park
- Pass Christian Public School District
Actual schools may vary. Contact the builder for more information.
Amenities
Home details
Ready to build
Build the home of your dreams with the The Savannah plan by selecting your favorite options. For the best selection, pick your lot in Trinity Park today!
Builder details
D.R. Horton
In 1978, D.R. Horton broke ground on our first home in Fort Worth, Texas. Since that day, the company has defined its success not by bricks and mortar, but by the satisfaction of the families that make our houses their homes. Our foundation is a single, guiding principle: a value-first dedication to the individual needs of each and every one of our nation’s homebuyers.
From first-time homebuyers to empty nesters, our family of brands provides a home for every stage in life. Our highly-trained, market experts are where you want to live, from New Jersey to Hawaii, providing unique, personalized services tailored to your individual needs. But the real value comes from the quality construction we put into every home, and the peace of mind that comes with a premium-backed warranty from America’s Number One Homebuilder.
We’ve come a long way, and while more people choose our family of brands over any other builder in the country, we never forget the most important thing of all – the families that choose us for their place to call home.
So continue to live out those dreams, America, and know we’ll be here for you every step of the way.
More new homes in Pass Christian, Mississippi
The Savannah Plan by D.R. Horton
saved to favorites!
To see all the homes you’ve saved, visit the My Favorites section of your account.
Discover More Great Communities
Select additional listings for more information
Way to Go!
An agent will be in contact soon!
