6457 FIREFLY DR (The Sullivan)
Under Construction
Milton, FL 32583
Home by D.R. Horton
at Rivers Cove
Last updated 2 days ago
The Price Range displayed reflects the base price of the homes built in this community.
You get to select from the many different types of homes built by this Builder and personalize your New Home with options and upgrades.
4 BR
2 BA
1,439 SQ FT
Claim this listing to update information, get access to exclusive tools and more!

Floor Plan 1/1
Overview
1 Story
1439 Sq Ft
2 Bathrooms
4 Bedrooms
Single Family
6457 FIREFLY DR (The Sullivan) Home Info
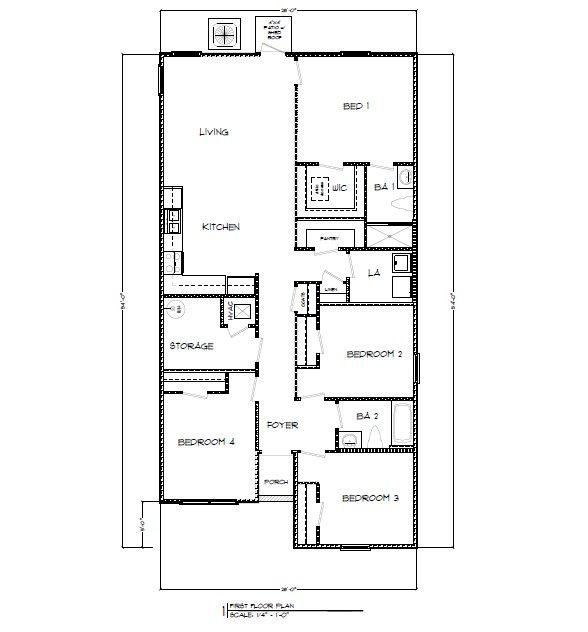
Welcome to 6457 Firefly Drive the Sullivan Plan, at Rivers Cove, our new home community in Milton, Florida. Just over 1,400 square feet, this beautiful single- story home offers 4-bedrooms with 2-bathrooms, and a seamless open layout. When entering the home, you'll have easy access from the entry way to the first three bedrooms and guest bathroom. Continuing through the entryway you will find a large open concept living area. The great room blends seamlessly into the kitchen, dining space, and living room. The kitchen offers plenty of space and an island for additional counter space. The kitchen features Formica countertops and stainless-steel appliances, including a stove, dishwasher, and microwave hood combo would make any home chef's day. You will enjoy sharing a meal in your cozy dining space. The patio is at the rear of the home with access to the family room. Moving through the open concept main living area, you'll find the primary bedroom. This bedroom is a spacious and relaxing space that includes the attached primary bathroom. Between the vanity, toilet, soaking tub, and walk-in closet, your primary space can become a haven of relaxation. In addition to all the features and amenities our Sullivan Plan offers, each Sullivan is built with our Smart Home technology package, designed to bring the ease and convenience of life right to your fingertips. This package offers devices such as the Amazon Echo Dot, Smart Switch, a Honeywell Thermostat, and more. Call to sche
Floor plan center
View floor plan details for this property.
- Floor Plans
- Exterior Images
- Interior Images
- Other Media
Neighborhood
Community location & sales center
6383 June Bug Drive
Milton, FL 32583
6383 June Bug Drive
Milton, FL 32583
888-790-3488
Schools near Rivers Cove
- Santa Rosa Schools
- Bagdad Elementary School
- Hobbs Middle School
Actual schools may vary. Contact the builder for more information.
Amenities
Home details
Now building
This home is currently under construction at 6457 FIREFLY DR and will soon be available for move-in at Rivers Cove. Contact D.R. Horton today to lock in your options!
Nearby schools
Santa Rosa Schools
Elementary school. Grades PK to 5.
- Public school
- Teacher - student ratio: 1:13
- Students enrolled: 498
4512 Forsyth St, Milton, FL, 32583
850-983-5680
Middle school. Grades 6 to 8.
- Public school
- Teacher - student ratio: 1:19
- Students enrolled: 700
5317 Glover Ln, Milton, FL, 32570
850-983-5630
Actual schools may vary. We recommend verifying with the local school district, the school assignment and enrollment process.
Neighborhood amenities
Food Outlet
1.86 miles away
6516 Caroline St
Bypass Farmers Market-Oriental
2.19 miles away
5177 Dogwood Dr
Pic & Save
2.27 miles away
5221 Stewart St
Winn-Dixie
2.78 miles away
5428 Dogwood Dr
Publix
3.88 miles away
5854 Dogwood Dr
Milton Quality Bakery
2.10 miles away
6727 Caroline St
Alternative Health Food Store
2.66 miles away
5533 Highway 90
Nouveau Pastries
2.67 miles away
5113 Westport Dr
Max Fit Sport Nutrition
3.79 miles away
5082 Highway 90
Golden's Soul Food LLC
0.82 mile away
4232 Rice Rd
Jin Jin Chinese Restaurant
1.19 miles away
6209 Highway 90
Stella Lady Goat LLC
1.19 miles away
6223 Highway 90
Taco Bell
1.28 miles away
6281 Highway 90
Ollie's Neighborhood Grill
1.30 miles away
6181 Highway 90
Cozy Cup
2.02 miles away
5111 Dogwood Dr
Starbucks
4.39 miles away
4830 Highway 90
Dunkin'
6.31 miles away
4804 US 90
Starbucks
6.31 miles away
4727 Caroline St
Cato Fashions
1.19 miles away
6271 Highway 90
Bealls
1.90 miles away
6548 Caroline St
Little Angel Boutique
2.00 miles away
4601 W Bushnell Rd
Family Dollar
2.69 miles away
5397 Stewart St
Cove Pub
2.27 miles away
4537 Chantilly Way
Spot Tavern
2.41 miles away
5271 Stewart St
Oval Office
4.37 miles away
2790 Avalon Blvd
Chili's
4.69 miles away
4701 Highway 90
Beef'O'Brady's
7.68 miles away
4275 Woodbine Rd
Please note this information may vary. If you come across anything inaccurate, please contact us.
Builder details
D.R. Horton
In 1978, D.R. Horton broke ground on our first home in Fort Worth, Texas. Since that day, the company has defined its success not by bricks and mortar, but by the satisfaction of the families that make our houses their homes. Our foundation is a single, guiding principle: a value-first dedication to the individual needs of each and every one of our nation’s homebuyers.
From first-time homebuyers to empty nesters, our family of brands provides a home for every stage in life. Our highly-trained, market experts are where you want to live, from New Jersey to Hawaii, providing unique, personalized services tailored to your individual needs. But the real value comes from the quality construction we put into every home, and the peace of mind that comes with a premium-backed warranty from America’s Number One Homebuilder.
We’ve come a long way, and while more people choose our family of brands over any other builder in the country, we never forget the most important thing of all – the families that choose us for their place to call home.
So continue to live out those dreams, America, and know we’ll be here for you every step of the way.
More new homes in Milton, Florida
6457 FIREFLY DR (The Sullivan) by D.R. Horton
saved to favorites!
To see all the homes you’ve saved, visit the My Favorites section of your account.
Discover More Great Communities
Select additional listings for more information
Way to Go!
An agent will be in contact soon!
