8032 FIR TREE DR (The Walker)
Under Construction
Milton, FL 32583
Home by D.R. Horton
Last updated 2 days ago
The Price Range displayed reflects the base price of the homes built in this community.
You get to select from the many different types of homes built by this Builder and personalize your New Home with options and upgrades.
3 BR
2 BA
2 GR
1,631 SQ FT
Claim this listing to update information, get access to exclusive tools and more!

Floor Plan 1/1
Overview
1 Story
1631 Sq Ft
2 Bathrooms
2 Car Garage
3 Bedrooms
Single Family
8032 FIR TREE DR (The Walker) Home Info
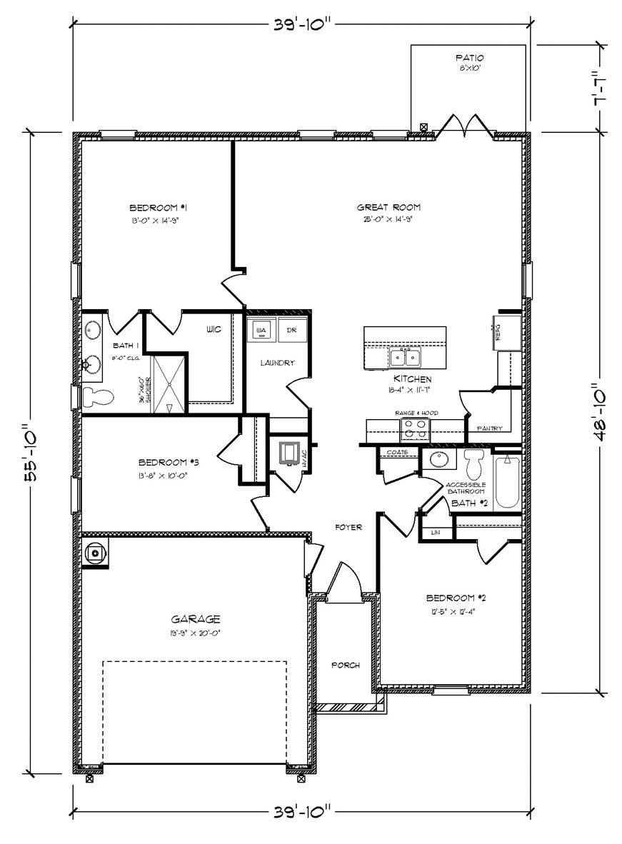
Welcome to 8032 Fir Tree Drive the Walker Plan, at Blackwater Reserve, our new home community in Milton, Florida. Just over 1,600 square feet, this beautiful single- story home offers 3-bedrooms with 2-bathrooms, a 2-car garage, and a seamless open layout with charming features that are sure to make you feel right at home. As you enter the home, you are met with an inviting foyer with storage, a full guest bathroom, and a hall leading to the 1st and 2nd secondary bedrooms. Also from the foyer is access to the 2-car garage. Further into the home, you will find the open layout of the living area and beautiful kitchen. The kitchen includes quartz countertops, stainless steel appliances, stylish shaker cabinetry, and center island. With natural light and nearby patio access, the living and dining area are integrated perfectly to complete this relaxing atmosphere. The abundance of large windows makes this home come to life with natural light. The primary bedroom is tucked away off the living area and includes an ensuite bathroom and large walk-in closet. The spa-like ensuite bath includes a relaxing shower and double vanity sink. In addition to all the features and amenities our Lismore Plan offers, each Lismore is built with our Smart Home technology package which includes a KwikSet keyless entry, Skybell doorbell, Echo Dot device, and a Quolsys touch panel. This plan is ideal for any size family. Home and community information, including pricing, included features, terms, av
Floor plan center
View floor plan details for this property.
- Floor Plans
- Exterior Images
- Interior Images
- Other Media
Neighborhood
Community location & sales center
8181 Fir Tree Drive
Milton, FL 32583
8181 Fir Tree Drive
Milton, FL 32583
888-790-3488
Schools near Blackwater Reserve
- Manatee County Public Schools
- Santa Rosa Schools
Actual schools may vary. Contact the builder for more information.
Amenities
Home details
Now building
This home is currently under construction at 8032 FIR TREE DR and will soon be available for move-in at Blackwater Reserve. Contact D.R. Horton today to lock in your options!
Neighborhood amenities
Piggly Wiggly
0.88 mile away
9447 Highway 87 S
Pic & Save
3.61 miles away
5221 Stewart St
Food Outlet
4.14 miles away
6516 Caroline St
Winn-Dixie
4.21 miles away
5428 Dogwood Dr
Bypass Farmers Market-Oriental
4.35 miles away
5177 Dogwood Dr
Milton Quality Bakery
3.50 miles away
6727 Caroline St
Nouveau Pastries
5.56 miles away
5113 Westport Dr
Alternative Health Food Store
6.69 miles away
5533 Highway 90
Max Fit Sport Nutrition
7.77 miles away
5082 Highway 90
Waffle House
1.18 miles away
8555 Keshav Taylor Dr
Krispy Krunchy Chicken
1.20 miles away
8551 Keshav Taylor Dr
Hunt Brothers Pizza
1.43 miles away
9001 Highway 87 S
Outer Limits Restaurant
2.55 miles away
5717 Vonnie Branch Rd
K & B Home Etc
3.09 miles away
5198 Willing St
Cozy Cup
4.35 miles away
5111 Dogwood Dr
Starbucks
8.37 miles away
4830 Highway 90
Family Dollar
0.53 mile away
8255 Highway 90
Family Dollar
3.58 miles away
5397 Stewart St
Bealls
4.12 miles away
6548 Caroline St
Cato Fashions
4.90 miles away
6271 Highway 90
Spot Tavern
3.55 miles away
5271 Stewart St
Cove Pub
6.37 miles away
4537 Chantilly Way
Oval Office
8.68 miles away
2790 Avalon Blvd
Chili's
8.70 miles away
4701 Highway 90
Please note this information may vary. If you come across anything inaccurate, please contact us.
Builder details
D.R. Horton
In 1978, D.R. Horton broke ground on our first home in Fort Worth, Texas. Since that day, the company has defined its success not by bricks and mortar, but by the satisfaction of the families that make our houses their homes. Our foundation is a single, guiding principle: a value-first dedication to the individual needs of each and every one of our nation’s homebuyers.
From first-time homebuyers to empty nesters, our family of brands provides a home for every stage in life. Our highly-trained, market experts are where you want to live, from New Jersey to Hawaii, providing unique, personalized services tailored to your individual needs. But the real value comes from the quality construction we put into every home, and the peace of mind that comes with a premium-backed warranty from America’s Number One Homebuilder.
We’ve come a long way, and while more people choose our family of brands over any other builder in the country, we never forget the most important thing of all – the families that choose us for their place to call home.
So continue to live out those dreams, America, and know we’ll be here for you every step of the way.
More new homes in Milton, Florida
8032 FIR TREE DR (The Walker) by D.R. Horton
saved to favorites!
To see all the homes you’ve saved, visit the My Favorites section of your account.
Discover More Great Communities
Select additional listings for more information
Way to Go!
An agent will be in contact soon!
