The Walker Plan
Ready to build
6225 Chapman Lane, Panama City FL 32404
Home by D.R. Horton
at Liberty
Last updated 20 hours ago
The Price Range displayed reflects the base price of the homes built in this community.
You get to select from the many different types of homes built by this Builder and personalize your New Home with options and upgrades.
3 BR
2 BA
2 GR
1,580 SQ FT
Claim this listing to update information, get access to exclusive tools and more!

Floorplan 0 1/2
Overview
1 Story
1580 Sq Ft
2 Bathrooms
2 Car Garage
3 Bedrooms
Single Family
The Walker Plan Info
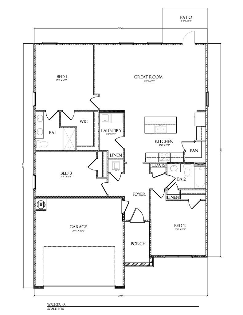
Welcome to the Walker, a new home floor plan located at Liberty in Panama City, Florida. The Walker is thoughtfully designed 3-bedroom, 2-bathroom, one-story home with 1,580 square feet of modern living. On the outside of your home, you will see durable vinyl siding, a spacious two-car garage with an opener and a fully sodded yard to the property lines. This home comes equipped with dimensional shingles with a limited lifetime warranty, electronic deadbolts on all exterior doors, weatherproof outlets, and hose bibs. Sidewalks line the neighborhood streets for you to enjoy the beautiful Florida weather at Liberty. Inside you will see 8' ceilings throughout, engineered vinyl plank flooring throughout the home and carpet in the bedrooms. The front bedrooms, bathroom, and garage are close to the front door and welcome you into an open living room and kitchen, perfect for having guests over. Granite countertops, white cabinetry with soft-close are in the kitchen and bathrooms, and the kitchen island makes hosting or serving dinner at the bar a breeze. Complete with a pantry, and stainless-steel appliances including smooth top range, microwave, and dishwasher means your kitchen is fully equipped. The living room has plenty of windows for natural lighting and leads right to the back door. Each bedroom comes with soft carpet floors and spacious closets. The Primary Bedroom features a bathroom with a detached shower and double vanity with granite countertops. The walk-in closet is ad
Floor plan center
View floor plan details for this property.
- Floor Plans
- Exterior Images
- Interior Images
- Other Media
Neighborhood
Community location & sales center
6225 Chapman Lane
Panama City, FL 32404
6225 Chapman Lane
Panama City, FL 32404
888-790-3488
Schools near Liberty
- Bay District Schools
- Tommy Smith Elementary School
- Merritt Brown Middle School
- Rutherford High School
Actual schools may vary. Contact the builder for more information.
Amenities
Home details
Ready to build
Build the home of your dreams with the The Walker plan by selecting your favorite options. For the best selection, pick your lot in Liberty today!
Nearby schools
Bay District Schools
Elementary school. Grades PK to 5.
- Public school
- Teacher - student ratio: 1:19
- Students enrolled: 639
5044 Tommy Smith Dr, Panama City, FL, 32404
850-767-1688
Middle school. Grades 6 to 8.
- Public school
- Teacher - student ratio: 1:17
- Students enrolled: 701
5044 Merritt Brown Way, Panama City, FL, 32404
850-767-3976
High school. Grades 9 to 12.
- Public school
- Teacher - student ratio: 1:20
- Students enrolled: 1337
1000 School Ave, Panama City, FL, 32401
850-767-4500
Actual schools may vary. We recommend verifying with the local school district, the school assignment and enrollment process.
Neighborhood amenities
Winn-Dixie
3.79 miles away
3621 N Highway 231
Piggly Wiggly
4.18 miles away
8012 Highway 2301
Ami Fifty Five Food Mart
5.06 miles away
2735 N Highway 231
Walmart Supercenter
5.70 miles away
725 N Tyndall Pkwy
ALDI
5.82 miles away
5500 E 7th St
Flowers Baking Co
4.89 miles away
2133 Transmitter Rd
Addy Cakes
5.10 miles away
3218 Sarasota Ave
Bbu Inc
5.45 miles away
2901 Forester Trl
Walmart Bakery
5.70 miles away
725 N Tyndall Pkwy
Jazzie Treats
5.86 miles away
532 N Tyndall Pkwy
Hunt Brothers Pizza
1.07 miles away
5500 N Star Ave
Subway
1.07 miles away
5500 N Star Ave
Hungry Howie's
1.20 miles away
5805 N Highway 231
Krispy Krunchy Chicken
1.91 miles away
6641 N Highway 231
Burger King
2.02 miles away
4709 N Highway 231
Starbucks
5.54 miles away
740 N Tyndall Pkwy
Dunkin'
5.64 miles away
712 N Tyndall Pkwy
Dunkin'
6.18 miles away
2230 S Highway 77
Wild Root
6.20 miles away
830 Florida Ave
Starbucks
6.22 miles away
2424 S Highway 77
Family Dollar
2.59 miles away
7205 N Highway 231
Salty Marsh Mercantile
4.78 miles away
3120 Country Club Dr
Viva Emporio Boutique LLC
5.01 miles away
1320 N Tyndall Pkwy
Shoe Dept
5.53 miles away
837 N Tyndall Pkwy
Cato Fashions
5.56 miles away
819 N Tyndall Pkwy
Twisted Saloon LLC
3.23 miles away
7624 Penny Rd
Coyote's Bar
4.73 miles away
2304 Transmitter Rd
Annie's Hideaway Pub
4.82 miles away
4708 Highway 389
Beef'O'Brady's
5.49 miles away
842 N Tyndall Pkwy
Applebee's Grill + Bar
5.79 miles away
600 N Tyndall Pkwy
Please note this information may vary. If you come across anything inaccurate, please contact us.
Builder details
D.R. Horton
In 1978, D.R. Horton broke ground on our first home in Fort Worth, Texas. Since that day, the company has defined its success not by bricks and mortar, but by the satisfaction of the families that make our houses their homes. Our foundation is a single, guiding principle: a value-first dedication to the individual needs of each and every one of our nation’s homebuyers.
From first-time homebuyers to empty nesters, our family of brands provides a home for every stage in life. Our highly-trained, market experts are where you want to live, from New Jersey to Hawaii, providing unique, personalized services tailored to your individual needs. But the real value comes from the quality construction we put into every home, and the peace of mind that comes with a premium-backed warranty from America’s Number One Homebuilder.
We’ve come a long way, and while more people choose our family of brands over any other builder in the country, we never forget the most important thing of all – the families that choose us for their place to call home.
So continue to live out those dreams, America, and know we’ll be here for you every step of the way.
More new homes in Panama City, Florida
The Walker Plan by D.R. Horton
saved to favorites!
To see all the homes you’ve saved, visit the My Favorites section of your account.
Discover More Great Communities
Select additional listings for more information
Way to Go!
An agent will be in contact soon!
