The Walsh Plan
Ready to build
1507 Rocky Rise, San Antonio TX 78245
Home by D.R. Horton
Last updated 1 day ago
The Price Range displayed reflects the base price of the homes built in this community.
You get to select from the many different types of homes built by this Builder and personalize your New Home with options and upgrades.
4 BR
2.5 BA
2 GR
2,323 SQ FT
Claim this listing to update information, get access to exclusive tools and more!

Floorplan 0 1/1
Overview
1 Half Bathroom
2 Stories
Single Family
The Walsh Plan Info
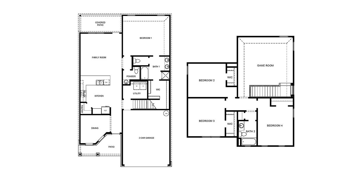
The Walsh is a two-story, 2323 square foot, 4 bedroom, 2.5 bathroom, layout designed to provide comfortable living for you and your family. A spacious covered front porch opens into a beautiful formal dining room. Follow the entry hallway into a stunning open kitchen featuring stainless steel appliances, granite countertops, stylish white subway tile backsplash, spacious corner pantry, tons of cabinet space and a large eat-in breakfast bar. The kitchen opens to a spacious living room, complete with a stunning vaulted ceiling. The living room extends to a lengthy covered patio, perfect for outdoor dining or just simply keeping an eye on the kids while they play outside. The private main bedroom suite is located downstairs off the family room and offers dual vanities, separate tub and shower, ceramic tile flooring, water closet and unique, storage-friendly, walk-in closet with shelving. A half bathroom is located off the family room and an oversized utility room is located off the kitchen by the stairs. The second floor includes a spacious game room or office area, a second full bath, and three large secondary bedrooms with walk-in closets. You'll enjoy added security in your new home with our Home is Connected features. Using one central hub that talks to all the devices in your home, you can control the lights, thermostat and locks, all from your cellular device. Additional features include 9-foot ceilings, 2-inch faux wood blinds throughout the home, luxury vinyl pla
Floor plan center
View floor plan details for this property.
- Floor Plans
- Exterior Images
- Interior Images
- Other Media
Neighborhood
Community location & sales center
1507 Rocky Rise
San Antonio, TX 78245
1507 Rocky Rise
San Antonio, TX 78245
888-355-8096
Schools near The Canyons at Amhurst
- Northside Independent School District
- Dr. Linda Mora Elementary School
- Luna Middle School
- Brennan High School
Actual schools may vary. Contact the builder for more information.
Amenities
Home details
Ready to build
Build the home of your dreams with the The Walsh plan by selecting your favorite options. For the best selection, pick your lot in The Canyons at Amhurst today!
Nearby schools
Northside Independent School District
Dr. Linda Mora Elementary School
Elementary school. Grades KG to 5
Public school
Class ratio: 1: 14
Enrollment: 565
210-398-2400
1520 American Lotus, San Antonio, TX, 78245
Luna Middle School
Middle school. Grades 6 to 8
Public school
Class ratio: 1: 17
Enrollment: 1229
210-397-5300
200 Grosenbacher Rd N, San Antonio, TX, 78253
Brennan High School
High school. Grades 9 to 12
Public school
Class ratio: 1: 17
Enrollment: 3142
210-398-1250
2400 Cottonwood Way, San Antonio, TX, 78253
Actual schools may vary. We recommend verifying with the local school district, the school assignment and enrollment process.
Neighborhood amenities
H-E-B
1.07 miles away
12355 Potranco Rd
Costco Wholesale
1.42 miles away
191 W Loop 1604 S
Walmart Supercenter
1.54 miles away
11210 Potranco Rd
Potranco Food Market
1.75 miles away
12135 Potranco Rd
Big Wolf Market
1.84 miles away
10509 Marbach Rd
Nothing Bundt Cakes
1.32 miles away
407 W Loop 1604 S
Walmart Bakery
1.54 miles away
11210 Potranco Rd
Funnel Cake Fanatics LLC
1.73 miles away
135 Fontana Albero
Juanys Bakery
1.75 miles away
12024 Potranco Rd
Tink A Taco
0.95 mile away
12060 FM 1957
Domino's
1.07 miles away
12355 Potranco Rd
Chipotle Mexican Grill
1.32 miles away
407 W Loop 1604 S
MOD Pizza
1.32 miles away
407 W Loop 1604 S
Nothing Bundt Cakes
1.32 miles away
407 W Loop 1604 S
Cajun Coffee Shack
1.06 miles away
11618 FM 1957
Shipley Do-nuts
1.33 miles away
11440 Potranco Rd
Dunkin'
1.41 miles away
11330 Potranco Rd
Rosella Coffee Co LLC
1.80 miles away
202 Willow Grove Dr
Starbucks
1.84 miles away
438 W Loop 1604 N
Seabee Cruise Box
0.64 mile away
11606 Lemonmint Pkwy
Old Navy Outlet
1.29 miles away
415 W Loop 1604 S
Ross Dress For Less
1.29 miles away
415 W Loop 1604 S
Skechers Warehouse Outlet
1.29 miles away
415 W Loop 1604 S
T.J. Maxx & HomeGoods
1.29 miles away
415 W Loop 1604 S
Buffalo Wild Wings
1.75 miles away
5411 West 1604 North
The Rusty Nail
1.75 miles away
15122 Potranco Rd
Buffalo Wild Wings GO
2.24 miles away
10538 Potranco Rd
Upper 90 Sports Bar
2.72 miles away
9870 Marbach Rd
Galaxy Vapor Lounge
3.09 miles away
9822 Potranco Rd
Please note this information may vary. If you come across anything inaccurate, please contact us.
Builder details
D.R. Horton
In 1978, D.R. Horton broke ground on our first home in Fort Worth, Texas. Since that day, the company has defined its success not by bricks and mortar, but by the satisfaction of the families that make our houses their homes. Our foundation is a single, guiding principle: a value-first dedication to the individual needs of each and every one of our nation’s homebuyers.
From first-time homebuyers to empty nesters, our family of brands provides a home for every stage in life. Our highly-trained, market experts are where you want to live, from New Jersey to Hawaii, providing unique, personalized services tailored to your individual needs. But the real value comes from the quality construction we put into every home, and the peace of mind that comes with a premium-backed warranty from America’s Number One Homebuilder.
We’ve come a long way, and while more people choose our family of brands over any other builder in the country, we never forget the most important thing of all – the families that choose us for their place to call home.
So continue to live out those dreams, America, and know we’ll be here for you every step of the way.
More new homes in San Antonio, Texas
The Walsh Plan by D.R. Horton
saved to favorites!
To see all the homes you’ve saved, visit the My Favorites section of your account.
Discover More Great Communities
Select additional listings for more information
Way to Go!
An agent will be in contact soon!
