Topaz Plan
Ready to build
4531 Mifflin Street, Fernley NV 89408
Home by D.R. Horton
at Nevada Sky
Last updated 3 days ago
The Price Range displayed reflects the base price of the homes built in this community.
You get to select from the many different types of homes built by this Builder and personalize your New Home with options and upgrades.
3 BR
2 BA
2 GR
1,501 SQ FT
Claim this listing to update information, get access to exclusive tools and more!

Floorplan 0 1/1
Overview
1 Story
1501 Sq Ft
2 Bathrooms
2 Car Garage
3 Bedrooms
Single Family
Topaz Plan Info
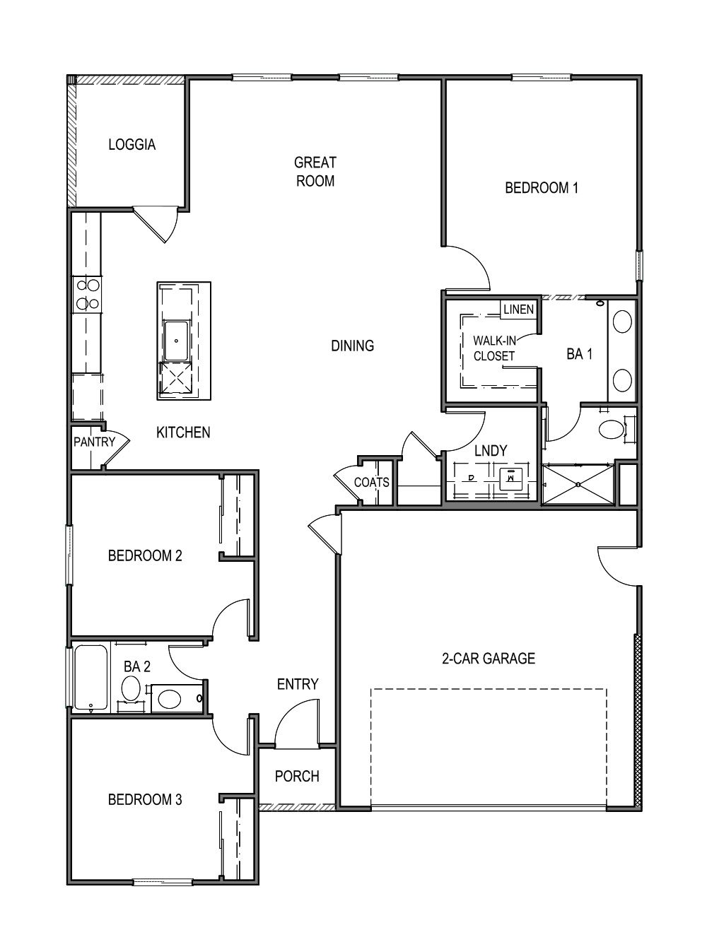
Make the Topaz floorplan in our Nevada Sky community your new home in Fernley. This single-story home features 3 bedrooms, 2 bathrooms, and a 2-car garage. Spanning 1,501 sq. ft., this cozy home provides modern interiors and three exterior design options: West Coast, Craftsman, and Farmhouse. When you enter the home, you'll be greeted with two bedrooms and a secondary bathroom. There's easy interior access to the two-car garage, so you can come and go without even stepping outside. The open-concept living area blends the kitchen, great room, and dining area, allowing you many options for furniture placement. Large windows mean plenty of natural light, opening up this living space even more. From the living area, you have easy access to the laundry room. The kitchen's stainless steel appliances, shaker-style cabinetry, and quartz countertops are perfect for the home chef. The island separates the kitchen from the dining and living areas. By the kitchen, find the door to your backyard. The primary bedroom is situated near the great room. This spacious room has an attached bathroom, making it a cozy, separate space for you. The primary bathroom has a double vanity and a large walk-in closet.
Floor plan center
View floor plan details for this property.
- Floor Plans
- Exterior Images
- Interior Images
- Other Media
Neighborhood
Community location & sales center
4531 Mifflin Street
Fernley, NV 89408
4531 Mifflin Street
Fernley, NV 89408
888-355-8096
Schools near Nevada Sky
- Lyon County School District
Actual schools may vary. Contact the builder for more information.
Amenities
Home details
Ready to build
Build the home of your dreams with the Topaz plan by selecting your favorite options. For the best selection, pick your lot in Nevada Sky today!
Builder details
D.R. Horton
In 1978, D.R. Horton broke ground on our first home in Fort Worth, Texas. Since that day, the company has defined its success not by bricks and mortar, but by the satisfaction of the families that make our houses their homes. Our foundation is a single, guiding principle: a value-first dedication to the individual needs of each and every one of our nation’s homebuyers.
From first-time homebuyers to empty nesters, our family of brands provides a home for every stage in life. Our highly-trained, market experts are where you want to live, from New Jersey to Hawaii, providing unique, personalized services tailored to your individual needs. But the real value comes from the quality construction we put into every home, and the peace of mind that comes with a premium-backed warranty from America’s Number One Homebuilder.
We’ve come a long way, and while more people choose our family of brands over any other builder in the country, we never forget the most important thing of all – the families that choose us for their place to call home.
So continue to live out those dreams, America, and know we’ll be here for you every step of the way.
More new homes in Fernley, Nevada
Topaz Plan by D.R. Horton
saved to favorites!
To see all the homes you’ve saved, visit the My Favorites section of your account.
Discover More Great Communities
Select additional listings for more information
Way to Go!
An agent will be in contact soon!
