Torino Plan
Ready to build
7548 Broad River Avenue, Land O' Lakes FL 34638
Home by D.R. Horton
at Deerbrook
Last updated 20 hours ago
The Price Range displayed reflects the base price of the homes built in this community.
You get to select from the many different types of homes built by this Builder and personalize your New Home with options and upgrades.
5 BR
4.5 BA
3 GR
3,975 SQ FT
Claim this listing to update information, get access to exclusive tools and more!

Floorplan 0 1/1
Overview
1 Half Bathroom
2 Stories
Single Family
Torino Plan Info
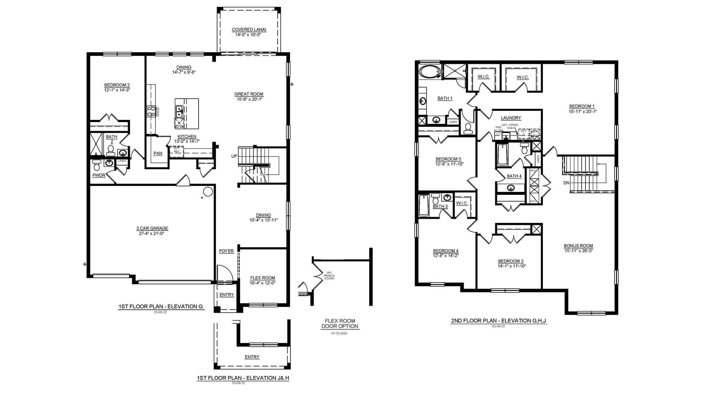
This two-story, concrete block-constructed home features a flex space and a separate dining room upon entry. A well-appointed kitchen with a walk-in pantry and dinette overlooks a spacious great room that leads to a covered lanai. The first floor is complete with a guest suite and a full bath. Bedroom 1 with ensuite bath provides dual walk-in closets and connects to a spacious laundry room for convenience. Three additional bedrooms, one with an ensuite bathroom, can be found off the grand bonus living room. Pictures, photographs, colors, features, and sizes are for illustration purposes only and will vary from the homes as built. Home and community information including pricing, included features, terms, availability, and amenities are subject to change and prior sale at any time without notice or obligation. CBC039052.
Floor plan center
View floor plan details for this property.
- Floor Plans
- Exterior Images
- Interior Images
- Other Media
Neighborhood
Community location & sales center
7548 Broad River Avenue <br/> Land O Lakes, FL 34638
7548 Broad River Avenue <br/> Land O Lakes, FL 34638
888-790-3488
Schools near Deerbrook
- Pasco County School District
- Connerton Elementary School
- Pine View Middle School
Actual schools may vary. Contact the builder for more information.
Amenities
Home details
Ready to build
Build the home of your dreams with the Torino plan by selecting your favorite options. For the best selection, pick your lot in Deerbrook today!
Nearby schools
Pasco County School District
Connerton Elementary School
Elementary school. Grades PK to 5.
Public school
Teacher - student ratio: 1:16
Students enrolled: 958
813-346-1800
9300 Flourish Dr, Land O Lakes, FL, 34637
Pine View Middle School
Middle school. Grades 6 to 8.
Public school
Teacher - student ratio: 1:18
Students enrolled: 1170
813-794-4800
5334 Parkway Blvd, Land O Lakes, FL, 34639
Actual schools may vary. We recommend verifying with the local school district, the school assignment and enrollment process.
Builder details
D.R. Horton
In 1978, D.R. Horton broke ground on our first home in Fort Worth, Texas. Since that day, the company has defined its success not by bricks and mortar, but by the satisfaction of the families that make our houses their homes. Our foundation is a single, guiding principle: a value-first dedication to the individual needs of each and every one of our nation’s homebuyers.
From first-time homebuyers to empty nesters, our family of brands provides a home for every stage in life. Our highly-trained, market experts are where you want to live, from New Jersey to Hawaii, providing unique, personalized services tailored to your individual needs. But the real value comes from the quality construction we put into every home, and the peace of mind that comes with a premium-backed warranty from America’s Number One Homebuilder.
We’ve come a long way, and while more people choose our family of brands over any other builder in the country, we never forget the most important thing of all – the families that choose us for their place to call home.
So continue to live out those dreams, America, and know we’ll be here for you every step of the way.
More new homes in Land O' Lakes, Florida
Torino Plan by D.R. Horton
saved to favorites!
To see all the homes you’ve saved, visit the My Favorites section of your account.
Discover More Great Communities
Select additional listings for more information
Way to Go!
An agent will be in contact soon!
