Zephyr Plan
Ready to build
Reno NV 89506
Home by D.R. Horton
Last updated 2 days ago
The Price Range displayed reflects the base price of the homes built in this community.
You get to select from the many different types of homes built by this Builder and personalize your New Home with options and upgrades.
4 BR
2.5 BA
2 GR
1,678 SQ FT
Claim this listing to update information, get access to exclusive tools and more!

Floorplan 0 1/2
Overview
1 Half Bathroom
1678 Sq Ft
2 Bathrooms
2 Car Garage
2 Stories
4 Bedrooms
Single Family
Zephyr Plan Info
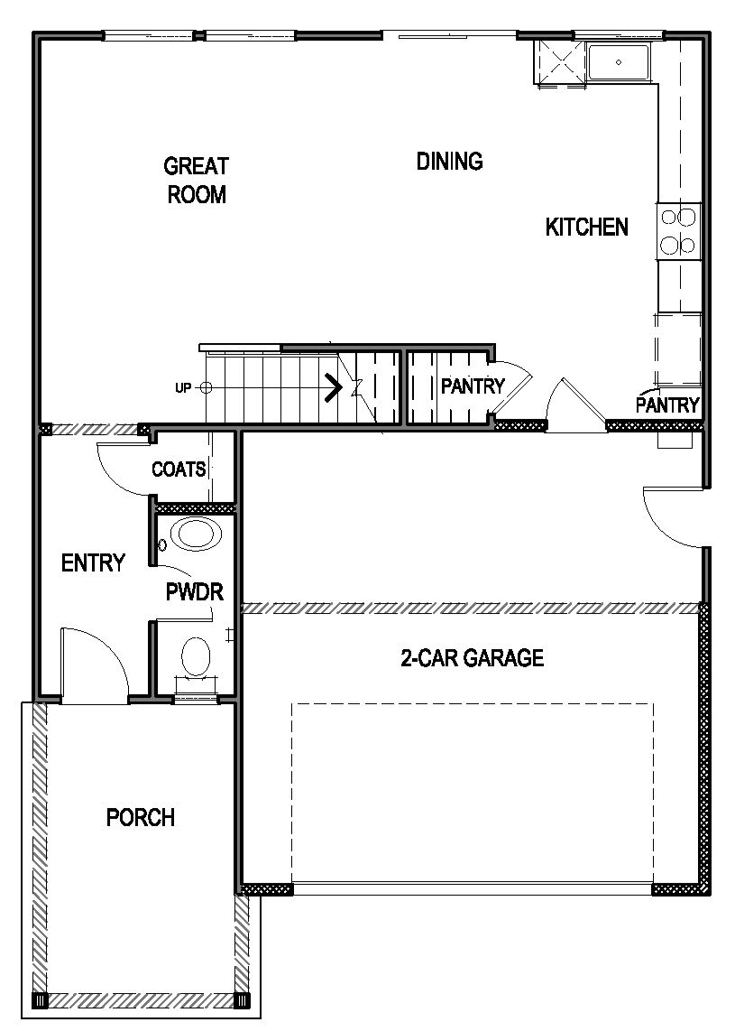
The Zephyr floorplan is a two-story home option in our Arroyo Crossing Reno community. Make yourself at home in the four-bedroom, 2.5-bath layout. All 1,678 sq. ft. is packed with modern comfort and functionality. This floorplan features three exterior elevation options: Farmhouse, Craftsman, and West Coast. You'll enjoy the first floor, which features a beautiful open-concept design. Whether you stay home in the great room or the large kitchen, you'll always be close to the action. There's access to the 2-car garage through the kitchen. Heading up the stairs, you'll find the perfect place to rest or create bonus spaces within the four carpeted bedrooms. The laundry room is also placed in the upstairs hall, so laundry day will be a breeze with this practical placement. The secondary bathroom is placed between the three secondary bedrooms. The primary bedroom has an attached bathroom with a double vanity, walk-in closet, and separate water closet, making getting ready for your day or bed stress-free. Not only do you have a floorplan built for everyday functionality, but smart home technology is also included in every D.R. Horton home. Monitor your home and control your comfort through your phone, the Qolsys panel, or by voice command. Talk to us today to learn more about the Zephyr floorplan!
Floor plan center
View floor plan details for this property.
- Floor Plans
- Exterior Images
- Interior Images
- Other Media
Neighborhood
Community location
7477 Capstone Drive
Reno, NV 89506
7477 Capstone Drive
Reno, NV 89506
888-355-8096
Schools near Arroyo Crossing
- Washoe County School District
Actual schools may vary. Contact the builder for more information.
Amenities
Home details
Ready to build
Build the home of your dreams with the Zephyr plan by selecting your favorite options. For the best selection, pick your lot in Arroyo Crossing today!
Builder details
D.R. Horton
In 1978, D.R. Horton broke ground on our first home in Fort Worth, Texas. Since that day, the company has defined its success not by bricks and mortar, but by the satisfaction of the families that make our houses their homes. Our foundation is a single, guiding principle: a value-first dedication to the individual needs of each and every one of our nation’s homebuyers.
From first-time homebuyers to empty nesters, our family of brands provides a home for every stage in life. Our highly-trained, market experts are where you want to live, from New Jersey to Hawaii, providing unique, personalized services tailored to your individual needs. But the real value comes from the quality construction we put into every home, and the peace of mind that comes with a premium-backed warranty from America’s Number One Homebuilder.
We’ve come a long way, and while more people choose our family of brands over any other builder in the country, we never forget the most important thing of all – the families that choose us for their place to call home.
So continue to live out those dreams, America, and know we’ll be here for you every step of the way.
More new homes in Reno, Nevada
Zephyr Plan by D.R. Horton
saved to favorites!
To see all the homes you’ve saved, visit the My Favorites section of your account.
Discover More Great Communities
Select additional listings for more information
Way to Go!
An agent will be in contact soon!
