ZION Plan
Ready to build
4222 Misty Woods Way, Sparks NV 89436
Home by D.R. Horton
at Golden Eagle
Last updated 1 day ago
The Price Range displayed reflects the base price of the homes built in this community.
You get to select from the many different types of homes built by this Builder and personalize your New Home with options and upgrades.
4 BR
3 BA
2 GR
2,075 SQ FT
Claim this listing to update information, get access to exclusive tools and more!

Floorplan 0 1/2
Overview
2 Stories
Single Family
ZION Plan Info
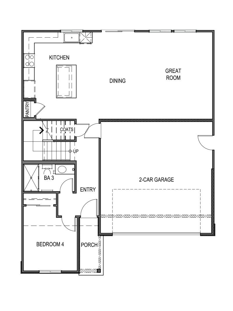
Come see our stunning Zion floorplan at Golden Eagle. With four bedrooms, a loft, and three bathrooms, it is the perfect fit for you. This floorplan covers 2,075 sq. ft. and has an appealing open-concept layout designed to fit your needs. This home has beautiful features that create a welcoming ambiance, and the 2-car garage ensures plenty of space for vehicles and storage. On the second floor, you'll be treated to a loft space just waiting to be turned into a bonus area. The two secondary bedrooms are cozy and carpeted, with plenty of closet space. The laundry room and a secondary bathroom are perfectly placed next to these rooms. The primary bedroom will make you feel right at home. With an attached primary bathroom, starting your day or winding down will be a breeze. A large walk-in closet ensures plenty of storage space. Every D.R. Horton home has smart home technology built in. You'll never be far from home when you're living in the Golden Eagle community, from security to control over your energy usage. There's plenty of space to grow in the Zion floorplan.
Floor plan center
View floor plan details for this property.
- Floor Plans
- Exterior Images
- Interior Images
- Other Media
Neighborhood
Community location & sales center
4222 Misty Woods Way
Sparks, NV 89436
4222 Misty Woods Way
Sparks, NV 89436
888-355-8096
Schools near Golden Eagle
- Washoe County School District
- Van Gorder Elementary School
- Sky Ranch Middle School
- Spanish Springs High School
Actual schools may vary. Contact the builder for more information.
Amenities
Home details
Ready to build
Build the home of your dreams with the ZION plan by selecting your favorite options. For the best selection, pick your lot in Golden Eagle today!
Nearby schools
Washoe County School District
Van Gorder Elementary School
Elementary school. Grades KG to 5
Public school
Class ratio: 1: 17
Enrollment: 604
775-425-7722
7650 Campello Dr, Sparks, NV, 89436
Sky Ranch Middle School
Middle school. Grades 6 to 8
Public school
Class ratio: 1: 25
Enrollment: 1289
775-626-0060
1200 Windmill Farms Pkwy, Sparks, NV, 89434
Spanish Springs High School
High school. Grades 9 to 12
Public school
Class ratio: 1: 23
Enrollment: 2057
775-425-7733
1065 Eagle Canyon Dr, Sparks, NV, 89441
Actual schools may vary. We recommend verifying with the local school district, the school assignment and enrollment process.
Builder details
D.R. Horton
In 1978, D.R. Horton broke ground on our first home in Fort Worth, Texas. Since that day, the company has defined its success not by bricks and mortar, but by the satisfaction of the families that make our houses their homes. Our foundation is a single, guiding principle: a value-first dedication to the individual needs of each and every one of our nation’s homebuyers.
From first-time homebuyers to empty nesters, our family of brands provides a home for every stage in life. Our highly-trained, market experts are where you want to live, from New Jersey to Hawaii, providing unique, personalized services tailored to your individual needs. But the real value comes from the quality construction we put into every home, and the peace of mind that comes with a premium-backed warranty from America’s Number One Homebuilder.
We’ve come a long way, and while more people choose our family of brands over any other builder in the country, we never forget the most important thing of all – the families that choose us for their place to call home.
So continue to live out those dreams, America, and know we’ll be here for you every step of the way.
More new homes in Sparks, Nevada
ZION Plan by D.R. Horton
saved to favorites!
To see all the homes you’ve saved, visit the My Favorites section of your account.
Discover More Great Communities
Select additional listings for more information
Way to Go!
An agent will be in contact soon!
