THIS COMMUNITY IS NO LONGER AVAILABLE ON NEWHOMESOURCE
Similar communities nearby
Contact Builder for Details
Desert Zen at Divario - St. George
Saint George, UT 84770
Visionary Homes
$284,990 - $339,990
Desert Color - St. George (Condos)
Saint George, UT 84790
2 Homes 2 Floor plans
Visionary Homes
$329,900 - $397,400
Desert Color Auburn Hills Condos
St George, UT 84790
4 Homes 2 Floor plans
Holmes Homes
The Resort Center
Homes by Black Desert Resort
NOT AVAILABLE ON NEWHOMESOURCE
Learn more about this market

Community & neighborhood
Community info
The Resort Center
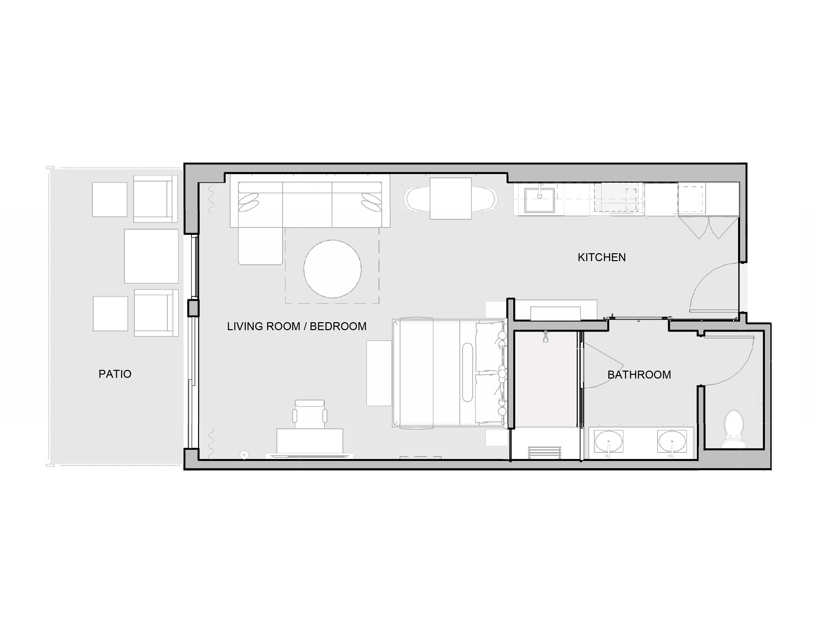
Welcome to Resort Center As the central hub of Black Desert Resort, Resort Center combines exceptional living with everyday ease. While you’ll have a range of premium amenities within close proximity—such as diverse dining options, a world-class spa, a state-of-the-art fitness center, and a sparkling pool, all just a short walk from your residence—you'll also have the freedom to explore and enjoy the full spectrum of shared experiences throughout the resort. No matter where you stay, the best of Black Desert Resort is always within reach, promising endless opportunities to make the most of every visit. At Black Desert Resort, your residence becomes a sanctuary of wellness and relaxation. Here, time stands still and a “quiet night at home” takes on a whole new meaning. Experience a new level of serenity and renewal in a setting where ancient landscapes meet modern luxury by indulging in the resort's wellness offerings. Residing at the Resort Center means delicious experiences right at your doorstep. From fine dining to casual bites, indulge in a variety of delights without traveling too far. Beyond the exceptional amenities right in Resort Center, there’s even more to enjoy just a short stroll away. From delicious dining options and vibrant social spaces to world-class golf facilities and exciting recreational activities, the entire resort is designed to enrich your lifestyle and every experience is within reach when you become part of our community. For most, Black Desert Resort is a temporary getaway. For you, it’s an anytime escape. Discover our thoughtfully designed residential options, ranging from stylish studios to inviting one-bedroom plans. Each residence offers flexible configurations to suit your lifestyle. Size: 600 - 1,070 sq ft Bedrooms: studio, 1BR Beds: king or double queen Turn-key furniture packages available Seize this special opportunity to call Greater Zion home.
Amenities
- Golf Course
- Pool
- Trails
- FitnessCenter
- GolfSimulator
- HotTub
- OutdoorPool
- Pickleball
- Sauna
- YogaStudio
- Park
- Garden
- SplashPad
- Waterpark
- Latitude (Modern American Cuisine)
- 20th Hole (Sports Bar)
- Basalt (Steakhouse)
- Flo (Lobby Bar)
- Lava Love (Coffee Bar)
- Views
- MountainViews