Luray Landing
Luray, VA
Community by D.R. Horton
Last updated 2 days ago
$244,990
What does this Price Range mean?The Price Range displayed reflects the base price of the homes built in this community.
You get to select from the many different types of homes built by this Builder and personalize your New Home with options and upgrades.
Claim this listing to update information, get access to exclusive tools and more!
Subdivision Image 0 1/1
Are you the builder for Luray Landing?
Available homes
Overview
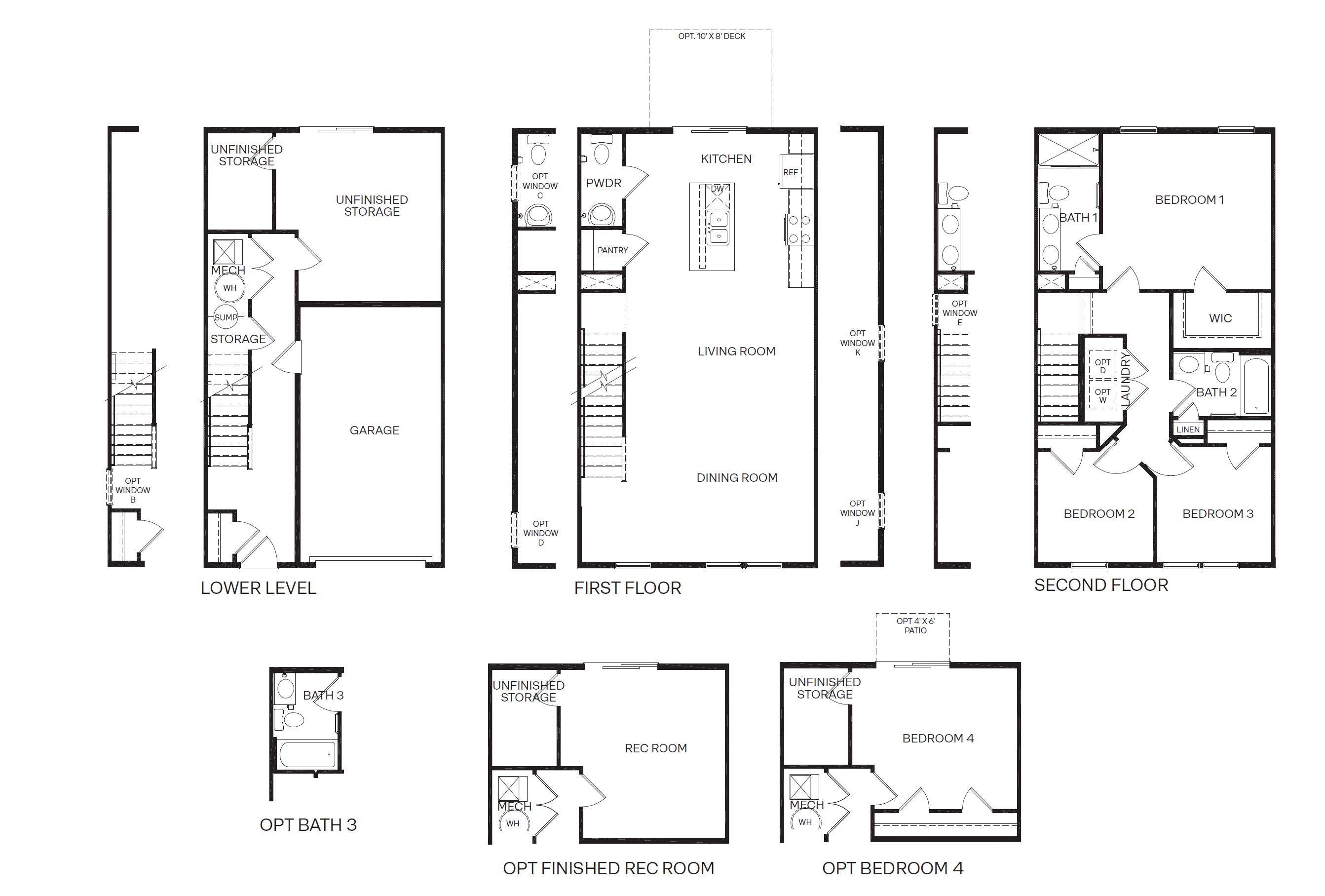
Brand-new townhomes at Luray Landing are now available in Luray, Virginia! Located just off Route 211, this community is close to retail, tourist destinations, and the Luray airport. These 3-bed, 2.5-bath townhomes feature granite countertops, stainless steel appliances, upgraded flooring, and Smart Home Technology. Let's schedule your visit today, we can't wait to welcome you home!
Neighborhood
Community location & sales center
213 Baker Drive
Luray, VA 22835
213 Baker Drive
Luray, VA 22835
888-790-3488
Amenities
Community & neighborhood
Schools near Luray Landing
- Page County Public Schools
- Luray Elementary School
- Luray High School
Actual schools may vary. Contact the builder for more information.
Nearby schools
Page County Public Schools
Elementary school. Grades PK to 5.
- Public school
- Teacher - student ratio: 1:12
- Students enrolled: 475
555 First St, Luray, VA, 22835
540-743-4078
High school. Grades 9 to 12.
- Public school
- Teacher - student ratio: 1:14
- Students enrolled: 499
243 Bulldog Dr, Luray, VA, 22835
540-743-3800
Actual schools may vary. We recommend verifying with the local school district, the school assignment and enrollment process.
Neighborhood amenities
Walmart Supercenter
0.22 mile away
1036 US Highway 211 W
Food Lion
0.37 mile away
1400 US Highway 211 W
Farmer's Foods
2.52 miles away
8 E Luray Shopping Ctr
Bo's Belly Barn
2.68 miles away
925 E Main St
Fairview Country Market & Deli
3.54 miles away
101 S Antioch Rd
Walmart Bakery
0.22 mile away
1036 US Highway 211 W
Kissy's Sweets & Treats
1.07 miles away
657 W Main St
Main Street Bakery & Catering
1.98 miles away
127 E Main St
Kissy's Sweets & Treats
2.10 miles away
229 E Main St
Baskin-Robbins
0.26 mile away
1046 US Highway 211 W
Burger King
0.29 mile away
1034 US Highway 211 W
Flotzie's Soft Serve
0.29 mile away
1034B US Highway 211 W
McDonald's
0.31 mile away
1020 US Highway 211 W
Pizza Hut Express
0.37 mile away
1350 US Highway 211 W
Broad Porch Coffee
1.74 miles away
20 W Main St
Espresso Tech LLC
4.02 miles away
460 Almond Dr
Dunkin'
9.82 miles away
145 W Old Cross Rd
Walmart Supercenter
0.22 mile away
1036 US Highway 211 W
Family Dollar
6.25 miles away
291 W Main St
Family Dollar
9.79 miles away
5450 Main St
Skyland Resort
1.80 miles away
26 N Broad St
#1 Rock Tavern River Kamp
3.49 miles away
1420 S Page Valley Rd
Castle Vineyards
5.38 miles away
2220 Mims Rd
Miller Grille
9.79 miles away
9660 Fairway Dr
Shenvalee Sports Lounge
9.79 miles away
9660 Fairway Dr
Please note this information may vary. If you come across anything inaccurate, please contact us.
In 1978, D.R. Horton broke ground on our first home in Fort Worth, Texas. Since that day, the company has defined its success not by bricks and mortar, but by the satisfaction of the families that make our houses their homes. Our foundation is a single, guiding principle: a value-first dedication to the individual needs of each and every one of our nation’s homebuyers.
From first-time homebuyers to empty nesters, our family of brands provides a home for every stage in life. Our highly-trained, market experts are where you want to live, from New Jersey to Hawaii, providing unique, personalized services tailored to your individual needs. But the real value comes from the quality construction we put into every home, and the peace of mind that comes with a premium-backed warranty from America’s Number One Homebuilder.
We’ve come a long way, and while more people choose our family of brands over any other builder in the country, we never forget the most important thing of all – the families that choose us for their place to call home.
So continue to live out those dreams, America, and know we’ll be here for you every step of the way.
Nearby communities in Luray, Virginia
Luray Landing
Discover More Great Communities
Select additional listings for more information
Way to Go!
An agent will be in contact soon!
