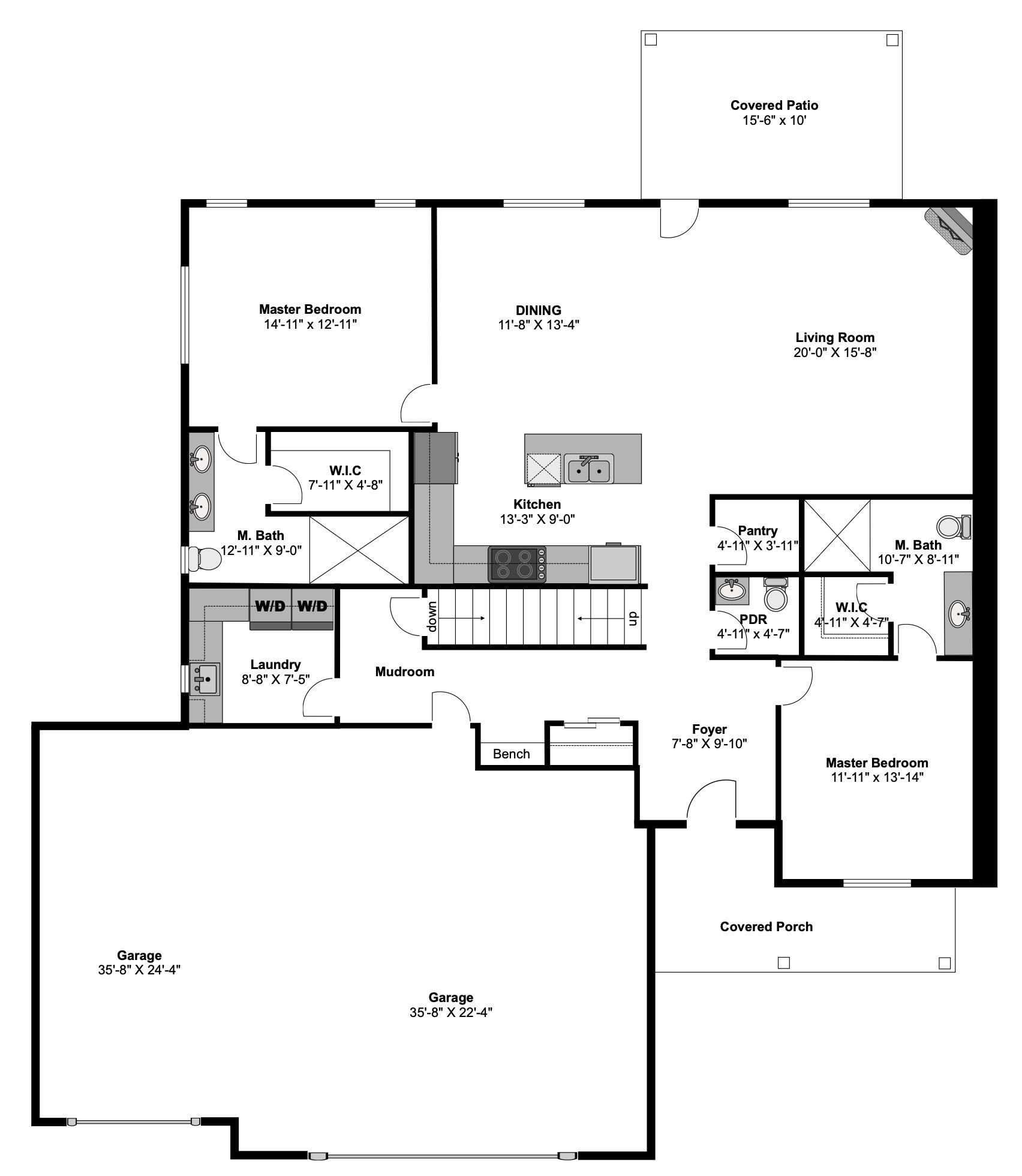
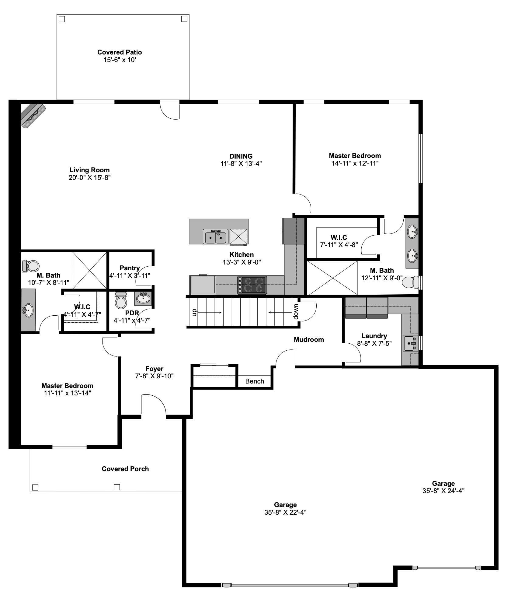
Instead of picking from a small handful of predesigned floor plans, building a custom home in Casper gives you complete creative control over nearly every aspect of the process. This level of flexibility allows you to not only design the best possible home for your unique lifestyle, but you can even build it on land that you already own.
How to Build a Custom Home in Casper
For the homeowner that wants a truly one-of-a-kind house, we’re proud to showcase some of the best custom homes in Casper, WY. As you read this, there are currently 0 custom home builders located in Casper and the surrounding area. With custom homes being built in over 0 new home communities, you can still enjoy many of the wonderful amenities and benefits of living in a close knit neighborhood, but do so without living in a cookie-cutter house.
From concept to construction, the process of building a custom home in Casper allows you the rare opportunity to personalize every detail in your home from the ground up. Bedroom count? Bathroom count? That’s all up to you when you start designing your new custom home!