Reserve At Berry Bay 60'
3301F
2995 Blueberry Bend Street, Wimauma, FL, 33598
by Perry Homes
From $733,900 This is the starting price for this plan and is subject to change.
- 4 Beds
- 3.5 Baths
- 3 Car garage
- 3,301 Sq Ft
Overview
Floor plan features
- 1 Half Bathroom
- 2 Stories
- Primary Bed Downstairs
- Single Family
Floor plan description
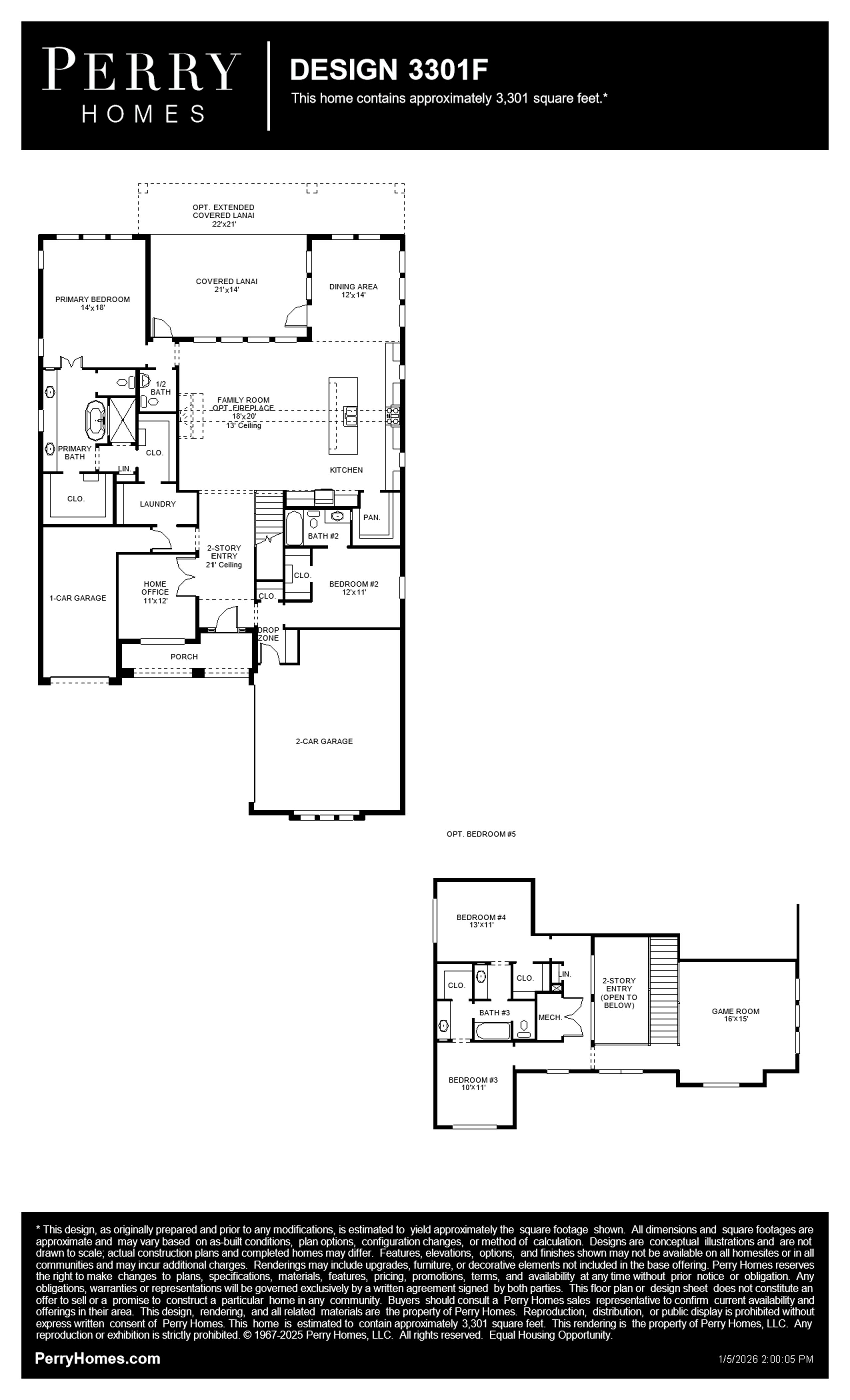
Step off the front porch and into the welcoming two-story entryway. French doors enclose the secluded home office that overlooks onto the porch. Adjacent to the office is a private guest suite with full bathroom and walk-in closet. As you stroll past the staircase you enter into the large family room with ample natural light from the wall of windows. Connecting to the space is the kitchen with an island that has built-in seating and a generous walk-in pantry. The dining area is embraced by a corner of windows and allows access to the backyard covered lanai. The primary bedroom is located off the family room and boasts a wall of windows. Double doors lead into the primary bathroom with dual sinks, a garden tub, glass enclosed shower, two walk-in closets, and dual access to the laundry room....
Explore this home
Explore custom options for this floor plan.
Community highlights
Community amenities
Basketball
Club House
Community Center
Playground
Pool
Neighborhood
Community location & sales center
2995 Blueberry Bend Street Wimauma, FL 33598
2995 Blueberry Bend Street Wimauma, FL 33598
888-965-0064
From Tampa, get on US-41 S/S Tamiami Trl from S Magnolia Ave and W Platt St (no tolls). Continue on US-41 S to Gibsonton Dr in Gibsonton, then get on I-75 South toward Naples. Follow I-75 S to Exit 240A for FL-674 E/College Ave toward Sun City Center/Ruskin and continue east. Turn right onto US-301 South, then follow Berry Grove Blvd to Blueberry Bend Street in Wimauma.
Amenities
Community & neighborhood
Social activities
- Club House
Health and fitness
- Pool
- Basketball
Community services & perks
- Playground
- Community Center
Builder details
Perry Homes

Perry Homes is the largest woman-owned homebuilder and has established a Tradition of Excellence in homebuilding over the past 57 years. Family-owned and operated since its inception in 1967, Perry Homes is committed to building quality, superior homes while providing first-class customer service before, during, and after construction. The homebuilder has earned a phenomenal reputation by evolving with the wants and needs of its 60,000+ customers, all while securing a 95% satisfaction rating*. With more than 450 new home designs, buyers will find a robust selection of quality standard features and design options in every home that radiate elegance and sophistication, including soaring ceilings, gorgeous walls of windows, open concepts, and flexible spaces to fit any lifestyle. Perry Homes offers a variety of timeless and modern architectural concepts in over 100 of the most sought-after communities throughout Austin, Dallas/Fort Worth, Houston, San Antonio, and now Florida. In Florida, Perry Homes is building in communities across the state, including Tampa, Sarasota, Port St. Lucie, and Jacksonville. Perry Homes | Britton Homes is led by Executive Chair Kathy Perry Britton and Chief Executive Officer Todd Chachere. *Since 2016, over 95% of homeowners who completed our New Homeowner Survey have rated their overall satisfaction as “Satisfied” or “Very Satisfied.” Surveys are sent to the primary customer contact for every home between 30 and 60 days after closing.
Take the next steps toward your new home
This listing's information was verified with the builder for accuracy 1 day ago
3301F Plan by Perry Homes
saved to favorites!
To see all the homes you’ve saved, visit the My Favorites section of your account.
Discover More Great Communities
Select additional listings for more information
We're preparing your brochure
You're now connected with Perry Homes. We'll send you more info soon.
The brochure will download automatically when ready.
Brochure downloaded successfully
Your brochure has been saved. You're now connected with Perry Homes, and we've emailed you a copy for your convenience.
The brochure will download automatically when ready.
Way to Go!
You’re connected with Perry Homes.
The best way to find out more is to visit the community yourself!