3798W Plan
Ready to build
6502 Seville Street, Manvel TX 77578
Home by Perry Homes
at Valencia 70'

Last updated 2 days ago
The Price Range displayed reflects the base price of the homes built in this community.
You get to select from the many different types of homes built by this Builder and personalize your New Home with options and upgrades.
5 BR
4.5 BA
3 GR
3,798 SQ FT

Exterior 1/6
Special offers
Explore the latest promotions at Valencia 70'. Contact Perry Homes to learn more!
New Year! New Home!
Overview
1 Half Bathroom
2 Stories
Primary Bed Downstairs
Single Family
3798W Plan Info
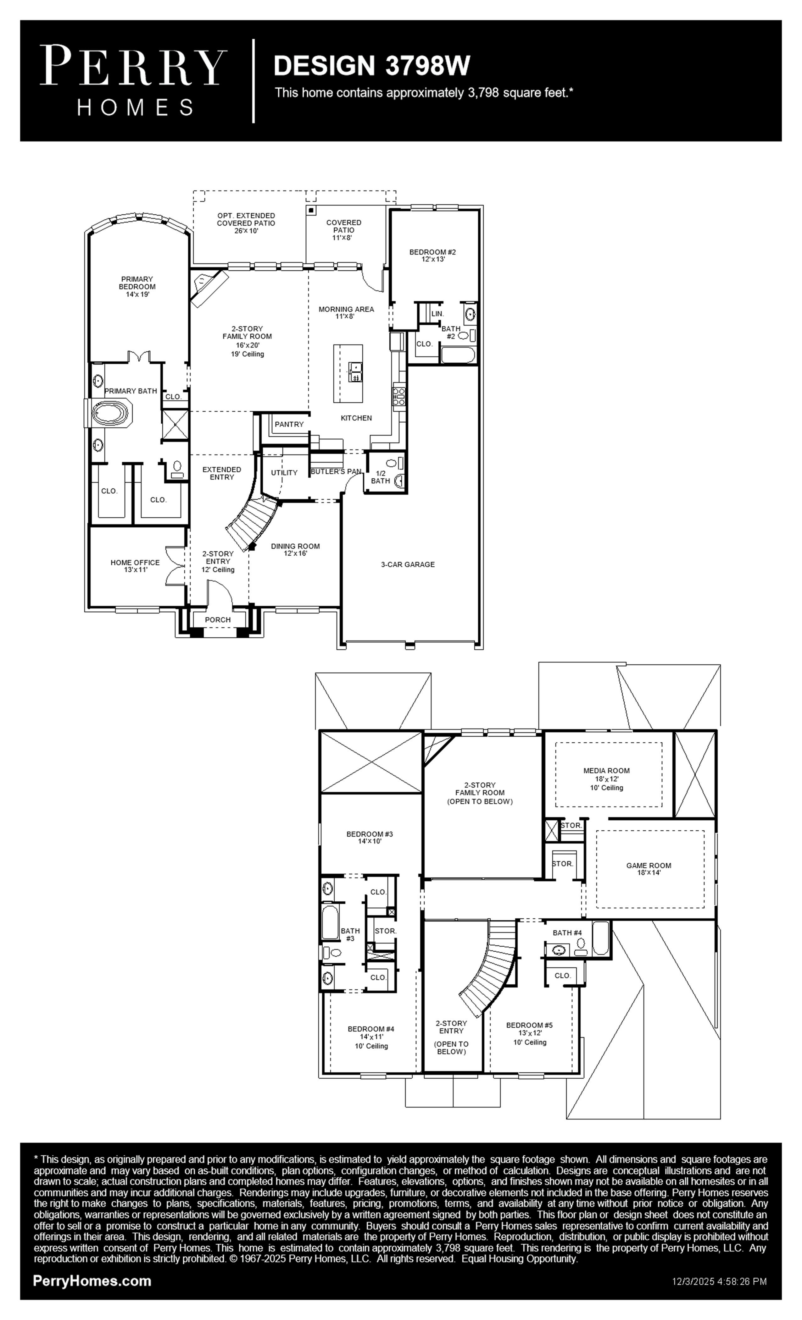
Home office and formal dining room frame two-story entry with curved staircase. Two-story family room with fireplace and wall of windows opens to kitchen and morning area. Kitchen features corner walk-in pantry, butler's pantry and island with built-in seating space. First-floor primary suite with curved wall of windows. Dual vanities, garden tub, separate glass-enclosed shower and two walk-in closets in primary bath. First-floor guest suite. Upstairs highlights a media room, game room, computer area and Hollywood bath. Covered backyard patio. Mud room off three-car garage. Representative Images. Features and specifications may vary by community.
Floor plan center
View floor plan details for this property.
- Floor Plans
- Exterior Images
- Interior Images
- Other Media
Neighborhood
Community location & sales center
6502 Seville Street
Manvel, TX 77578
6502 Seville Street
Manvel, TX 77578
888-579-3711
From Highway 288 South, Exit Highway 6. Turn left at the intersection of Highway 288 and Highway 6 onto Pollard Blvd. Continue straight for about a half mile through Bluewater Lakes. Turn right on Hillside Bloom Road. The Sales Center will be on the right on Seville Street.
Nearby schools
Alvin Independent School District
Manvel Junior High School
Middle school. Grades 6 to 8.
Public school
Teacher - student ratio: 1:16
Students enrolled: 934
281-245-3700
7302 Mccoy Rd, Manvel, TX, 77578
Manvel High School
High school. Grades 9 to 12.
Public school
Teacher - student ratio: 1:15
Students enrolled: 2607
281-245-2232
19601 Highway 6, Manvel, TX, 77578
Actual schools may vary. We recommend verifying with the local school district, the school assignment and enrollment process.
Amenities
Home details
Ready to build
Build the home of your dreams with the 3798W plan by selecting your favorite options. For the best selection, pick your lot in Valencia 70' today!
Community & neighborhood
Social activities
- Club House
Health and fitness
- Pool
- Trails
Community services & perks
- Playground
- Park
Neighborhood amenities
Costco Wholesale
4.49 miles away
3500 Business Center Dr
Randalls
4.99 miles away
10228 Broadway St
Pearland African Depot & Grocery
5.03 miles away
9607 Broadway St
Gene's Country Store
5.04 miles away
17603 Pearland Sites Rd
Swadeshi Groceries
5.10 miles away
10223 Broadway St
Cinnaholic
4.60 miles away
3422 Business Center Dr
Rollie's Frozen Custard
4.62 miles away
3695 Kirby Dr
Weekley's
0.83 mile away
7203 McCoy Rd
Brisa's Tex Mex Restaurant
0.95 mile away
19303 Highway 6
Wingstop
0.95 mile away
19431 Highway 6
Honore's Cajun Cafe
0.98 mile away
19430 Highway 6
Manvel Seafood
1.02 miles away
19015 Highway 6
Dear Donut Man
0.91 mile away
19433 Highway 6
Shipley Do-nuts
1.04 miles away
1875 County RD
Starbucks
1.04 miles away
7326 Bluewater St
Billy
1.08 miles away
19931 Highway 6
Elevate Nutrition
1.08 miles away
19931 Highway 6
Patsy's Boutique & Antiques
1.49 miles away
20535 Highway 6
Labels Boutique
2.82 miles away
4303 Candlewood Ln
Twelve Complete Fitness LLC
3.82 miles away
2623 Katie Harbor Dr
Red Wing Shoe Store
4.32 miles away
3609 Business Center Dr
Costco Wholesale
4.49 miles away
3500 Business Center Dr
Twisted Sisters
1.04 miles away
5302 Masters Rd
Hey Bobs
4.99 miles away
5302 N Masters
Chili's
5.02 miles away
3030 Silverlake Village Dr
Cleo Lounge
5.06 miles away
9603 Broadway St
Center Court Pizza & Brew
5.06 miles away
9721 Broadway St
Please note this information may vary. If you come across anything inaccurate, please contact us.
Perry Homes is the largest woman-owned homebuilder and has established a Tradition of Excellence in homebuilding over the past 57 years. Family-owned and operated since its inception in 1967, Perry Homes is committed to building quality, superior homes while providing first-class customer service before, during, and after construction. The homebuilder has earned a phenomenal reputation by evolving with the wants and needs of its 60,000+ customers, all while securing a 95% satisfaction rating*. With more than 450 new home designs, buyers will find a robust selection of quality standard features and design options in every home that radiate elegance and sophistication, including soaring ceilings, gorgeous walls of windows, open concepts, and flexible spaces to fit any lifestyle. Perry Homes offers a variety of timeless and modern architectural concepts in over 100 of the most sought-after communities throughout Austin, Dallas/Fort Worth, Houston, San Antonio, and now Florida. In Florida, Perry Homes is building in communities across the state, including Tampa, Sarasota, Port St. Lucie, and Jacksonville. Perry Homes | Britton Homes is led by Executive Chair Kathy Perry Britton and Chief Executive Officer Todd Chachere. *Since 2016, over 95% of homeowners who completed our New Homeowner Survey have rated their overall satisfaction as “Satisfied” or “Very Satisfied.” Surveys are sent to the primary customer contact for every home between 30 and 60 days after closing.
Take the next steps toward your new home
3798W Plan by Perry Homes
saved to favorites!
To see all the homes you’ve saved, visit the My Favorites section of your account.
Discover More Great Communities
Select additional listings for more information
We're preparing your brochure
You're now connected with Perry Homes. We'll send you more info soon.
The brochure will download automatically when ready.
Brochure downloaded successfully
Your brochure has been saved. You're now connected with Perry Homes, and we've emailed you a copy for your convenience.
The brochure will download automatically when ready.
Way to Go!
You’re connected with Perry Homes.
The best way to find out more is to visit the community yourself!