Bristol Valley 1 Acre
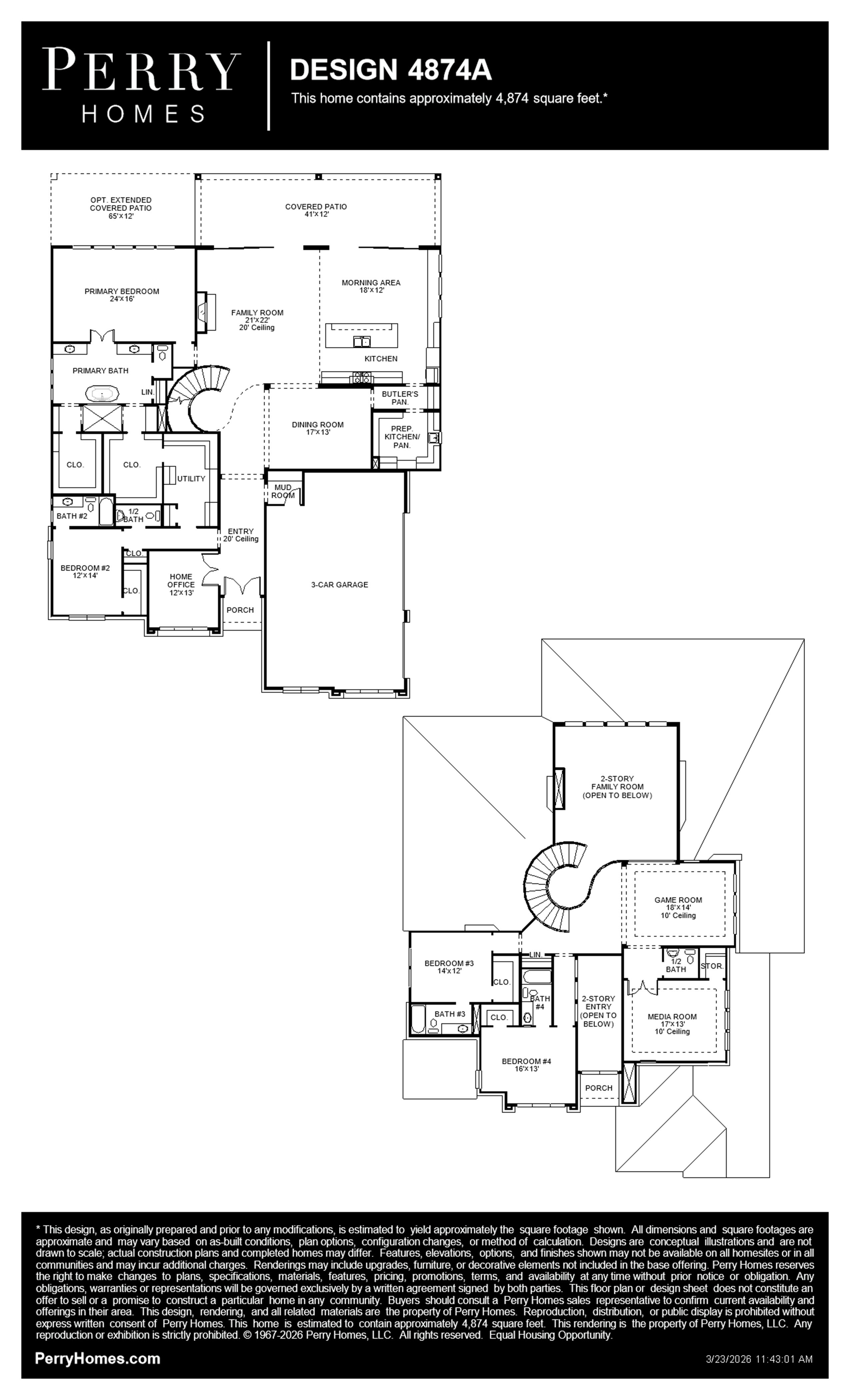
4874A
Please Call for an Appointment, Heath, TX, 75032
by Perry Homes
From $1,342,900 This is the starting price for this plan and is subject to change.
- 4 Beds
- 4.5 Baths
- 3 Car garage
- 4,874 Sq Ft
Overview
Floor plan features
- 2 Half Bathrooms
- 2 Stories
- Primary Bed Downstairs
- Single Family
Floor plan description
This floorplan opens with a grand 20-foot ceiling entryway that leads past a private home office with French doors. It features a formal dining room, a morning area, and a spacious two-story family room with a fireplace and sliding glass doors that provide full access to a covered backyard patio. The home also offers an open kitchen with a butler’s pantry and a prep kitchen and. The primary suite features a wall of windows and includes a luxurious bathroom with a freestanding tub, double sinks, a glass-enclosed shower, and two walk-in closets. Up the curved stairs, a game room overlooks the two-story family room below and connects to a media room. This level also includes two secondary bedrooms with two full bathrooms, plus an additional half bath. This home plan includes a mudroom off the...
Explore this home
Explore custom options for this floor plan.
Community highlights
Community amenities
Trails
Neighborhood
Community location & sales center
Please Call for an Appointment Heath, TX 75032
Please Call for an Appointment Heath, TX 75032
888-787-6455
Please call for an appointment and directions.
Amenities
Community & neighborhood
Health and fitness
- Trails
Builder details
Perry Homes

Perry Homes is the largest woman-owned homebuilder and has established a Tradition of Excellence in homebuilding over the past 57 years. Family-owned and operated since its inception in 1967, Perry Homes is committed to building quality, superior homes while providing first-class customer service before, during, and after construction. The homebuilder has earned a phenomenal reputation by evolving with the wants and needs of its 60,000+ customers, all while securing a 95% satisfaction rating*. With more than 450 new home designs, buyers will find a robust selection of quality standard features and design options in every home that radiate elegance and sophistication, including soaring ceilings, gorgeous walls of windows, open concepts, and flexible spaces to fit any lifestyle. Perry Homes offers a variety of timeless and modern architectural concepts in over 100 of the most sought-after communities throughout Austin, Dallas/Fort Worth, Houston, San Antonio, and now Florida. In Florida, Perry Homes is building in communities across the state, including Tampa, Sarasota, Port St. Lucie, and Jacksonville. Perry Homes | Britton Homes is led by Executive Chair Kathy Perry Britton and Chief Executive Officer Todd Chachere. *Since 2016, over 95% of homeowners who completed our New Homeowner Survey have rated their overall satisfaction as “Satisfied” or “Very Satisfied.” Surveys are sent to the primary customer contact for every home between 30 and 60 days after closing.
Take the next steps toward your new home
This listing's information was verified with the builder for accuracy 2 days ago
4874A Plan by Perry Homes
saved to favorites!
To see all the homes you’ve saved, visit the My Favorites section of your account.
Discover More Great Communities
Select additional listings for more information
We're preparing your brochure
You're now connected with Perry Homes. We'll send you more info soon.
The brochure will download automatically when ready.
Brochure downloaded successfully
Your brochure has been saved. You're now connected with Perry Homes, and we've emailed you a copy for your convenience.
The brochure will download automatically when ready.
Way to Go!
You’re connected with Perry Homes.
The best way to find out more is to visit the community yourself!