5751F Plan
Ready to build
16915 Post Stable Place, Lakewood Ranch FL 34211
Home by Perry Homes

Last updated 2 days ago
The Price Range displayed reflects the base price of the homes built in this community.
You get to select from the many different types of homes built by this Builder and personalize your New Home with options and upgrades.
5 BR
6.5 BA
4 GR
5,751 SQ FT

Exterior 1/4
Special offers
Explore the latest promotions at Star Farms At Lakewood Ranch 90'. Contact Perry Homes to learn more!
New Year! New Home!
Overview
2 Half Bathrooms
2 Stories
Primary Bed Downstairs
Single Family
5751F Plan Info
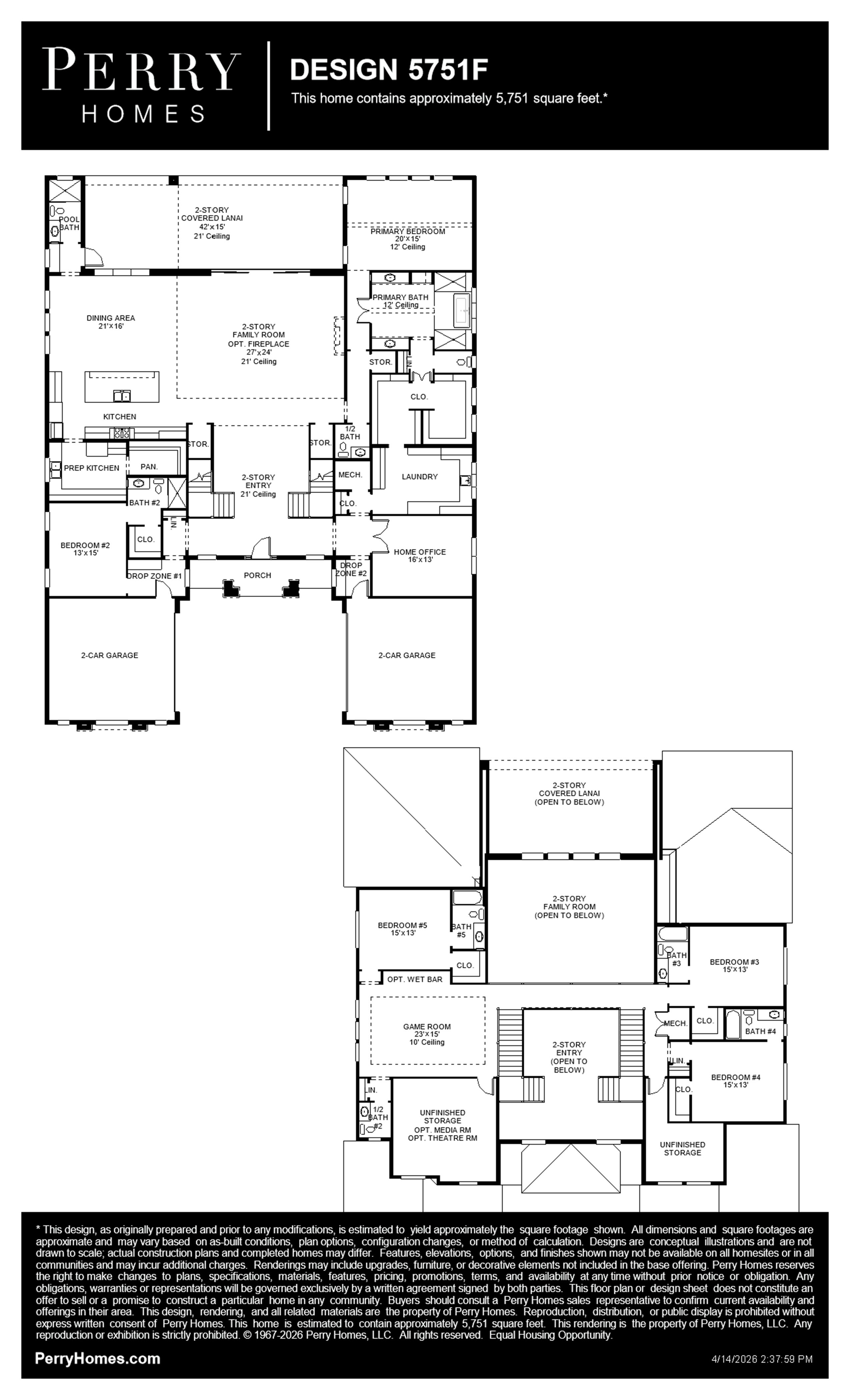
This home plan opens to a two-story entryway with 21-foot ceilings that flows into a spacious family room with a sliding glass door. The floor plan features a dining area that connects to the kitchen, which includes a prep kitchen and walk-in pantry for added functionality. A private primary bedroom is located on the first floor and offers a primary bath with dual vanities, two glass-enclosed showers, a freestanding tub and generous walk-in closets. Also, downstairs there is a home office with French doors, a guest suite featuring a private bathroom, and one-half bath. Upstairs, a game room overlooks the two-story family room below, and three secondary bedrooms each include their own full bathroom, along with an additional half bath and ample storage space. The covered lanai showcases a two-story ceiling and provides seamless indoor-outdoor living. This home plan includes a four-car split garage. Representative Images. Features and specifications may vary by community.
Floor plan center
View floor plan details for this property.
- Floor Plans
- Exterior Images
- Interior Images
- Other Media
Explore custom options for this floor plan.
- Choose Option
- Include Features
Neighborhood
Community location & sales center
16915 Post Stable Place
Lakewood Ranch, FL 34211
16915 Post Stable Place
Lakewood Ranch, FL 34211
888-420-4788
From I-75, take Exit 220 for FL-64 East toward Lakewood Ranch. Continue on FL-64 East, then turn right onto Post Stable Place and follow it straight to 16915 Post Stable Place, Lakewood Ranch, FL.
Schools near Star Farms At Lakewood Ranch 90'
- Manatee County Public Schools
Actual schools may vary. Contact the builder for more information.
Amenities
Home details
Ready to build
Build the home of your dreams with the 5751F plan by selecting your favorite options. For the best selection, pick your lot in Star Farms At Lakewood Ranch 90' today!
Community & neighborhood
Local points of interest
- Views
- Lake
- Pond
- Beach
Social activities
- Club House
Health and fitness
- Tennis
- Pool
- Trails
- Volleyball
- Basketball
Community services & perks
- Playground
- Community Center
Perry Homes is the largest woman-owned homebuilder and has established a Tradition of Excellence in homebuilding over the past 57 years. Family-owned and operated since its inception in 1967, Perry Homes is committed to building quality, superior homes while providing first-class customer service before, during, and after construction. The homebuilder has earned a phenomenal reputation by evolving with the wants and needs of its 60,000+ customers, all while securing a 95% satisfaction rating*. With more than 450 new home designs, buyers will find a robust selection of quality standard features and design options in every home that radiate elegance and sophistication, including soaring ceilings, gorgeous walls of windows, open concepts, and flexible spaces to fit any lifestyle. Perry Homes offers a variety of timeless and modern architectural concepts in over 100 of the most sought-after communities throughout Austin, Dallas/Fort Worth, Houston, San Antonio, and now Florida. In Florida, Perry Homes is building in communities across the state, including Tampa, Sarasota, Port St. Lucie, and Jacksonville. Perry Homes | Britton Homes is led by Executive Chair Kathy Perry Britton and Chief Executive Officer Todd Chachere. *Since 2016, over 95% of homeowners who completed our New Homeowner Survey have rated their overall satisfaction as “Satisfied” or “Very Satisfied.” Surveys are sent to the primary customer contact for every home between 30 and 60 days after closing.
Take the next steps toward your new home
5751F Plan by Perry Homes
saved to favorites!
To see all the homes you’ve saved, visit the My Favorites section of your account.
Discover More Great Communities
Select additional listings for more information
We're preparing your brochure
You're now connected with Perry Homes. We'll send you more info soon.
The brochure will download automatically when ready.
Brochure downloaded successfully
Your brochure has been saved. You're now connected with Perry Homes, and we've emailed you a copy for your convenience.
The brochure will download automatically when ready.
Way to Go!
You’re connected with Perry Homes.
The best way to find out more is to visit the community yourself!