Alder Plan
Ready to build
1712 E Verdin Way, Phoenix AZ 85085
Home by Taylor Morrison

Last updated 1 day ago
The Price Range displayed reflects the base price of the homes built in this community.
You get to select from the many different types of homes built by this Builder and personalize your New Home with options and upgrades.
3 BR
3.5 BA
3 GR
3,527 SQ FT

Exterior F - Contemporary Farmhouse 1/6
Special offers
Explore the latest promotions at Verdin Capstone Collection. Contact Taylor Morrison to learn more!
Now selling! Schedule your appointment today
Overview
1 Half Bathroom
1 Story
3 Bathrooms
3 Bedrooms
3 Car Garage
3527 Sq Ft
Dining Room
Game Room
Guest Room
Primary Bed Downstairs
Single Family
Alder Plan Info
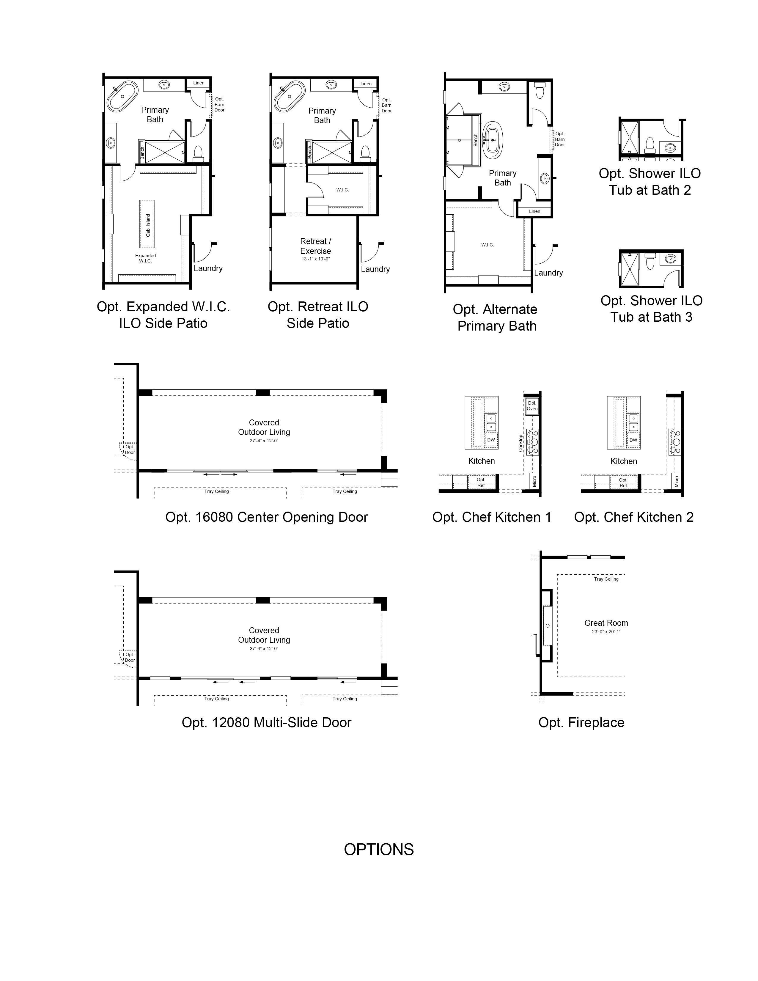
Step into spacious! The 1-story Alder floor plan features 3 bedrooms (two-bedroom suites and the primary bedroom), 3.5 bathrooms, a 3-car garage and 3,527 square feet of beautiful, open-concept living space. Head through your covered porch and into the foyer to find an array of convenient spaces, from a customizable flex room to a powder room, laundry room and entry to your 3-car garage. Further in, discover open-concept living at its finest: a spacious great room flows into a dining area, kitchen with an island, prep kitchen, BBQ patio and large covered outdoor living space, absolutely perfect for everyday moments to lively gatherings. Nestled away on one side of the home, you’ll love two bedroom suites, each with bathrooms, walk-in closets and access to a lounge and side patio. The luxurious primary suite also lives here, complete with a walk-in closet and serene spa-inspired primary bathroom. Plus, you have options! Retreat in place of a side patio Center opening door or multi-slide door to covered outdoor living Chef’s kitchen Fireplace in great room And more!
Floor plan center
View floor plan details for this property.
- Floor Plans
- Exterior Images
- Interior Images
- Other Media
Explore custom options for this floor plan.
- Choose Option
- Include Features
Neighborhood
Community location & sales center
1712 E Verdin Way
Phoenix, AZ 85085
1712 E Verdin Way
Phoenix, AZ 85085
888-989-6859
North Cave Creek Road East Sonoran Desert Drive
Schools near Verdin Capstone Collection
- Cave Creek Unified District
- Deer Valley Unified School District
Actual schools may vary. Contact the builder for more information.
Amenities
Home details
Ready to build
Build the home of your dreams with the Alder plan by selecting your favorite options. For the best selection, pick your lot in Verdin Capstone Collection today!
Community & neighborhood
Local points of interest
- Views
Social activities
- Club House
Health and fitness
- Pool
- Trails
Community services & perks
- HOA Fees: $250/month
- Playground
- Park
From start to finish, we create a seamless and inspired homebuilding experience for our homebuyers because we understand that your home is the most important home we can build. At Taylor Morrison, we work to earn your trust by providing the resources, support and deep industry experience to inspire you, and help you make educated decisions about your most important purchase. It’s this trust that earned Taylor Morrison the recognition of being America’s Most Trusted® Home Builder for nine years in a row. We approach each home with a discerning eye, ensuring we select locations and amenities that fit for our homebuyers’ lifestyles. We want your home to be a place where you create a lifetime of lasting memories. With more than 100 years of experience building a lifetime of memories for our homebuyers, you can rest assured we’ll build the right home for you.
Take the next steps toward your new home
Alder Plan by Taylor Morrison
saved to favorites!
To see all the homes you’ve saved, visit the My Favorites section of your account.
Discover More Great Communities
Select additional listings for more information
We're preparing your brochure
You're now connected with Taylor Morrison. We'll send you more info soon.
The brochure will download automatically when ready.
Brochure downloaded successfully
Your brochure has been saved. You're now connected with Taylor Morrison, and we've emailed you a copy for your convenience.
The brochure will download automatically when ready.
Way to Go!
You’re connected with Taylor Morrison.
The best way to find out more is to visit the community yourself!