Meadows at Hyde Park - Hyde Park
Auburn
600 South 250 East, Hyde Park, UT, 84341
by Visionary Homes
From $605,990 This is the starting price for this plan and is subject to change.
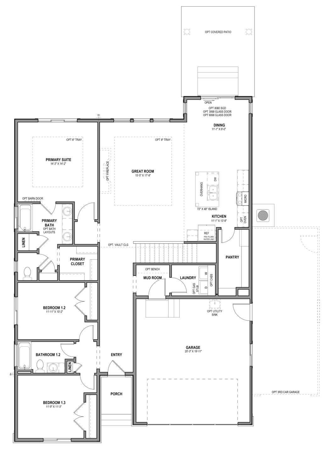
- 3 Beds
- 2 Baths
- 2 Car garage
- 3,589 Sq Ft
Overview
Floor plan features
- 1 Story
- Primary Bed Downstairs
- Single Family
Floor plan description
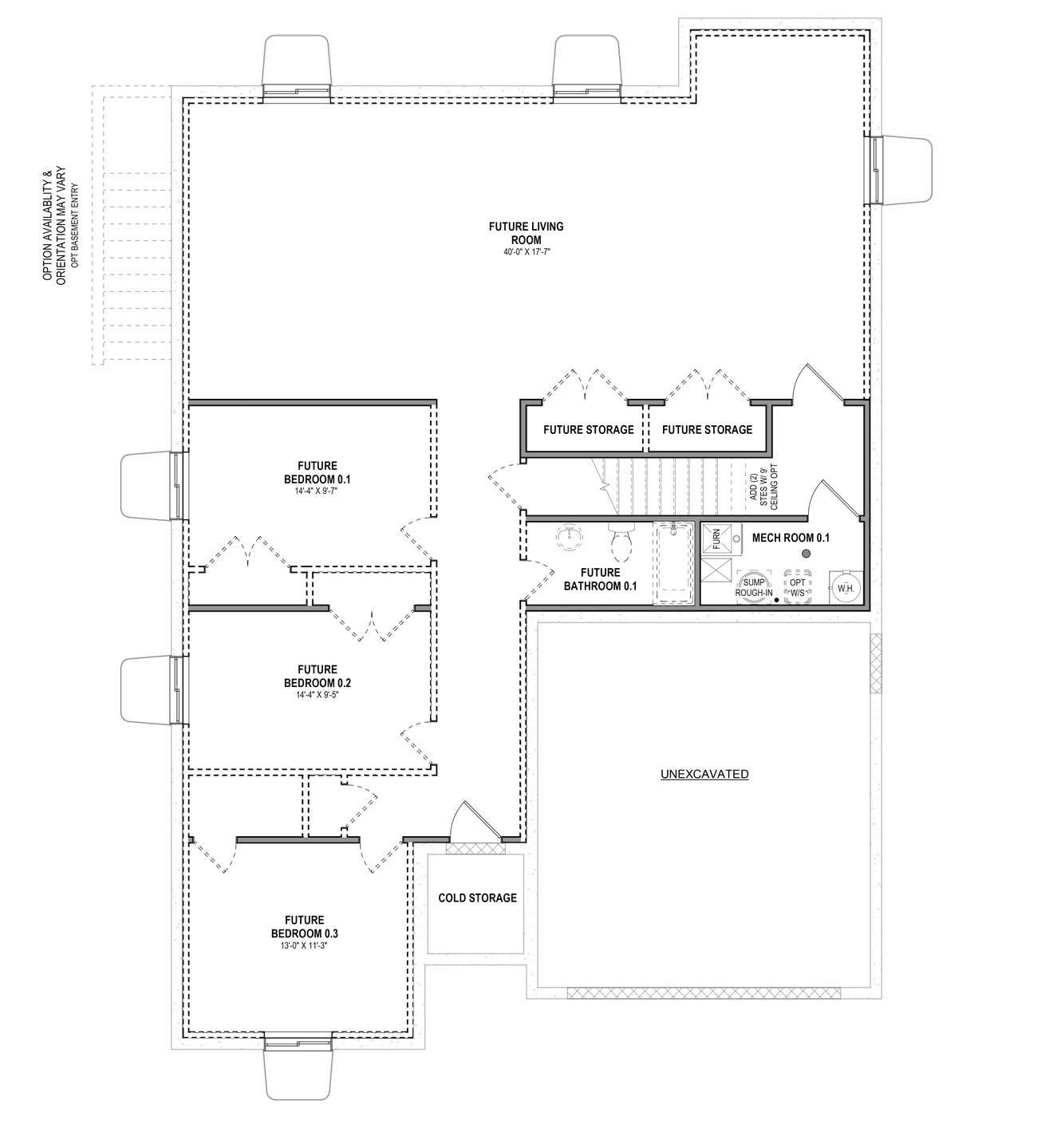
The Auburn floor plan creates the perfect living space for your family by situating the bedrooms right off the entry and main living space. The primary bedroom next to the great room includes a primary bathroom with a walk-in closet to fit your needs. A mudroom off the garage provides room for all your go-to necessities from keys to schoolbooks and shoes, with the laundry nearby. In the kitchen, you’ll find a large walk-in pantry and an island with a sink for the optimal cooking space. You and your family will enjoy maximum convenience and comfort with the 3 bed and 2 bath Auburn floor plan! Additionally, enjoy the unfinished basement and its potential for more rooms.
Explore this home
Explore custom options for this floor plan.
Special offers
Explore the latest promotions at Meadows at Hyde Park - Hyde Park. to learn more!
Double the Refund Event!
Turn your tax refund or personal savings into home savings. We’ll match it up to $10,000! Available on all specs and new builds through April 30th. This offer runs through 04/30/2026.
Community highlights
About Meadows at Hyde Park - Hyde Park
Welcome to Meadows at Hyde Park – your future neighborhood in Hyde Park, UT! Nestled in scenic Cache Valley, Meadows at Hyde Park offers an inviting community crafted for families and anyone who loves space, beauty, and everyday convenience. This thoughtfully planned single-family home neighborhood features modern homes designed to fit your lifestyle — perfect for growing families, first-time buyers, or anyone dreaming of comfortable, connected living in a charming small-town setting. LIFE AT MEADOWS AT HYDE PARK Meadows at Hyde Park brings quality, new construction to one of northern Utah’s most beautiful locations — where panoramic mountain views, open spaces, and a strong sense of community await. Situated in Hyde Park, residents enjoy access to some of the top-rated schools in the Cach...
Neighborhood
Community location & sales center
600 South 250 East Hyde Park, UT 84341
600 South 250 East Hyde Park, UT 84341
888-960-8559
Starting on Main Street in Logan, UTTake N 100 E to US-91 N Main StreetTurn right onto US-91 N Main StreetContinue on E 2500 N. Take N 800 E to Park Meadow Dr in Hyde ParkArrive at Meadows at Hyde Park
Nearby schools
Cache District
Green Canyon High School
Elementary-Middle-High school. Grades PK to 12.
Public school
Teacher - student ratio: 1:25
Students enrolled: 1690
435-792-9300
2960 N. Wolf Pack Way, North Logan, UT, 84341
Alpine District
Cedar Ridge Elementary School
Elementary-Middle school. Grades KG to 6.
Public school
Teacher - student ratio: 1:24
Students enrolled: 682
801-610-8103
4501 W Cedar Hills Dr, Cedar Hills, UT, 84062
GreatSchools ratings are provided by GreatSchools.org and are for reference only. Ratings may not be available for all schools. Please verify school assignments and details with the local school district.
Amenities
Community & neighborhood
Builder details
Visionary Homes

Visionary Homes began its journey in 2004 when Jeff Jackson and Justin Cooper merged their respective custom home building companies in Logan, Utah. Recognizing a need for high-quality affordable homes in the market, they formed Visionary Homes. "We are both homegrown," Justin said. "We started small, building one or two homes a year, and have grown it to where we are now."
In 2022, Visionary proudly became the Exclusive Homebuilder of the Utah Jazz. As a locally rooted company, we are honored to hold this title and use the partnership to continue to grow the affordable housing market both within Utah and beyond. With a diverse portfolio, Visionary homes offers a variety of products across many communities throughout Utah, including single-family homes, townhomes, and condos. Our homes are thoughtfully designed with the modern family in mind, catering to first-time buyers, those seeking upgrades, or investors in Real Estate.
At Visionary Homes, our passion is to edify all within our circle of influence. This means that we enhance and improve the lives of our team members, our customers, our industry partners and our communities through every step of the home-building and home-buying process.
We do this by creating thoughtfully designed communities and homes that provide a place for living, a place to experience life's moments, a place to call home. In the words of our President, Barrett Nelson, "At Visionary Homes, our expertise is creating and building a place where memories can be made and moments can happen. Simply put, our homes are built for living."
Take the next steps toward your new home
This listing's information was verified with the builder for accuracy 2 days ago
Auburn Plan by Visionary Homes
saved to favorites!
To see all the homes you’ve saved, visit the My Favorites section of your account.
Discover More Great Communities
Select additional listings for more information
We're preparing your brochure
You're now connected with Visionary Homes. We'll send you more info soon.
The brochure will download automatically when ready.
Brochure downloaded successfully
Your brochure has been saved. You're now connected with Visionary Homes, and we've emailed you a copy for your convenience.
The brochure will download automatically when ready.
Way to Go!
You’re connected with Visionary Homes.
The best way to find out more is to visit the community yourself!