Autumn Plan
Ready to build
4952 Leesa Ann Lane, Hermitage TN 37076
Home by Meritage Homes
Last updated 2 days ago
The Price Range displayed reflects the base price of the homes built in this community.
You get to select from the many different types of homes built by this Builder and personalize your New Home with options and upgrades.
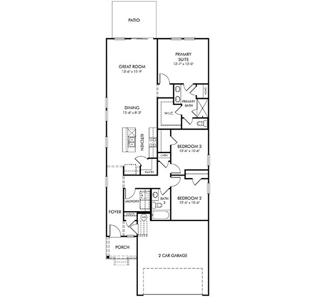
3 BR
2 BA
2 GR
1,420 SQ FT

Plan Diagram 1/1
Overview
1 Story
Green Construction
Primary Bed Downstairs
Single Family
Autumn Plan Info
Fire up the grill and enjoy evenings outside on the patio. The amenity-rich single-story layout features spacious bedrooms and an open-concept entertaining area. In the primary suite, dual sinks and a large walk-in closet allow you to spread out.
Floor plan center
View floor plan details for this property.
- Floor Plans
- Exterior Images
- Interior Images
- Other Media
Neighborhood
Community location & sales center
4952 Leesa Ann Lane
Hermitage, TN 37076
4952 Leesa Ann Lane
Hermitage, TN 37076
888-894-9624
From Nashville: take I-40 E/I-65 S. Follow I-40 E and take exit 221A from I-40 E. Continue on TN-265/TN-45. Take Chandler Road to Leesa Ann Lane. Crestview will be on the left.
Nearby schools
Metro Nashville Public Schools
Elementary school. Grades PK to 5.
- Public school
- Teacher - student ratio: 1:14
- Students enrolled: 529
441 Tyler Dr, Hermitage, TN, 37076
615-885-8944
Middle school. Grades 6 to 8.
- Public school
- Teacher - student ratio: 1:13
- Students enrolled: 312
431 Tyler Dr, Hermitage, TN, 37076
615-885-8827
High school. Grades 9 to 12.
- Public school
- Teacher - student ratio: 1:18
- Students enrolled: 2098
3150 Mcgavock Pike, Nashville, TN, 37214
615-885-8850
Actual schools may vary. We recommend verifying with the local school district, the school assignment and enrollment process.
Amenities
Home details
Green program
Setting the standard for Energy Efficiency
Ready to build
Build the home of your dreams with the Autumn plan by selecting your favorite options. For the best selection, pick your lot in Crestview - Ridge Series today!
Community & neighborhood
Local points of interest
- Famous Dave's Bar-B-Que
- Hermitage Golf Course
- Opry Mills
- Providence Marketplace
- Gondola House Pizzeria
- Stones River Bend Park
- Hermitage Steak House
- Percy Priest Lake
- SoundWaves at Gaylord Opryland
- Darfons Restaurant and Bar
Community services & perks
- HOA fees: Unknown, please contact the builder
Neighborhood amenities
ALDI
0.67 mile away
4751 Lebanon Pike
Publix
0.82 mile away
4670 Lebanon Pike
Walmart Supercenter
1.14 miles away
4424 Lebanon Pike
Kroger
1.26 miles away
4400 Lebanon Pike
Kroger
2.05 miles away
5544 Old Hickory Blvd
Healthfully Yours Nutrition
0.65 mile away
4960 Lebanon Pike
GNC
0.73 mile away
4684 Lebanon Pike
Walmart Bakery
1.14 miles away
4424 Lebanon Pike
Kroger Bakery
1.26 miles away
4400 Lebanon Pike
Kroger Bakery
2.05 miles away
5544 Old Hickory Blvd
Popeyes
0.68 mile away
4815 Lebanon Pike
Bojangles'
0.70 mile away
4774 Lebanon Pike
Double E Bar & Grill
0.70 mile away
4957 Lebanon Pike
Sir Pizza of Hermitage
0.70 mile away
4969 Lebanon Pike
Jb's Pour House
0.71 mile away
4770 Lebanon Pike
Starbucks
0.98 mile away
4495 Lebanon Pike
Starbucks
2.02 miles away
5008 Old Hickory Blvd
Dunkin'
2.11 miles away
5205 Old Hickory Blvd
Tropical Smoothie Cafe
2.12 miles away
4005 Lebanon Pike
Dunkin'
2.50 miles away
511 Hadley Village Blvd
Miss Bridal & Formal Wear
0.74 mile away
4979 Lebanon Pike
Ross Dress For Less
0.97 mile away
4644 Lebanon Pike
Walmart Supercenter
1.14 miles away
4424 Lebanon Pike
Simple Commotion LLC
1.40 miles away
101 Mill Springs Ct
Loads of Clothes
1.82 miles away
4209 Lebanon Pike
Double E Bar & Grill
0.70 mile away
4957 Lebanon Pike
Sam's Sports Grill
1.78 miles away
2001 Lakeshore Dr
The Rusty Nail Bar
1.95 miles away
4054 Andrew Jackson Pkwy
Hooters
1.98 miles away
4119 Lebanon Pike
O'Charley's Restaurant + Bar
2.11 miles away
5500 Old Hickory Blvd
Please note this information may vary. If you come across anything inaccurate, please contact us.
Open the door to Life. Built. Better.® with an experienced homebuilder known for quality construction, designer-curated interiors, award-winning energy efficiency and a simplified buying process. Since 1985, Meritage Homes® has delivered more than 180,000 homes across Arizona, California, Colorado, Utah, Texas, Florida, Georgia, North Carolina, South Carolina and Tennessee. Take the next step toward your dream home and discover the Meritage difference.
Take the next steps toward your new home
Autumn Plan by Meritage Homes
saved to favorites!
To see all the homes you’ve saved, visit the My Favorites section of your account.
Discover More Great Communities
Select additional listings for more information
We're preparing your brochure
You're now connected with Meritage Homes. We'll send you more info soon.
The brochure will download automatically when ready.
Brochure downloaded successfully
Your brochure has been saved. You're now connected with Meritage Homes, and we've emailed you a copy for your convenience.
The brochure will download automatically when ready.
Way to Go!
You’re connected with Meritage Homes.
The best way to find out more is to visit the community yourself!