Aspen Meadows-4
Boxelder
7979 Grey Bark Way, Colorado Springs, CO, 80908
by Aspen View Homes
From $564,995 This is the starting price for this plan and is subject to change.
- 5 Beds
- 3.5 Baths
- 2 Car garage
- 3,461 Sq Ft
Overview
Floor plan features
- 1 Half Bathroom
- 2 Stories
- Single Family
Floor plan description
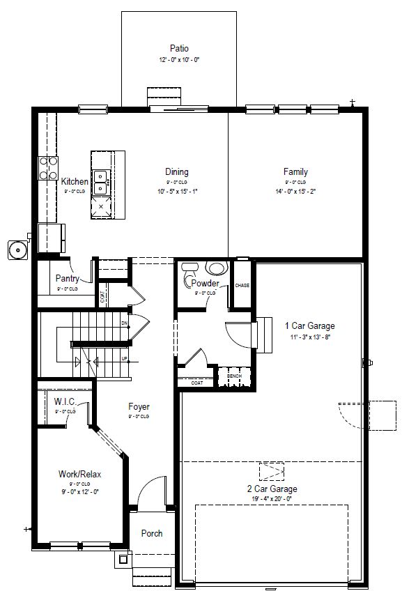
The Boxelder is our largest 2-story home at Aspen Ranch! This amazing home has approximately 2,451 square feet, 3 bedrooms, and 2.5 bathroom. As you enter, you are greeted by a home office, large mud room off of your tandem garage, powder bathroom, and finally your large kitchen, dining room, and family room. Upstairs you will find your 2 secondary bedrooms with walk-in closets, their shared bathroom, laundry room, and your owner’s suite with a 4-piece bathroom and spacious walk-in closet. Best of all, this home has an oversized loft that you will need to see to believe. Call us today to learn more! Prices, plans, and terms are effective on the date of publication and subject to change without notice. Depictions of homes or other features are artist conceptions. Hardscape, landscape, and ...
Explore this home
Explore custom options for this floor plan.
Neighborhood
Community location & sales center
7979 Grey Bark Way Colorado Springs, CO 80908
7979 Grey Bark Way Colorado Springs, CO 80908
888-989-7112
Amenities
Community & neighborhood
Builder details
Aspen View Homes

For Over 25 Years, View Homes has been crafting quality homes in Texas, New Mexico and Colorado. We have been recognized by many organizations for our quality homes, customer experience and dedication to our community. While we are pleased with recognition, we are most proud of the solid foundation and values our company is based on. Our goals go beyond numbers and metrics. We are dedicated to providing the best customer journey and home building experience through compassion, commitment to excellence, honesty and collaboration. We are committed to building you a place to call home, a place to create memories with family and friends, which will forever be the best view. View Homes – Building Life’s Greatest View
Take the next steps toward your new home
This listing's information was verified with the builder for accuracy 2 days ago
Boxelder Plan by Aspen View Homes
saved to favorites!
To see all the homes you’ve saved, visit the My Favorites section of your account.
Discover More Great Communities
Select additional listings for more information
We're preparing your brochure
You're now connected with Aspen View Homes. We'll send you more info soon.
The brochure will download automatically when ready.
Brochure downloaded successfully
Your brochure has been saved. You're now connected with Aspen View Homes, and we've emailed you a copy for your convenience.
The brochure will download automatically when ready.
Way to Go!
You’re connected with Aspen View Homes.
The best way to find out more is to visit the community yourself!