Brentwood Plan
Ready to build
100 Matilda Street, Spartanburg SC 29306
Home by Meritage Homes
at Holland Park
Last updated 2 days ago
The Price Range displayed reflects the base price of the homes built in this community.
You get to select from the many different types of homes built by this Builder and personalize your New Home with options and upgrades.
4 BR
2.5 BA
2 GR
2,345 SQ FT

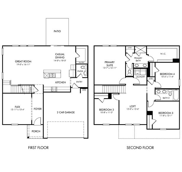
Plan Diagram 1/1
Special offers
Explore the latest promotions at Holland Park. Contact Meritage Homes to learn more!
The Time is Right
Overview
1 Half Bathroom
2 Stories
Green Construction
Primary Bed Upstairs
Single Family
Brentwood Plan Info
The Brentwood offers 4 bedrooms, 2.5 bathrooms and a 2-car garage. Send the kids to play in the spacious loft while entertaining in the open kitchen. First-floor flex space makes a useful work area, while the primary suite is ideal for relaxing.
Floor plan center
View floor plan details for this property.
- Floor Plans
- Exterior Images
- Interior Images
- Other Media
Neighborhood
Community location & sales center
100 Matilda Street
Spartanburg, SC 29306
100 Matilda Street
Spartanburg, SC 29306
888-205-3634
From I-85 N, take exit 69 to continue on I-85 Business/Spartanburg loop. Take exit 2A to merge onto I-26 E toward Columbia. Use the right 2 lanes to take exit 22 for SC-296 E toward Spartanburg. Turn right onto Southport Rd. Turn right onto Canaan Church Rd. Take a slight left onto State Rd S-42-1624/Summerland Dr. Turn left onto Old Canaan Rd. The community will be on the right on Matilda St.
Schools near Holland Park
- Spartanburg 07 School District
Actual schools may vary. Contact the builder for more information.
Amenities
Home details
Green program
Setting the standard for Energy Efficiency
Ready to build
Build the home of your dreams with the Brentwood plan by selecting your favorite options. For the best selection, pick your lot in Holland Park today!
Community & neighborhood
Local points of interest
- Downtown Spartanburg
- FR8yard
- Wofford College
- Downtown Spartanburg Shopping District
- Peddler Steakhouse
- Old Canaan Road Park
- Croft State Park
Community services & perks
- HOA fees: Unknown, please contact the builder
Neighborhood amenities
Walmart Neighborhood Market
1.58 miles away
203 Cedar Springs Rd
Ingles Market
2 miles away
2000 S Pine St
Piggly Wiggly
2.67 miles away
550 S Church St
Blue Moon Specialty Foods
3.35 miles away
130 S Church St
Sam's Club
3.71 miles away
20 Franklin Ave
Walmart Bakery
1.58 miles away
203 Cedar Springs Rd
Sugah Cakes
3.38 miles away
551 E Main St
Smallcakes Cupcakery
3.46 miles away
198 W Main St
Bojangles'
1.33 miles away
2095 Southport Rd
KFC
1.41 miles away
228 Cedar Springs Rd
Charlie's Fine Foods
1.42 miles away
226 Cedar Springs Rd
Hardee's
1.46 miles away
214 Cedar Springs Rd
Waffle House
1.49 miles away
2193 Southport Rd
Starbucks
2 miles away
2000 S Pine St
Planet Smoothie
3.30 miles away
435 E Main St
Downtown Deli Donuts
3.38 miles away
147 E Main St
Little River Coffee Bar
3.45 miles away
188 W Main St
Starbucks
3.46 miles away
156 W Main St
Osun's Beauty LLC
0.44 mile away
2208 Canaan Pointe Dr
Family Dollar
1.35 miles away
216 Cedar Springs Rd
Cato Fashions
1.52 miles away
2199 Southport Rd
Classy Curvy Chic
2.26 miles away
237 Appian Dr
Citi Trends
2.67 miles away
550 S Church St
Nu-Way Lounge & Restaurant
3.20 miles away
373 E Kennedy St
Delaneys Irish Pub
3.40 miles away
117 W Main St
Six Spartanburg Bar & Lounge
3.40 miles away
127 W Main St
The Peddler Steak House
3.41 miles away
149 W Main St
Main Street Pub
3.47 miles away
252 W Main St
Please note this information may vary. If you come across anything inaccurate, please contact us.
Open the door to Life. Built. Better.® with an experienced homebuilder known for quality construction, designer-curated interiors, award-winning energy efficiency and a simplified buying process. Since 1985, Meritage Homes® has delivered more than 180,000 homes across Arizona, California, Colorado, Utah, Texas, Florida, Georgia, North Carolina, South Carolina and Tennessee. Take the next step toward your dream home and discover the Meritage difference.
Take the next steps toward your new home
Brentwood Plan by Meritage Homes
saved to favorites!
To see all the homes you’ve saved, visit the My Favorites section of your account.
Discover More Great Communities
Select additional listings for more information
We're preparing your brochure
You're now connected with Meritage Homes. We'll send you more info soon.
The brochure will download automatically when ready.
Brochure downloaded successfully
Your brochure has been saved. You're now connected with Meritage Homes, and we've emailed you a copy for your convenience.
The brochure will download automatically when ready.
Way to Go!
You’re connected with Meritage Homes.
The best way to find out more is to visit the community yourself!