Brimstone Plan
Ready to build
24217 E 53rd Drive, Aurora CO 80019
Home by DRB Homes

Last updated 1 day ago
The Price Range displayed reflects the base price of the homes built in this community.
You get to select from the many different types of homes built by this Builder and personalize your New Home with options and upgrades.
4 BR
2.5 BA
2 GR
2,418 SQ FT

Front Elevation 1/33
Overview
1 Half Bathroom
2 Stories
Basement
Primary Bed Upstairs
Single Family
Brimstone Plan Info
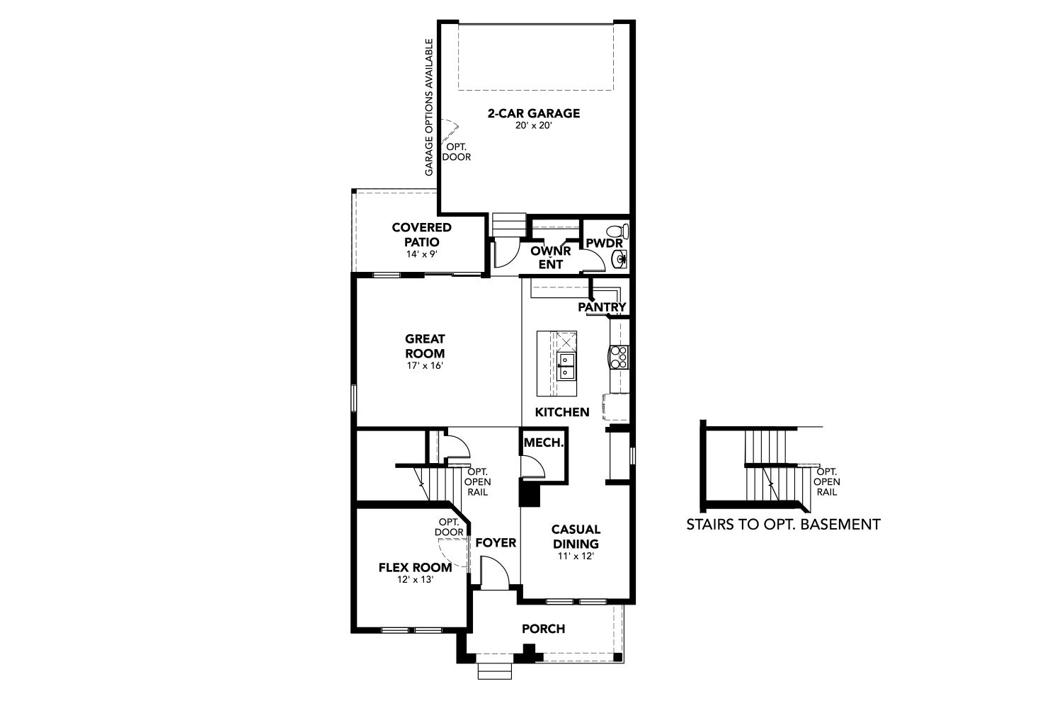
The Brimstone floorplan offers 2,418 square feet of thoughtfully designed two story living, perfect for growing households or anyone who values space and flexibility. On the first level, enjoy a bright and open layout with a spacious great room, dedicated dining area, and a flex room that’s ideal for a home office, playroom, or guest space. A covered patio extends your living space outdoors, while the attached 2 car garage adds everyday convenience. Upstairs, you’ll find four generously sized bedrooms and a versatile loft, perfect as a second living area, media space, or study zone. Need extra space? The Brimstone offers the choice of an oversized garage and an unfinished or finished lower level!
Floor plan center
View floor plan details for this property.
- Floor Plans
- Exterior Images
- Interior Images
- Other Media
Neighborhood
Community location & sales center
24217 E 53rd Drive
Aurora, CO 80019
24217 E 53rd Drive
Aurora, CO 80019
888-690-3590
Coming from E 470: Head east onto 56th Ave make your first right onto Denali Blvd and head south. Make your second left onto 54th Ave turn right on Eaton Park Way which will turn into 53rd Drive. The sales center will be on your right. Coming from Pena Blvd: Head east onto 56th Ave continue to Denali Blvd then head south. Make your second left onto East 54th Ave turn right on Eaton Park Way which will turn into 53rd Drive. The sales center will be on your right.
Schools near Windler Single Family Homes
- Aurora Public Schools
Actual schools may vary. Contact the builder for more information.
Amenities
Home details
Ready to build
Build the home of your dreams with the Brimstone plan by selecting your favorite options. For the best selection, pick your lot in Windler Single Family Homes today!
Community & neighborhood
Health and fitness
- Pool
- Trails
- Volleyball
- Basketball
Community services & perks
- Playground
- Park
Let DRB Homes put decades of industry experience to work for you. We understand that building a new home is not a one-size-fits-all process or journey; get ready to personalize your home to meet your unique needs. You can start by exploring the full portfolio of our most popular floor plans, all available in our new home communities across the region.
Our award-winning team is backed by the DRB Group, a growing, dynamic organization that includes two residential builder brands, a title company, and a residential development services branch providing entitlement, development and construction services. DRB Group's complete spectrum of services operates in 14 states and 35 markets -East Coast to Arizona, Colorado, Texas, and beyond.
Our DRB team will work with you every step of the way. From the on-site salespeople you meet with to the construction crew laying the foundation for your home — we're all working toward the same goal. The same is true for the members of our leadership team, who oversee the entire operation and ensure a seamless process.
TrustBuilder reviews
Take the next steps toward your new home
Brimstone Plan by DRB Homes
saved to favorites!
To see all the homes you’ve saved, visit the My Favorites section of your account.
Discover More Great Communities
Select additional listings for more information
We're preparing your brochure
You're now connected with DRB Homes. We'll send you more info soon.
The brochure will download automatically when ready.
Brochure downloaded successfully
Your brochure has been saved. You're now connected with DRB Homes, and we've emailed you a copy for your convenience.
The brochure will download automatically when ready.
Way to Go!
You’re connected with DRB Homes.
The best way to find out more is to visit the community yourself!