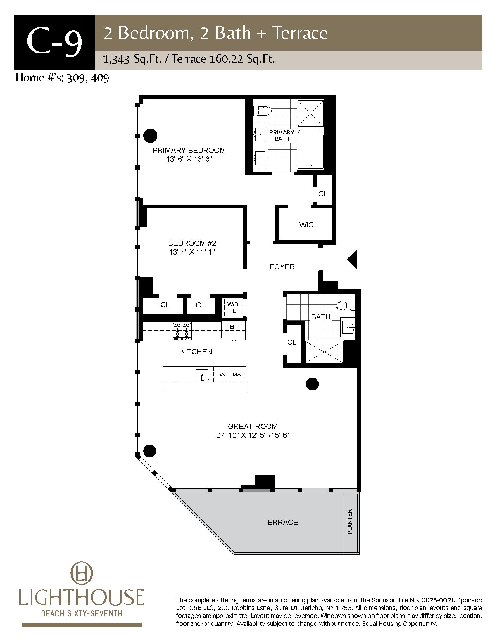
C-9 Plan
Ready to build
1 41 Beach 67th St, Arverne NY 11692
Home by Beechwood Homes

Last updated 1 day ago
The Price Range displayed reflects the base price of the homes built in this community.
You get to select from the many different types of homes built by this Builder and personalize your New Home with options and upgrades.
2 BR
2 BA
1 GR
1,343 SQ FT

Exterior 1/3
Overview
1 Car Garage
1343 Sq Ft
2 Bathrooms
2 Bedrooms
Condo
Guest Room
Living Room
C-9 Plan Info
This spacious two-bedroom, two-bath residence offers a thoughtfully designed open layout ideal for modern living. The generous great room provides ample space for living and dining and flows into a contemporary kitchen with ample cabinetry, pantry storage, and a functional island. The primary bedroom features an en-suite bath and excellent closet space, while the second bedroom offers privacy and flexibility. A private terrace extends the living space outdoors, and additional highlights include an inviting foyer, abundant storage, and an in-unit washer and dryer. Lighthouse Beach Sixty-Seventh, a stunning new beachfront condominium by Beechwood Homes where contemporary luxury meets seaside serenity. Designed by Ismael Leyva Architects, this architectural masterpiece features dramatic walls of glass that blur the line between indoor sophistication and the natural beauty of the Atlantic shoreline, immersing every residence in light, air, and panoramic ocean views. Residents enjoy a curated suite of resort-style amenities — from an elevated beachfront pool and sun deck to a state-of-the-art fitness center, private workspaces, lounge areas, children’s playroom, and a vibrant game room — all crafted for both connection and relaxation. With premium finishes throughout and effortless access to the boardwalk, mass transit, NYC ferry service, and JFK, The Lighthouse redefines coastal living with unmatched style and convenience right in Rockaway Beach. *The building offers private reserved parking. Parking spaces are available to purchase for an additional fee.
Floor plan center
View floor plan details for this property.
- Floor Plans
- Exterior Images
- Interior Images
- Other Media
Explore custom options for this floor plan.
- Choose Option
- Include Features
Neighborhood
Community location & sales center
1 41 Beach 67th St
Arverne, NY 11692
1 41 Beach 67th St
Arverne, NY 11692
From the West (Manhattan, Brooklyn, Queens) Take Belt Parkway East toward JFK Airport. Exit onto Cross Bay Boulevard South toward Rockaway Beaches. Continue on Cross Bay Blvd as it becomes Beach Channel Drive. Turn right onto Beach 73rd Street. Proceed to the traffic circle and go around the circle to get onto Beach Front Road. Continue on Beach Front Road, then make a left onto Beach 67th Street. The sales office will be on your left at 1-41 Beach 67th St. From the East (Nassau County / Long Island) Take Southern State Parkway West or Sunrise Highway West toward Queens. Follow signs to Cross Bay Boulevard South / Rockaway Beaches. Continue on Cross Bay Blvd as it becomes Beach Channel Drive. Turn right onto Beach 73rd Street. Proceed to the traffic circle and go around the circle to access Beach Front Road. Make a left onto Beach 67th Street. The sales office will be on your left at 1-41 Beach 67th St.
Schools near Lighthouse Beach Sixty-Seventh
- New York City Geographic District #27
Actual schools may vary. Contact the builder for more information.
Amenities
Home details
Ready to build
Build the home of your dreams with the C-9 plan by selecting your favorite options today!
Community & neighborhood
Local points of interest
- Views
- Beach
- OceanView
- OutdoorRecreation
- WaterfrontViews
Social activities
- Billiards
- ConferenceRoom/Hall
- GameRoom
Health and fitness
- Pool
- FitnessCenter
- OutdoorPool
Community services & perks
- HOA fees: Unknown, please contact the builder
- CoworkingSpaces
The Beechwood Organization, ranks at the forefront of privately-owned residential homebuilders nationwide, is one of the largest developers of single family and multifamily housing in New York State, and is Long Island’s largest homebuilder and developer of sophisticated lifestyle communities.
Since 1985, Beechwood has built more than 10,000 homes in 80 communities across the New York metro area with new ones on the map in New York City, Long Island, Saratoga and North Carolina.
Brand names include Arverne by the Sea, Bishops Pond, Country Pointe, Harbor Pointe, Marina Pointe, Meadowbrook Pointe, Oak Ridge, The Latch and The Vanderbilt.
Averaging 3.9 million square feet in new developments year-on-year since 2017, Beechwood transitioned from local builder to national leader ranking #58 of 245 Housing Giants by Professional Builder Magazine in 2020.
Cited “the most prolific home builder on Long Island” by Long Island Business News, Beechwood was also noted as the region’s Top Multifamily Developer in 2020 and Residential Developer of the Year for five years running in 2018.
Founder Michael Dubb and son Steven Dubb are renowned for their innovative and forward thinking in “not just selling a home, but a lifestyle” with signature quality construction and design for the way sophisticated buyers and renters want to live today.
Beechwood holds dear its commitment to thoughtful land planning and design, repurposing underutilized land, building in harmony with nature and creating a benefit for all residents.
Take the next steps toward your new home
C-9 Plan by Beechwood Homes
saved to favorites!
To see all the homes you’ve saved, visit the My Favorites section of your account.
Discover More Great Communities
Select additional listings for more information
We're preparing your brochure
You're now connected with Beechwood Homes. We'll send you more info soon.
The brochure will download automatically when ready.
Brochure downloaded successfully
Your brochure has been saved. You're now connected with Beechwood Homes, and we've emailed you a copy for your convenience.
The brochure will download automatically when ready.
Way to Go!
You’re connected with Beechwood Homes.
The best way to find out more is to visit the community yourself!