Camden Plan
Ready to build
Elk River MN 55330
Home by LGI Homes
Last updated 02/18/2026
The Price Range displayed reflects the base price of the homes built in this community.
You get to select from the many different types of homes built by this Builder and personalize your New Home with options and upgrades.
3 BR
2.5 BA
2 GR
1,749 SQ FT

The Camden by LGI Homes 1/3
Special offers
Explore the latest promotions at Rivenwick Village. Contact LGI Homes to learn more!
Builder Paid Closing Costs!
Overview
1 Half Bathroom
2 Stories
Breakfast Area
Dining Room
Family Room
Game Room
Green Construction
Primary Bed Upstairs
Single Family
Walk-In Closets
Camden Plan Info
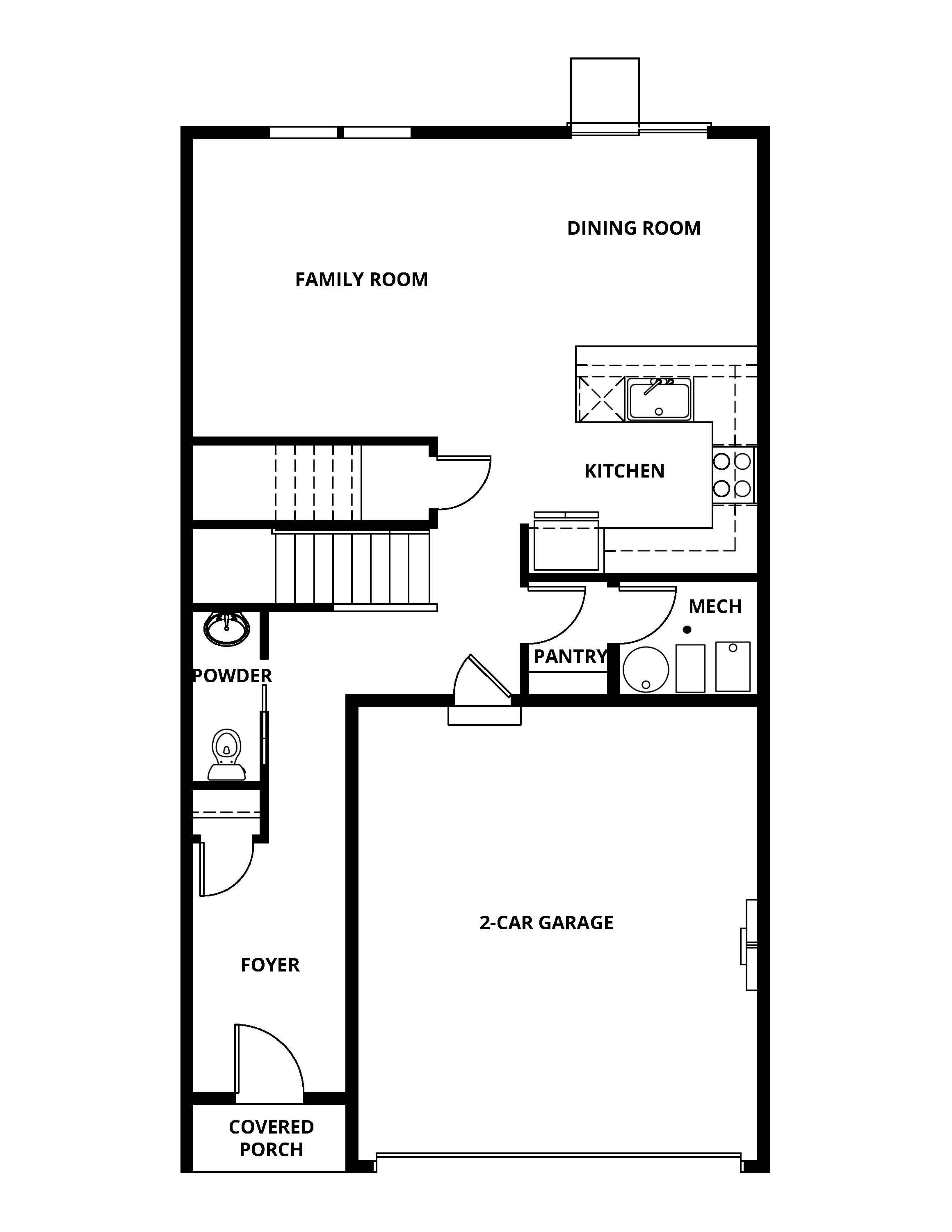
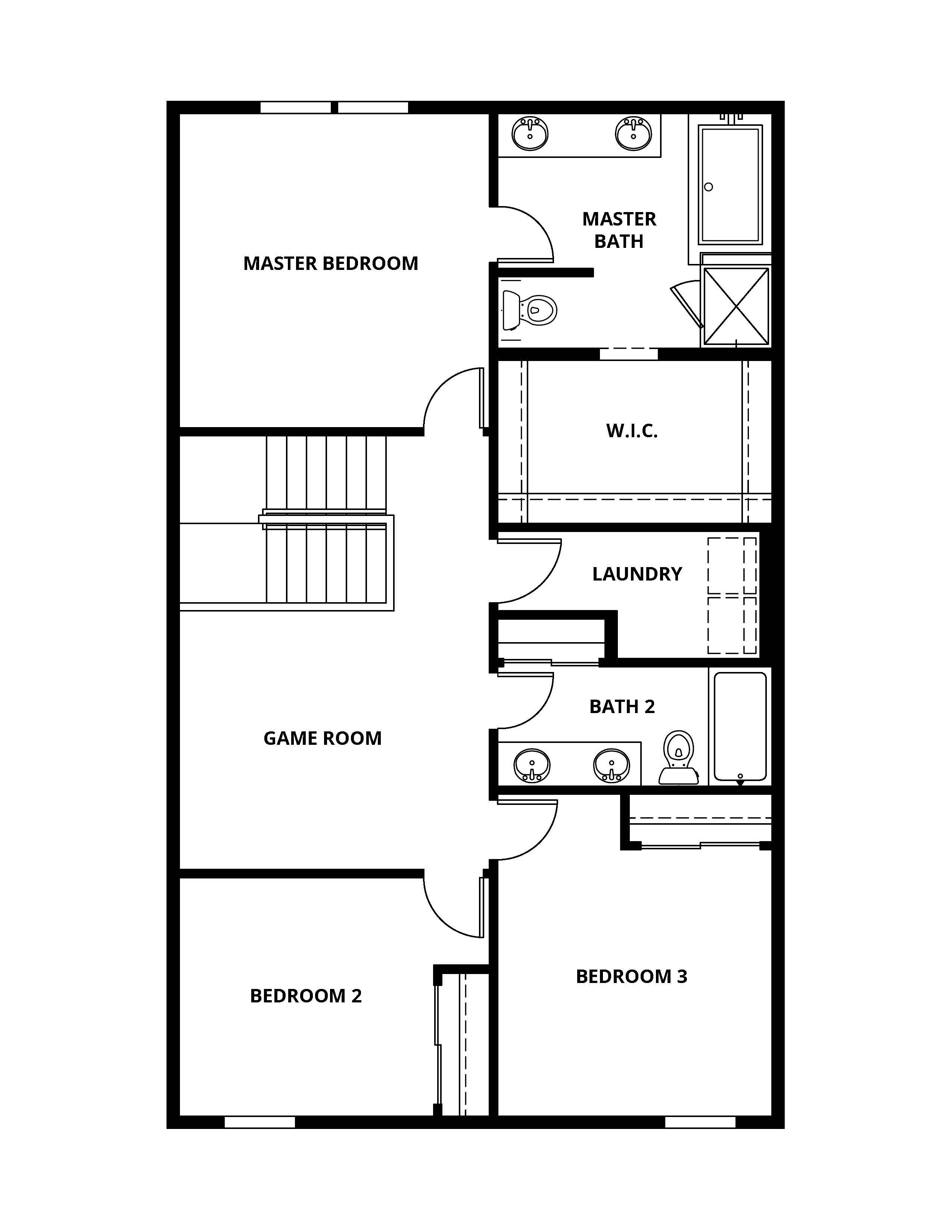
Step into your new home today and discover the exceptional Camden plan, which features a generously sized family room seamlessly connected to a delightful dining area, creating the perfect setting for both relaxation and entertaining. In the heart of the home, the kitchen awaits, complete with high-quality Whirlpool appliances and elegant granite countertops, inviting you to make cherished memories while preparing meals. The master suite offers a luxurious retreat, boasting a spacious walk-in closet, a step in shower, a soaking tub, and a stunning dual sink vanity that enhances your daily routine. Furthermore, the home thoughtfully includes two additional bedrooms, a full bathroom, a convenient laundry room, and an upstairs loft ensuring ample space and functionality for all your needs.
Floor plan center
View floor plan details for this property.
- Floor Plans
- Exterior Images
- Interior Images
- Other Media
Neighborhood
Community location
13921 Kamacite Terrace NW
Ramsey, MN 55303
18751 Edison Street
Elk River, MN 55330
888-281-9504
Nearby schools
Anoka-hennepin Public School District
Anoka High School
High school. Grades 9 to 12.
Public school
Teacher - student ratio: 1:18
Students enrolled: 2322
763-506-6200
3939 7th Ave, Anoka, MN, 55303
Anoka Middle School
Middle school. Grades 6 to 8.
Public school
Teacher - student ratio: 1:16
Students enrolled: 1678
763-506-5000
1523 5th Ave, Anoka, MN, 55303
Ramsey Elementary School
Elementary school. Grades KG to 5.
Public school
Teacher - student ratio: 1:14
Students enrolled: 747
763-506-4000
15000 Nowthen Blvd Nw, Ramsey, MN, 55303
GreatSchools ratings are provided by GreatSchools.org and are for reference only. Ratings may not be available for all schools. Please verify school assignments and details with the local school district.
Amenities
Home details
Ready to build
Build the home of your dreams with the Camden plan by selecting your favorite options today!
Community & neighborhood
Here at LGI Homes, we know that we're a new home builder that is different. Building homes with great value and great prices in excellent locations, such as Dallas-Fort Worth, Houston, San Antonio, Austin, Phoenix, Tucson, Albuquerque, Tampa, Orlando, Charlotte, Denver and Atlanta. In every one of our new home communities, we have assembled a team of dedicated home buying professionals who are ready and able to walk you through the home buying process, and help you find the perfect new home. Contact us now, and let us start you on your journey toward homeownership. You’ll be glad you did!
TrustBuilder reviews
Take the next steps toward your new home
Camden Plan by LGI Homes
saved to favorites!
To see all the homes you’ve saved, visit the My Favorites section of your account.
Discover More Great Communities
Select additional listings for more information
We're preparing your brochure
You're now connected with LGI Homes. We'll send you more info soon.
The brochure will download automatically when ready.
Brochure downloaded successfully
Your brochure has been saved. You're now connected with LGI Homes, and we've emailed you a copy for your convenience.
The brochure will download automatically when ready.
Way to Go!
You’re connected with LGI Homes.
The best way to find out more is to visit the community yourself!