Cardinal Plan
Ready to build
6422 Crescent Moon Drive, North Fort Myers FL 33917
Home by Taylor Morrison
at Solena

Last updated 1 day ago
The Price Range displayed reflects the base price of the homes built in this community.
You get to select from the many different types of homes built by this Builder and personalize your New Home with options and upgrades.
4 BR
3 BA
2 GR
2,308 SQ FT

Exterior D 1/5
Special offers
Explore the latest promotions at Solena. Contact Taylor Morrison to learn more!
Now selling! Schedule your appointment today
Overview
2 Stories
Guest Room
Loft
Primary Bed Upstairs
Single Family
Cardinal Plan Info
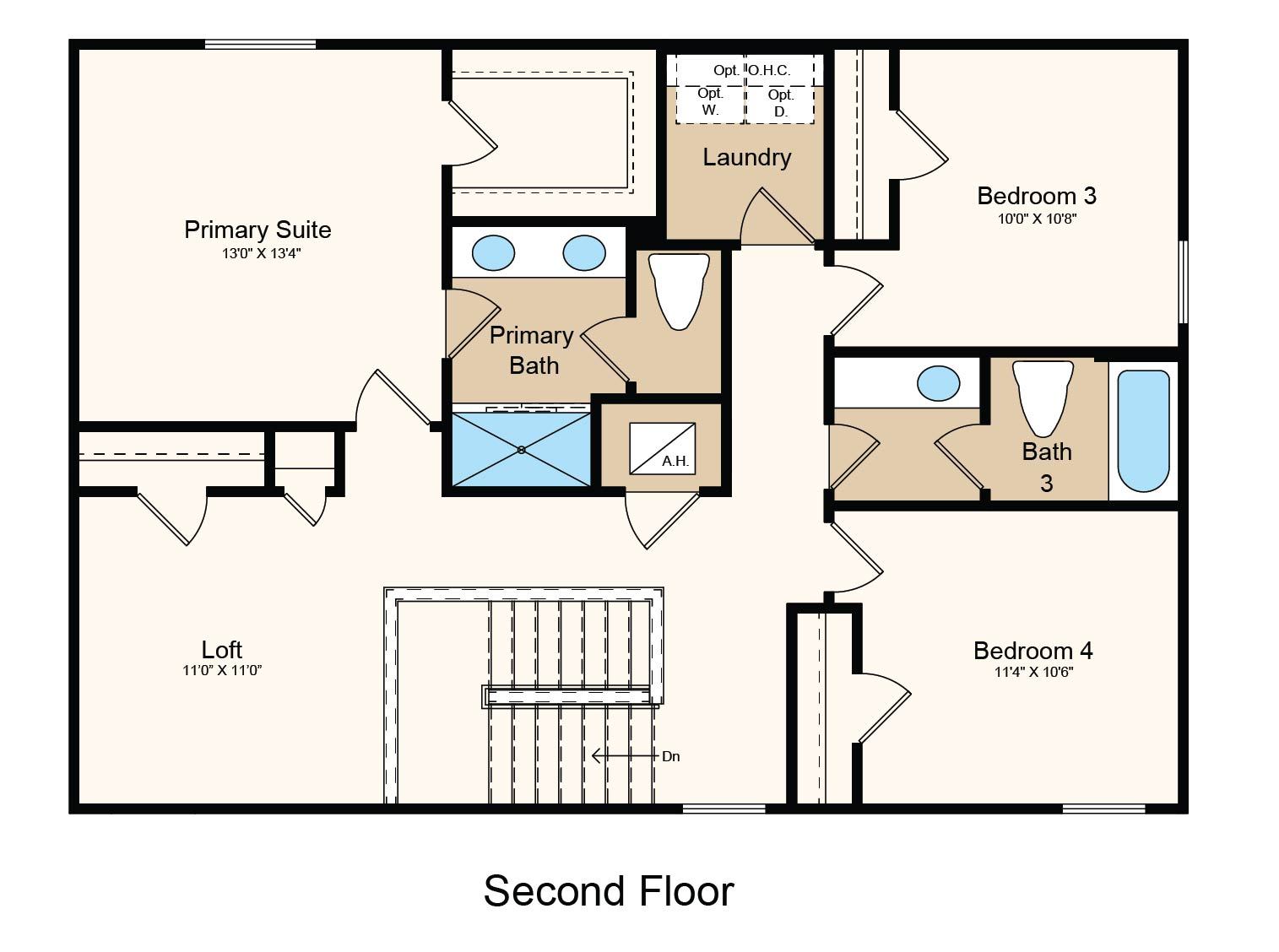
Discover the two-story Cardinal floor plan, offering 2,308 square feet of thoughtfully designed living space. This home features 4 bedrooms, 3 bathrooms, a loft, and a 2-car garage—plus plenty of details you’ll love! On the first floor, you’ll find a welcoming foyer, an open-concept great room, dining area, and a modern kitchen perfect for entertaining. There’s also a convenient secondary bedroom and full bathroom, ideal for guests or a home office. Upstairs, your primary suite oasis awaits, complete with a spacious bathroom featuring dual vanities, a walk-in shower, and a generous walk-in closet. The second floor also includes two additional bedrooms, a third full bathroom, a loft for flexible living space, and a laundry room for added convenience. To top it off, enjoy true indoor-outdoor living with a private patio—perfect for soaking up the warm Florida sunshine!
Floor plan center
View floor plan details for this property.
- Floor Plans
- Exterior Images
- Interior Images
- Other Media
Explore custom options for this floor plan.
- Choose Option
- Include Features
Neighborhood
Community location & sales center
6422 Crescent Moon Drive
North Fort Myers, FL 33917
6422 Crescent Moon Drive
North Fort Myers, FL 33917
888-534-2757
From I-75, take exit 143 towards North Fort Myers/Cape Coral. Head west on Bayshore Rd. and proceed for approximately 2 miles. Turn right on Slater Rd., then turn right on Equinox Lane to enter community. From US-41, head east on Bayshore Rd. and proceed for approximately 3 miles. Turn left onto Slater Rd. and proceed for approximately one-half mile. Community's main entrance will be on your right.
Nearby schools
Lee County School District
Oak Hammock Middle School
Middle school. Grades 6 to 8.
Public school
Teacher - student ratio: 1:18
Students enrolled: 1563
239-693-0469
5321 Tice St, Fort Myers, FL, 33905
North Fort Myers High School
High school. Grades 9 to 12.
Public school
Teacher - student ratio: 1:21
Students enrolled: 1874
239-995-2117
5000 Orange Grove Blvd, N Ft Myers, FL, 33903
GreatSchools ratings are provided by GreatSchools.org and are for reference only. Ratings may not be available for all schools. Please verify school assignments and details with the local school district.
Amenities
Home details
Ready to build
Build the home of your dreams with the Cardinal plan by selecting your favorite options. For the best selection, pick your lot in Solena today!
Community & neighborhood
Local points of interest
- Lake
- Pond
From start to finish, we create a seamless and inspired homebuilding experience for our homebuyers because we understand that your home is the most important home we can build. At Taylor Morrison, we work to earn your trust by providing the resources, support and deep industry experience to inspire you, and help you make educated decisions about your most important purchase. It’s this trust that earned Taylor Morrison the recognition of being America’s Most Trusted® Home Builder for 10 years in a row. We approach each home with a discerning eye, ensuring we select locations and amenities that fit for our homebuyers’ lifestyles. We want your home to be a place where you create a lifetime of lasting memories. With more than 100 years of experience building a lifetime of memories for our homebuyers, you can rest assured we’ll build the right home for you.
Take the next steps toward your new home
Cardinal Plan by Taylor Morrison
saved to favorites!
To see all the homes you’ve saved, visit the My Favorites section of your account.
Discover More Great Communities
Select additional listings for more information
We're preparing your brochure
You're now connected with Taylor Morrison. We'll send you more info soon.
The brochure will download automatically when ready.
Brochure downloaded successfully
Your brochure has been saved. You're now connected with Taylor Morrison, and we've emailed you a copy for your convenience.
The brochure will download automatically when ready.
Way to Go!
You’re connected with Taylor Morrison.
The best way to find out more is to visit the community yourself!