Carolyn Plan
Ready to build
14219 Currant Street, Broomfield CO 80020
Home by DRB Homes

Last updated 20 hours ago
The Price Range displayed reflects the base price of the homes built in this community.
You get to select from the many different types of homes built by this Builder and personalize your New Home with options and upgrades.
2 BR
2.5 BA
2 GR
1,873 SQ FT

Carolyn - Craftsman 1/4
Overview
1 Half Bathroom
1 Story
1873 Sq Ft
2 Bathrooms
2 Bedrooms
2 Car Garage
Basement
Primary Bed Downstairs
Single Family
Carolyn Plan Info
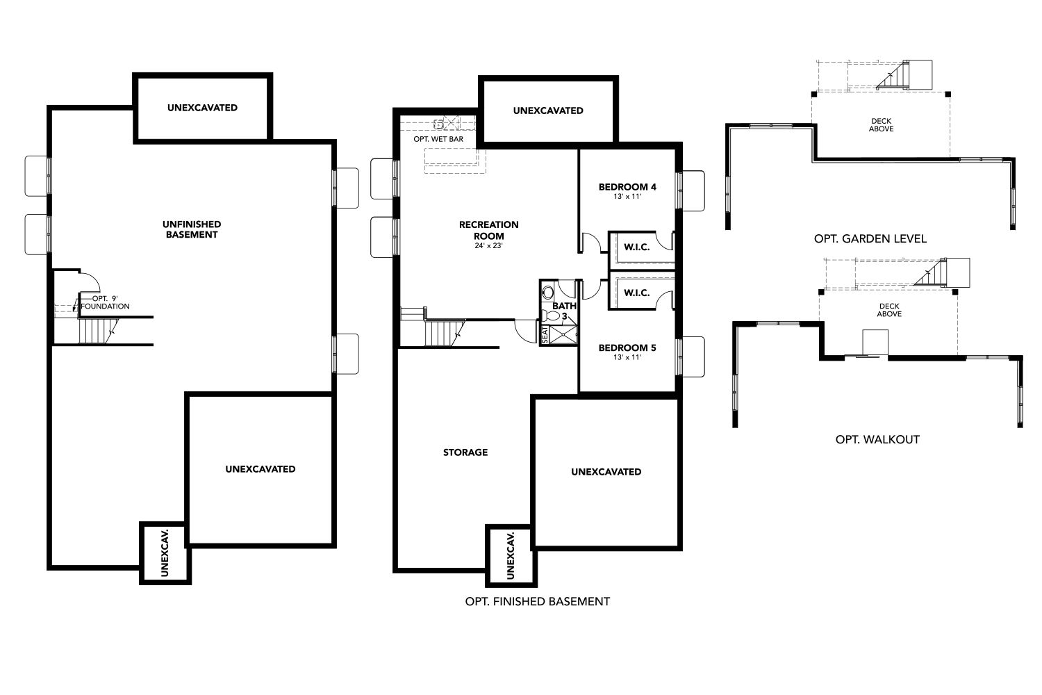
Discover The Carolyn, a beautifully designed 1,873 sq ft ranch-style home that offers the perfect blend of comfort and versatility. Featuring 2 bedrooms on the main level plus a flex space that can easily be converted into a third bedroom, this home adapts to your lifestyle. Enjoy relaxing or entertaining on the large patio, providing an inviting outdoor retreat right off the main living areas. The unfinished basement offers plenty of potential for future expansion—allowing you to add up to two additional bedrooms and create the extra space your family needs.
Floor plan center
View floor plan details for this property.
- Floor Plans
- Exterior Images
- Interior Images
- Other Media
Neighborhood
Community location & sales center
14219 Currant Street
Broomfield, CO 80020
14219 Currant Street
Broomfield, CO 80020
888-567-5369
From I-25: Take W 144th exit and head west for 4 miles. turn left onto Aspen St. Take your second left onto W 142nd Ave and take the first left onto Currant Street. Make your first left and the Sales center will be on the right.From US-287 N: Exit heading East onto W Dillon Rd. Continue on W Dillon Rd for 1.5 miles until you reach Aspen St and turn right onto Aspen St. Turn left onto W 142nd Ave and take the first left onto Currant Street. Make your first left and the Sales center will be on the right.From Sheridan Blvd: Turn left onto W 136th Ave and then turn right onto Aspen St. Turn right onto W 142nd Ave and take the first left and then make another left. The Sales center will be on the right.
Schools near Dillon Pointe - Journey
- Boulder Valley School District No. Re2
- Jeffco Public Schools
- Adams 12 Five Star Schools
Actual schools may vary. Contact the builder for more information.
Amenities
Home details
Ready to build
Build the home of your dreams with the Carolyn plan by selecting your favorite options. For the best selection, pick your lot in Dillon Pointe - Journey today!
Community & neighborhood
Local points of interest
- Greenbelt
- Pond
Health and fitness
- Trails
Community services & perks
- HOA fees: Unknown, please contact the builder
- Playground
- Park
Let DRB Homes put decades of industry experience to work for you. We understand that building a new home is not a one-size-fits-all process or journey; get ready to personalize your home to meet your unique needs. You can start by exploring the full portfolio of our most popular floor plans, all available in our new home communities across the region.
Our award-winning team is backed by the DRB Group, a growing, dynamic organization that includes two residential builder brands, a title company, and a residential development services branch providing entitlement, development and construction services. DRB Group's complete spectrum of services operates in 14 states and 35 markets -East Coast to Arizona, Colorado, Texas, and beyond.
Our DRB team will work with you every step of the way. From the on-site salespeople you meet with to the construction crew laying the foundation for your home — we're all working toward the same goal. The same is true for the members of our leadership team, who oversee the entire operation and ensure a seamless process.
TrustBuilder reviews
Take the next steps toward your new home
Carolyn Plan by DRB Homes
saved to favorites!
To see all the homes you’ve saved, visit the My Favorites section of your account.
Discover More Great Communities
Select additional listings for more information
We're preparing your brochure
You're now connected with DRB Homes. We'll send you more info soon.
The brochure will download automatically when ready.
Brochure downloaded successfully
Your brochure has been saved. You're now connected with DRB Homes, and we've emailed you a copy for your convenience.
The brochure will download automatically when ready.
Way to Go!
You’re connected with DRB Homes.
The best way to find out more is to visit the community yourself!