Charleston Plan
Ready to build
504 Fern Hill Road, Mooresville NC 28117
Home by Caruso Homes

Last updated 20 hours ago
The Price Range displayed reflects the base price of the homes built in this community.
You get to select from the many different types of homes built by this Builder and personalize your New Home with options and upgrades.
3 BR
2 BA
2 GR
2,720 SQ FT

Exterior 1/28
Overview
2 Bathrooms
2 Car Garage
2720 Sq Ft
3 Bedrooms
Primary Bed Downstairs
Single Family
Charleston Plan Info
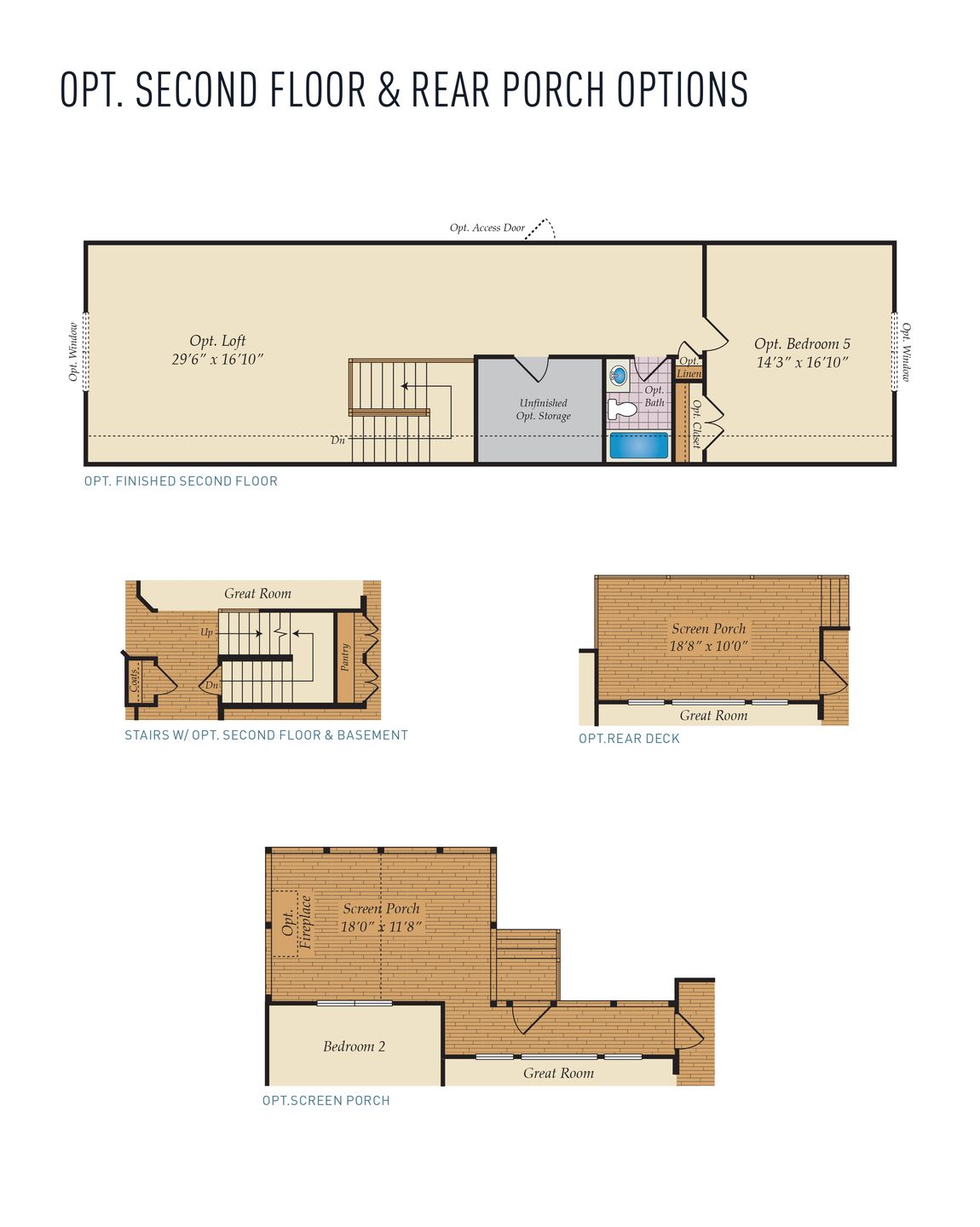
The Charleston is an expansive ranch home plan that comes standard with a two-car garage. A beautiful foyer opens to a formal dining room and flex room which makes for a great in-home office. A huge great room features a wall of windows to bring in plenty of natural light into the open space. The kitchen is an entertainer's dream with a large island and breakfast area. This home has a spa like owners suite with huge soaking tub and separate shower, his and her vanities and two walk-in closets. A mud room with an optional 6 foot drop zone makes a great catch all. If you love living outdoors, you can add a fabulous screened porch and loggia with an outdoor fireplace. This ranch can also be turned into a two story home with room for a loft, additional full bath and an extra bedroom. With plenty of optional features to choose, you can truly design this home to fit your needs and style.
Floor plan center
View floor plan details for this property.
- Floor Plans
- Exterior Images
- Interior Images
- Other Media
Explore custom options for this floor plan.
- Choose Option
- Include Features
Neighborhood
Community location & sales center
504 Fern Hill Road
Mooresville, NC 28117
504 Fern Hill Road
Mooresville, NC 28117
888-696-5202
From I-77 take exit 36 to NC-150 West toward Lincolnton.Go .5 miles and turn right onto Spirits Drive.Go .1 miles Turn left toward Bluefield Road.Turn right onto Bluefield Road.Go 2.3 miles and turn left onto Cornelius Road.Go .6 miles and turn right onto Judas Road.Go 1.2 miles and turn right onto Perth Road.Go 1 mile and turn left onto Fern Hill Road.Model home will be the first home on your right.
Schools near Rolling Meadows
- Iredell-statesville Schools
Actual schools may vary. Contact the builder for more information.
Amenities
Home details
Ready to build
Build the home of your dreams with the Charleston plan by selecting your favorite options. For the best selection, pick your lot in Rolling Meadows today!
Community & neighborhood
Community services & perks
- HOA fees: Unknown, please contact the builder
Neighborhood amenities
Harris Teeter
3.64 miles away
118 Argus Ln
Food Lion
3.92 miles away
520 N Main St
Sam's Club
3.97 miles away
646 River Hwy
BJ's Wholesale Club
4.16 miles away
141 Gallery Center Dr
Food Lion
4.29 miles away
516 River Hwy
Queen City Pastry
3.95 miles away
137 Speedway Ln
Smallcakes Cupcakery
4.33 miles away
591 River Hwy
The Vitamin Shoppe
4.40 miles away
489 River Hwy
Cocomo Confections
4.59 miles away
1945 Scottsville Rd
The Gospelaires Inc
0.80 mile away
723 Fern Hill Rd
Baskin-Robbins
1.58 miles away
1007 Charlotte Hwy
Dunkin'
1.58 miles away
1007 Charlotte Hwy
Subway
1.58 miles away
150 S Main St
Dunkin'
1.58 miles away
1007 Charlotte Hwy
Dunkin'
2.09 miles away
1006 Charlotte Hwy
Dunkin'
3.33 miles away
205 N Main St
Your Coffee Place
3.54 miles away
403 N Main St
Starbucks
3.64 miles away
118 Argus Ln
Lavendar Boutique
1.40 miles away
193 Winding Creek Dr
J & D Tactical Outfitters LLC
1.87 miles away
889 Perth Rd
City Style Fashion LLC
3.87 miles away
164 River Park Rd
Sam's Club
3.97 miles away
646 River Hwy
Rack Room Shoes
4.01 miles away
598 River Hwy
Cedar Stump Pub
3.12 miles away
152 S Main St
Sports Page
3.66 miles away
128 Argus Ln
Village Tap House
3.66 miles away
128 Argus Ln
George Pappas Victory Lanes
4.00 miles away
125 Morlake Dr
Hickory Tavern
4.19 miles away
115 Morrison Plantation Pkwy
Please note this information may vary. If you come across anything inaccurate, please contact us.
At the heart of every Caruso Home is our "We Care" attitude - a commitment to uncompromising quality and exceptional customer service. We believe that every homebuyer is different and, as such, deserves a home built to suit their needs.
We began modestly enough in 1986, building custom homes for people unwilling to settle for standard. Since then, discerning homebuyers throughout Maryland, Delaware, Pennsylvania and North Carolina have counted on us to provide them with superior quality of craftsmanship in new home construction and design.
As we plan for future growth, we will continue our commitment to excellence by staying on top of industry trends and technology, building homes that exceed industry standards for construction and energy efficiency.
Take the next steps toward your new home
Charleston Plan by Caruso Homes
saved to favorites!
To see all the homes you’ve saved, visit the My Favorites section of your account.
Discover More Great Communities
Select additional listings for more information
We're preparing your brochure
You're now connected with Caruso Homes. We'll send you more info soon.
The brochure will download automatically when ready.
Brochure downloaded successfully
Your brochure has been saved. You're now connected with Caruso Homes, and we've emailed you a copy for your convenience.
The brochure will download automatically when ready.
Way to Go!
You’re connected with Caruso Homes.
The best way to find out more is to visit the community yourself!