Tanterra
Chesapeake
16883 Mighty Eagle Ave, Parker, CO, 80134
by Richmond American Homes 206 TrustBuilder reviews
From $814,950 This is the starting price for this plan and is subject to change.
- 4 Beds
- 3.5 Baths
- 3 Car garage
- 4,980 Sq Ft
Overview
Floor plan features
- 1 Half Bathroom
- 2 Stories
- Primary Bed Downstairs
- Single Family
Floor plan description
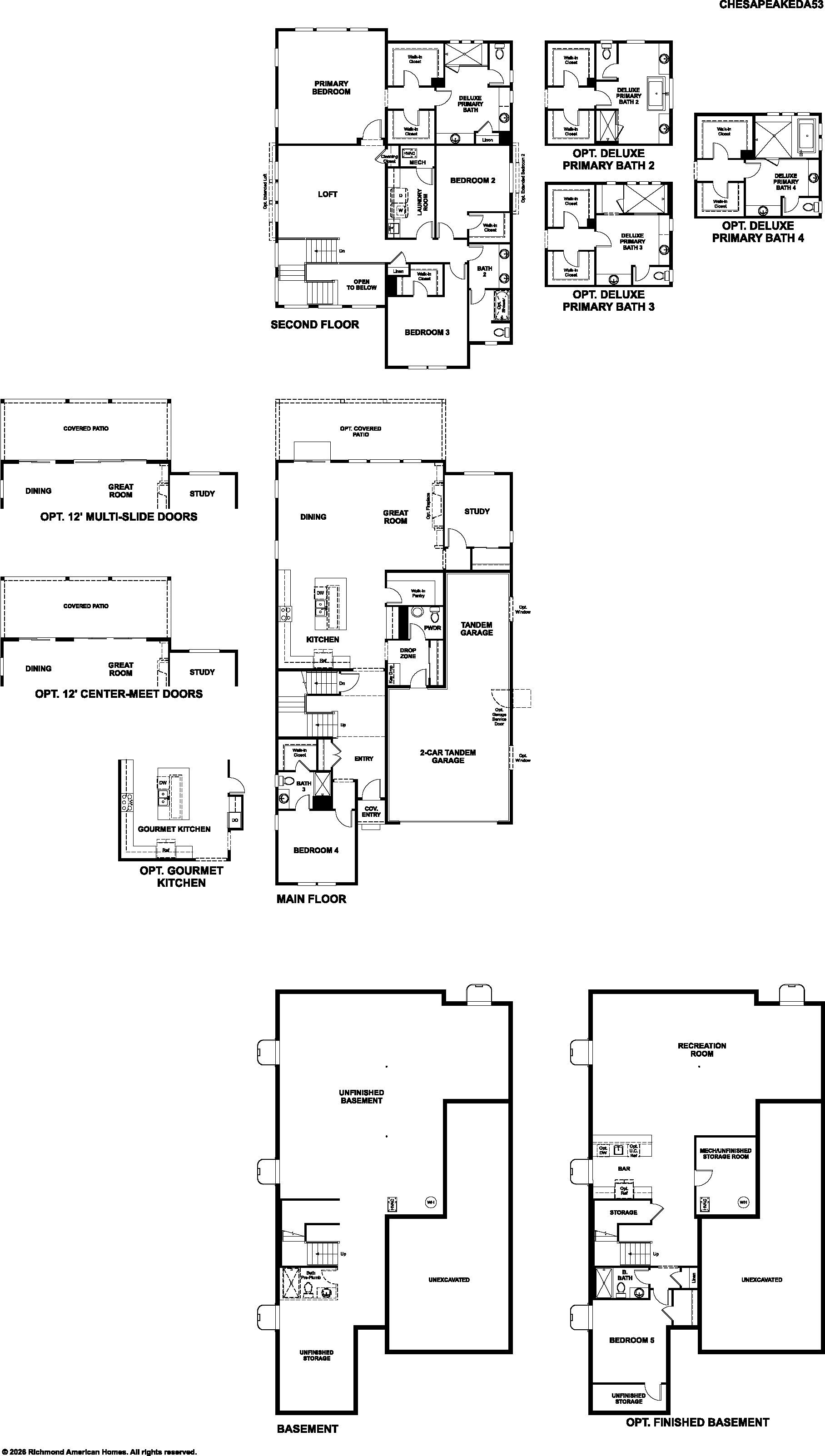
The main floor of the charming Chesapeake plan boasts an inviting great room, an open dining room, a quiet study, and a gourmet kitchen with a large island and walk-in pantry. You’ll also appreciate a bedroom and full bath, as well as a convenient powder room. Upstairs, discover two secondary bedrooms with walk-in closets and a shared bath, and a luxurious primary suite showcasing two walk-in closets and a deluxe bath with dual vanities. Additional highlights include a versatile loft, a central laundry, a great room fireplace, and a finished basement offering a rec room, bedroom, and bathroom. This home may also be built with a serene covered patio.
Explore this home
Explore custom options for this floor plan.
Special offers
Explore the latest promotions at Tanterra. to learn more!
7/6 Adjustable-rate Mortgage Offer
adjustable-rate Conventional financing!
Get today's best offers...
& pick your way to save on select homes!
Denver Homes of the Week
See this week's hot homes!
Community highlights
Community amenities
Lake
Playground
Pool
Trails
About Tanterra
Find your dream home in Parker! Located about 20 miles southeast of Denver, Tanterra is an attractive option for house hunters in Douglas County. This master-planned community showcases an impressive array of amenities, including a clubhouse, a pool, parks, sports courts, trails and approximately 286 acres of open space. Residents will enjoy close proximity to shopping, dining and entertainment, as well as easy access to outdoor recreation opportunities at the Reuter-Hess Reservoir. Choose from a selection of beautiful, designer-curated floor plans, all brand-new to Colorado! More info about Tanterra
Neighborhood
Community location & sales center
16883 Mighty Eagle Ave Parker, CO 80134
16883 Mighty Eagle Ave Parker, CO 80134
888-996-5929
Amenities
Community & neighborhood
Local points of interest
- Lake
Social activities
- Parker Library
- Parker Recreation Center
- Park Meadows Mall
Health and fitness
- Parker Adventist Hospital
- Parker Recreation Center
- Pool
- Trails
Community services & perks
- Playground
Neighborhood amenities
Walmart Supercenter
2.22 miles away
11101 S Parker Rd
King Soopers
2.24 miles away
12959 S Parker Rd
Spices N Beyond
2.26 miles away
11153 S Parker Rd
Natural Grocers
2.31 miles away
11402 S Parker Rd
Safeway
2.40 miles away
11051 S Parker Rd
Sweet Ness Cupcakes LLC
1.35 miles away
10655 S Parker Rd
Four Paws Bakery & Pet Spa
1.57 miles away
17002 E Mainstreet
Walmart Bakery
2.22 miles away
11101 S Parker Rd
GNC
2.39 miles away
11011 S Parker Rd
Amy's Fine Food
0.85 mile away
11727 S Rock Willow Way
Funugyz
1.35 miles away
17785 Cottonwood Dr
Hunt Brothers Pizza
1.35 miles away
15305 Compark Blvd
Krispy Krunchy Chicken
1.35 miles away
15305 Compark Blvd
Java Mountain Roasters
1.72 miles away
19033 E Cody Ave
Starbucks
2.06 miles away
11150 Twenty Mile Rd
Robeks
2.14 miles away
12235 Pine Bluffs Way
Starbucks
2.14 miles away
12227 Pine Bluffs Way
Starbucks
2.24 miles away
12959 S Parker Rd
maurices
2.06 miles away
11465 Twenty Mile Rd
Target
2.06 miles away
11150 Twenty Mile Rd
Famous Footwear
2.06 miles away
11475 Twenty Mile Rd
Kohl's
2.12 miles away
11485 Twenty Mile Rd
Walmart Supercenter
2.22 miles away
11101 S Parker Rd
Funugyz
1.35 miles away
17785 Cottonwood Dr
Chili's
2.14 miles away
11481 Twenty Mile Rd
Scissors & Scotch
2.14 miles away
12227 Pine Bluffs Way
Qdoba Mexican Eats
2.19 miles away
11215 S Parker Rd
Parker Pour House
2.20 miles away
12919 Stroh Ranch Ct
Please note this information may vary. If you come across anything inaccurate, please contact us.
Builder details
Richmond American Homes
4.2 out of 5 stars
206 Reviews in the Denver Area
VIEW RATINGS & REVIEWSWhat sets Richmond American Homes companies apart from other leading homebuilders? Many will say it's the inspired floor plans, incredible included features, quality construction and unwavering commitment to customer satisfaction. Although these all play a role, personalization is what truly makes the difference. The company may have built more than 210,000 homes over the last 40+ years, but each one turns out anything but cookie cutter!
How do we make each Richmond American home unique? By offering homebuyers who build a new home from the ground up the opportunity to choose from hundreds of fixture and finish options at our innovative Home Gallery™ design centers across the country. From the kitchen cabinets and countertops to the surround sound, there are countless opportunities to tailor the floor plans, along with seasoned advice to assist customers every step of the way.
The Richmond American Homes companies have homebuilding operations in several states, including Arizona, California, Colorado, Florida, Idaho, Maryland, Nevada, Oregon, Pennsylvania, Utah, Virginia and Washington. With an impressive lineup of ranch, two-story and three-story floor plans, and several sought-after home collections available, there are options that appeal to a wide range of homebuyers at a variety of price points. Customers can also take advantage of the one-stop shopping convenience offered by Richmond American’s affiliates, HomeAmerican Mortgage Corporation, American Home Insurance Agency, Inc. and American Home Title and Escrow Company. Together, these companies offer a streamlined homebuying experience from start to finish. Discover your dream home—and make it your own—today!
TrustBuilder reviews
Take the next steps toward your new home
This listing's information was verified with the builder for accuracy 1 day ago
Chesapeake Plan by Richmond American Homes
saved to favorites!
To see all the homes you’ve saved, visit the My Favorites section of your account.
Discover More Great Communities
Select additional listings for more information
We're preparing your brochure
You're now connected with Richmond American Homes. We'll send you more info soon.
The brochure will download automatically when ready.
Brochure downloaded successfully
Your brochure has been saved. You're now connected with Richmond American Homes, and we've emailed you a copy for your convenience.
The brochure will download automatically when ready.
Way to Go!
You’re connected with Richmond American Homes.
The best way to find out more is to visit the community yourself!