Clifton Plan
Ready to build
816 Stonewater Lake Terrace, Cape Coral FL 33993
Home by D.R. Horton
at Stonewater

Last updated 1 day ago
The Price Range displayed reflects the base price of the homes built in this community.
You get to select from the many different types of homes built by this Builder and personalize your New Home with options and upgrades.
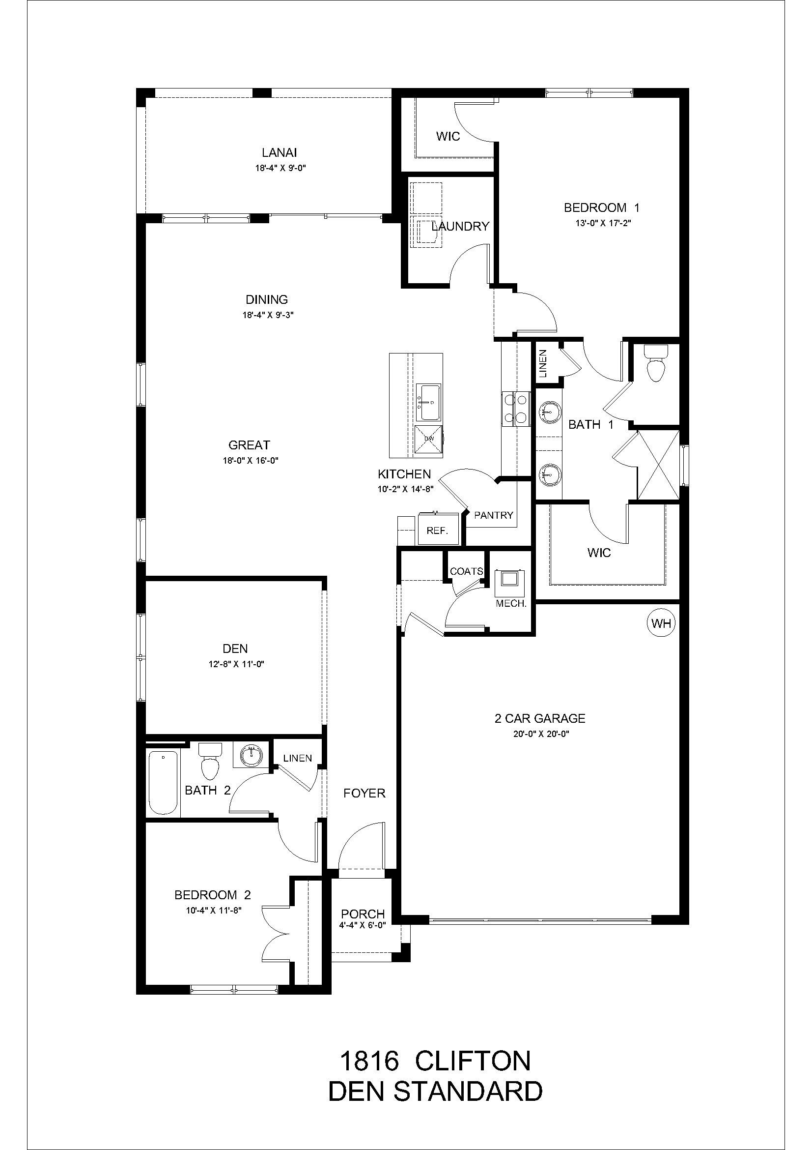
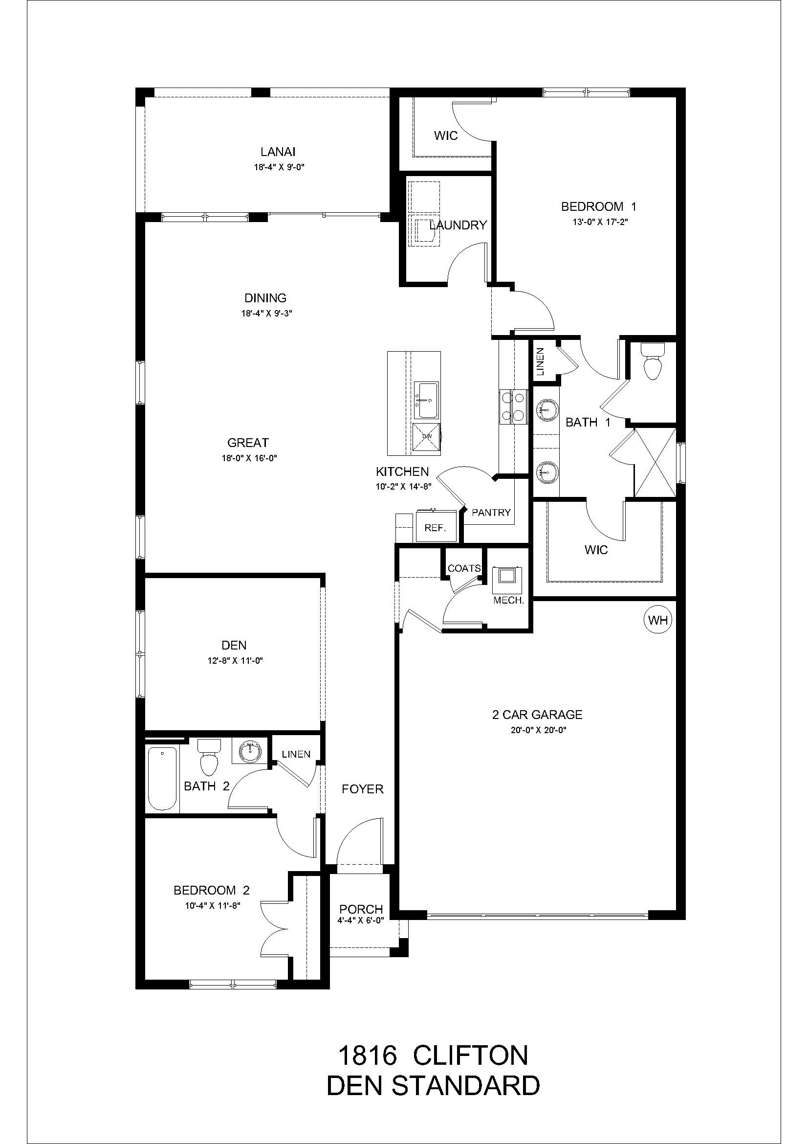
3 BR
2 BA
2 GR
1,816 SQ FT

Floorplan 0 1/1
Overview
1 Story
Single Family
Clifton Plan Info
The Clifton is one of our most sought-after one-story home designs at Stonewater in Cape Coral, FL. The Clifton is a one-story single-family home with two bedrooms, a den, two bathrooms, and an attached two-car garage. This 1,816 square foot home features a long foyer with a bedrooms and den on the side and leads to an inviting open-concept kitchen, great room, and dining area. A set of sliding glass doors allows ample lighting into the living area and lead out to a paved, covered lanai. The well-appointed kitchen has a convenient, walk-in corner pantry and provides ample cabinet and counter space with granite countertops, stainless steel appliances, and 42" upper cabinets with under cabinet lighting. The primary bedroom, located at the back of the house for privacy, has an en suite bathroom with a double vanity and two large walk-in closets providing substantial space for storage. A guest bedroom and flex space are located opposite the primary bedroom at the front of the home. The flex space can be utilized as an office or cozy den. Schedule an appointment today to tour your new home.
Floor plan center
View floor plan details for this property.
- Floor Plans
- Exterior Images
- Interior Images
- Other Media
Neighborhood
Community location & sales center
816 Stonewater Lake Terrace <br/> Cape Coral, FL 33993
816 Stonewater Lake Terrace <br/> Cape Coral, FL 33993
888-281-6151
Stonewater is located in Cape Coral near Mariner High School on the southwest corner of Tropicana Parkway and Nelson Road.
Schools near Stonewater
- Lee County School District
Actual schools may vary. Contact the builder for more information.
- • Peace River Wildlife Center: Wildlife rehabilitation in Punta Gorda (about 20 mins).
Amenities
Home details
Ready to build
Build the home of your dreams with the Clifton plan by selecting your favorite options. For the best selection, pick your lot in Stonewater today!
Community & neighborhood
Local points of interest
- • Wicked Dolphin Distillery: Craft distillery with tours and tastings in Cape Coral.
Health and fitness
- • Sun Splash Park: A large water park for fun.
In 1978, D.R. Horton broke ground on our first home in Fort Worth, Texas. Since that day, the company has defined its success not by bricks and mortar, but by the satisfaction of the families that make our houses their homes. Our foundation is a single, guiding principle: a value-first dedication to the individual needs of each and every one of our nation’s homebuyers.
From first-time homebuyers to empty nesters, our family of brands provides a home for every stage in life. Our highly-trained, market experts are where you want to live, from New Jersey to Hawaii, providing unique, personalized services tailored to your individual needs. But the real value comes from the quality construction we put into every home, and the peace of mind that comes with a premium-backed warranty from America’s Number One Homebuilder.
We’ve come a long way, and while more people choose our family of brands over any other builder in the country, we never forget the most important thing of all – the families that choose us for their place to call home.
So continue to live out those dreams, America, and know we’ll be here for you every step of the way.
Take the next steps toward your new home
Clifton Plan by D.R. Horton
saved to favorites!
To see all the homes you’ve saved, visit the My Favorites section of your account.
Discover More Great Communities
Select additional listings for more information
We're preparing your brochure
You're now connected with D.R. Horton. We'll send you more info soon.
The brochure will download automatically when ready.
Brochure downloaded successfully
Your brochure has been saved. You're now connected with D.R. Horton, and we've emailed you a copy for your convenience.
The brochure will download automatically when ready.
Way to Go!
You’re connected with D.R. Horton.
The best way to find out more is to visit the community yourself!