Skip main navigation
Floor Plan A home design you can choose to customize and build in this community, on your choice of homesite. Ready to build

Cypres

6000 NW Bruggman Loop, Bremerton, WA, 98312

by LGI Homes 4.1 268 TrustBuilder reviews

From $539,900 This is the starting price for this plan and is subject to change.

  • 3 Beds
  • 2.5 Baths
  • 2 Car garage
  • 1,623 Sq Ft

    Overview

    Floor plan features

    • 1 Half Bathroom
    • 2 Stories
    • Bonus Room
    • Dining Room
    • Family Room
    • Flex Room
    • Patio
    • Porch
    • Primary Bed Upstairs
    • Single Family

    Floor plan description

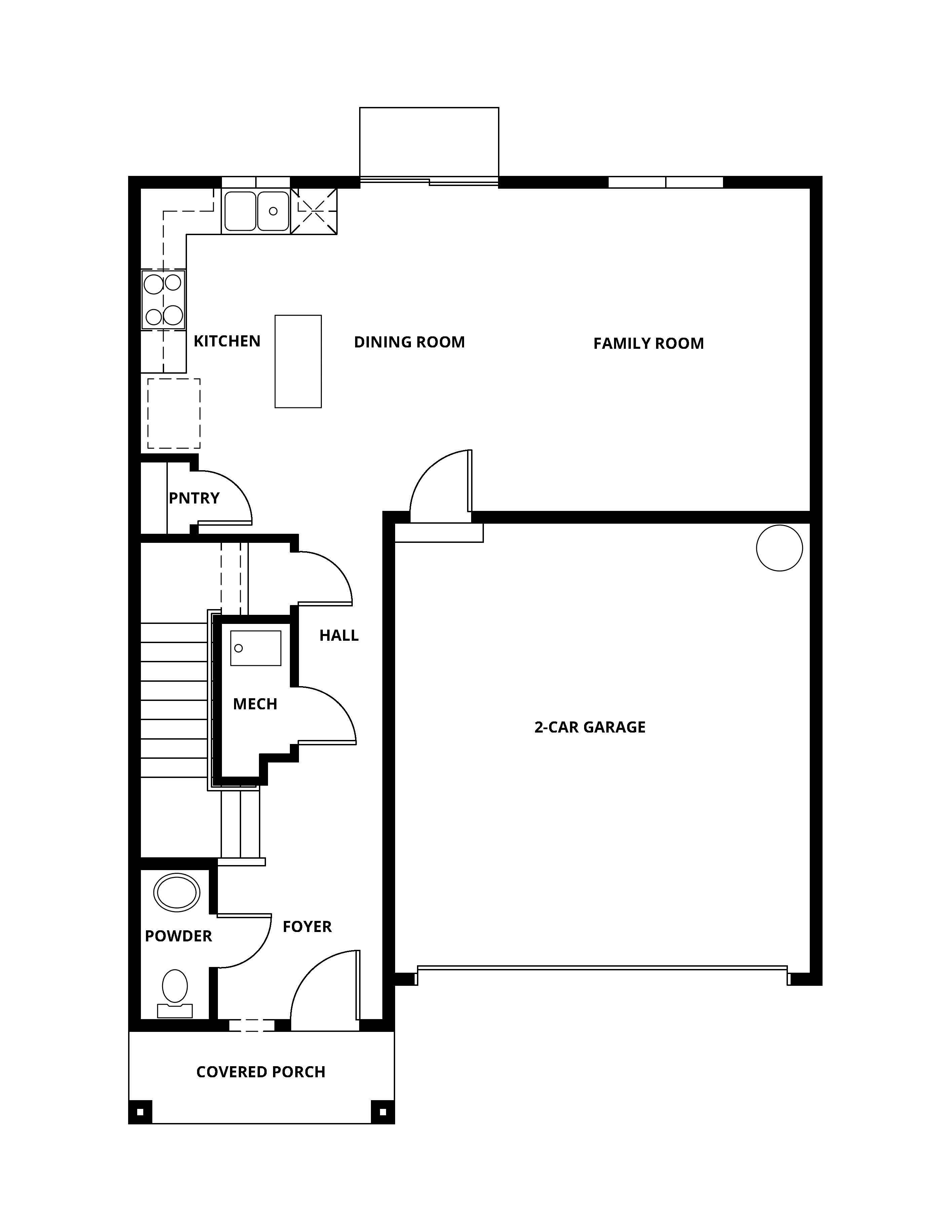
    Make your move into homeownership with the charming Cypress plan by LGI Homes. A welcoming covered front porch and front yard landscaping create curb appeal for this two-story home at Eldorado. Modern plank flooring, recessed LED lighting and an array of designer extras enhance the interior of this spacious three-bedroom, two-bathroom home. This home also has a large game room on the second floor that can used as a play room, office or reading nook. An inviting covered front porch welcomes you into the Cypress, where you will find a spacious foyer with beautiful plank flooring and a powder bathroom. The main level of this home features an open-concept design with a spacious family room, dining room and kitchen. Abundant windows looking outside keep this space bright and airy. The chef-read...

    Make your move into homeownership with the charming Cypress plan by LGI Homes. A welcoming covered front porch and front yard landscaping create curb appeal for this two-story home at Eldorado. Modern plank flooring, recessed LED lighting and an array of designer extras enhance the interior of this spacious three-bedroom, two-bathroom home. This home also has a large game room on the second floor that can used as a play room, office or reading nook. An inviting covered front porch welcomes you into the Cypress, where you will find a spacious foyer with beautiful plank flooring and a powder bathroom. The main level of this home features an open-concept design with a spacious family room, dining room and kitchen. Abundant windows looking outside keep this space bright and airy. The chef-ready kitchen provides an appealing amount of storage in gorgeous white cabinets and a large pantry. A quartz-topped island makes a perfect place for enjoying a cup of coffee or a quick meal. Equipped with a full suite of stainless-steel Whirlpool® appliances and recessed LED lighting, all that’s missing in this kitchen is your family chef. Every LGI home at Eldorado includes an array of upgraded features and finishes included in the sales price. Featuring LGI’s CompleteHome Plus™ package, in this home you will find stylish plank flooring, faux wood blinds, a programmable thermostat, double-pane Low-E vinyl windows, a finished garage with Wi-Fi-enabled automatic door opener, front yard landscaping and so much more!


    Explore this home

    Explore custom options for this floor plan.


    Special offers

    Explore the latest promotions at Eldorado. to learn more!

    Financing

    No Down Payment Required!

    LGI Homes offers brand-new homes for little to NO MONEY DOWN at select communities. Owning a new home has never been this easy or affordable. Visit LGIHomes.com to find you new home today!

    Reduced closing costs

    Builder Paid Closing Costs!

    Moving into your new LGI home just got easier and more affordable! LGI Homes will help pay your closing costs. That means you can own a home with little to no upfront costs. Visit LGIHomes.com to find your new home today!


    Community highlights

    About Eldorado

    Tucked away in the beautiful Washington pine trees, Eldorado is where peaceful suburban living meets everyday convenience. Whether you're looking for your first home or second home, this community is designed to give you the space, style, and quality you deserve, all included in one affordable price. Every home includes LGI Homes’ CompleteHome Plus™ package, so you get luxury upgrades like stainless steel appliances, beautiful kitchen backsplash, and smart-home features at no extra cost to you. Commuting is easy at Eldorado with quick access to Washington State Route 3, connecting you to the area’s major employers, amazing amenities and everything else that the Kitsap Peninsula has to offer. More info about Eldorado

    Have questions about the amenities?

    Get more details

    Your free brochure has been sent via email

    Request a tour

    Community location & sales center
    Cypres

    Eldorado
    LGI Homes
    6000 NW Bruggman Loop, Bremerton, WA 98312

    888-928-7250

    Hours

    Open 7 days a week!


    Neighborhood

    Community map

    Community location & sales center

    888-928-7250

    Please enter a valid location or select an item from the list.

    Amenities

    Community & neighborhood


    Here at LGI Homes, we know that we're a new home builder that is different. Building homes with great value and great prices in excellent locations, such as Dallas-Fort Worth, Houston, San Antonio, Austin, Phoenix, Tucson, Albuquerque, Tampa, Orlando, Charlotte, Denver and Atlanta. In every one of our new home communities, we have assembled a team of dedicated home buying professionals who are ready and able to walk you through the home buying process, and help you find the perfect new home. Contact us now, and let us start you on your journey toward homeownership. You’ll be glad you did!



    This listing's information was verified with the builder for accuracy 03/31/2026