Dakota Plan
Ready to build
111 Willoughby Way, Piedmont SC 29673
Home by Meritage Homes
Last updated 1 day ago
The Price Range displayed reflects the base price of the homes built in this community.
You get to select from the many different types of homes built by this Builder and personalize your New Home with options and upgrades.
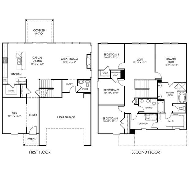
4 BR
2.5 BA
2,479 SQ FT

Plan Diagram 1/1
Special offers
Explore the latest promotions at Riverwood Farm. Contact Meritage Homes to learn more!
The Time is Right
Overview
1 Half Bathroom
2 Stories
Green Construction
Single Family
Dakota Plan Info
Outfit the Dakota's main-level flex space as a home office and skip your commute. In the kitchen, the island overlooks the open living space. Upstairs, the loft separates the secondary bedrooms from the primary suite.
Floor plan center
View floor plan details for this property.
- Floor Plans
- Exterior Images
- Interior Images
- Other Media
Neighborhood
Community location & sales center
111 Willoughby Way
Piedmont, SC 29673
111 Willoughby Way
Piedmont, SC 29673
888-237-0331
From I-85 S take exit 35. Turn left onto SC-86 toward Easley/Piedmont. Turn right onto Old River Rd and the community will be on the right.
Schools near Riverwood Farm
- Anderson 01 School District
- Greenville 01 School District
Actual schools may vary. Contact the builder for more information.
Amenities
Home details
Green program
Setting the standard for Energy Efficiency
Ready to build
Build the home of your dreams with the Dakota plan by selecting your favorite options. For the best selection, pick your lot in Riverwood Farm today!
Community & neighborhood
Local points of interest
- Anderson Mall
- Haywood Road Shopping District
- Woodruff Road Shopping District
- Lake Hartwell
- Downtown Anderson
- Downtown Greenville
- Dolly Cooper Park
- Southern Oaks Golf Course
Community services & perks
- HOA fees: Unknown, please contact the builder
Neighborhood amenities
Food Lion
3.39 miles away
330 Lebby St
Food Lion
4.71 miles away
8024 Augusta Rd
Ingles Market
5.66 miles away
7616 Augusta Rd
Ingles Market
6.33 miles away
10903 Anderson Rd
ALDI
6.58 miles away
3340 Highway 153
Tasteful Elegance Inc
5.29 miles away
122 Country Lakes Rd
Walmart Bakery
6.72 miles away
11410 Anderson Rd
Kolache Factory
6.80 miles away
3609 Highway 153
Bimbo Bakeries USA
7.32 miles away
565 Shackelford Rd
Foothills Health & Living
8.20 miles away
325 Lockaby Rd
J & J Mart Inc
0.74 mile away
1101 Highway 86
Subway
0.74 mile away
1101 Highway 86
Hardee's
0.75 mile away
904 Anderson St
Domino's
0.76 mile away
914 Anderson St
Black Sheep Cafe & Catering
0.93 mile away
1413 Highway 86
Starbucks
6.33 miles away
10903 Anderson Rd
Daylight Wellness Group, LLC
6.45 miles away
208 Wall St
White Rabbit Tea Shoppe LLC
6.55 miles away
3407 Highway 153
Dunkin'
6.57 miles away
3421 Highway 153
Coyote Coffee Cafe-Powdersville
6.70 miles away
3527 Highway 153
Family Dollar
1.84 miles away
10 S Piedmont Hwy
Twenty 4 West Salon Boutique
3.32 miles away
24 Main St
Family Dollar
3.58 miles away
107 Highway 20 S
MS 22 Clothing
3.88 miles away
230 Piedmont Golf Course Rd
Family Dollar
4.72 miles away
8090 Augusta Rd
Entertainment Sports II
1.83 miles away
7490 Augusta Rd
3 Friends Bar & Grill
5.46 miles away
7736 Augusta Rd
Powdersville Pub
6.18 miles away
112 Halter Dr
Reubens Food, Sports, Spirits & Catering
6.47 miles away
11028 Anderson Rd
Wild Country Saloon
6.78 miles away
1638 Piedmont Hwy
Please note this information may vary. If you come across anything inaccurate, please contact us.
Open the door to Life. Built. Better.® with an experienced homebuilder known for quality construction, designer-curated interiors, award-winning energy efficiency and a simplified buying process. Since 1985, Meritage Homes® has delivered more than 180,000 homes across Arizona, California, Colorado, Utah, Texas, Florida, Georgia, North Carolina, South Carolina and Tennessee. Take the next step toward your dream home and discover the Meritage difference.
Take the next steps toward your new home
Dakota Plan by Meritage Homes
saved to favorites!
To see all the homes you’ve saved, visit the My Favorites section of your account.
Discover More Great Communities
Select additional listings for more information
We're preparing your brochure
You're now connected with Meritage Homes. We'll send you more info soon.
The brochure will download automatically when ready.
Brochure downloaded successfully
Your brochure has been saved. You're now connected with Meritage Homes, and we've emailed you a copy for your convenience.
The brochure will download automatically when ready.
Way to Go!
You’re connected with Meritage Homes.
The best way to find out more is to visit the community yourself!