Elm Plan
Ready to build
3890 Preserve Park Blvd SW, Madison AL 35756
Home by D.R. Horton
Last updated 3 days ago
The Price Range displayed reflects the base price of the homes built in this community.
You get to select from the many different types of homes built by this Builder and personalize your New Home with options and upgrades.
4 BR
3.5 BA
2 GR
2,688 SQ FT
Claim this listing to update information, get access to exclusive tools and more!

Floorplan 0 1/1
Overview
1 Half Bathroom
2 Car Garage
2 Stories
2688 Sq Ft
3 Bathrooms
4 Bedrooms
Single Family
Elm Plan Info
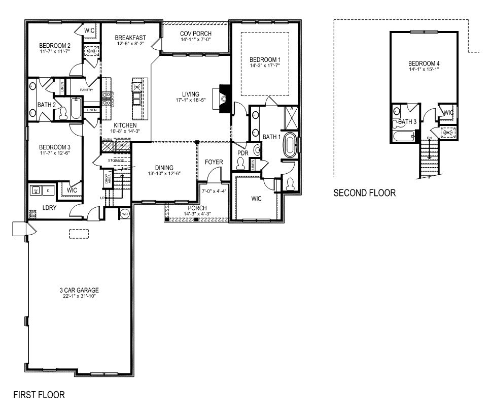
The Elm boasts 4 bedrooms, 3.5 bathrooms and a 2-car garage. It is a 2-story home with 2,688 square feet. A space for every imaginable use, this home exudes luxury and comfort. Enter through the heavy-wood door into the foyer. The open layout allows the formal dining room to open to great room area and continuously flow into the chef's kitchen. The gourmet kitchen boasts beautiful painted cabinetry, gorgeous granite counters, a large work island, gas cooktop, stainless steel dishwasher, and built-in wall mounted oven and microwave. The bar overhang is perfect for entertaining. A convenient breakfast nook off the kitchen includes access to the large rear covered patio. The owner's suite boasts plenty of room and features a spa-like primary bath. Enter the lavish primary bathroom with a large separate tub, double vanities, seamless glass & tiled shower, linen closet and separate water closet. Enjoy a large primary closet, utilized by sturdy wood shelving and windows for plenty of light. This floorplan showcases true "split" layout as two guest bedrooms and jack-and-jill style bath are on the opposing side of the home. A large laundry room and convenient "drop-zone" by door leading to garage includes a custom mud-bench for backpacks and coats. Retreat upstairs to a large 4th bedroom with walk-in closet and full bath. Schedule your tour to find your new home in this picturesque community today. Pictures are of similar home and not necessarily of subject property, including in
Floor plan center
View floor plan details for this property.
- Floor Plans
- Exterior Images
- Interior Images
- Other Media
Neighborhood
Community location & sales center
3890 Preserve Park Blvd SW
Madison, AL 35756
3890 Preserve Park Blvd SW
Madison, AL 35756
888-790-3488
Schools near Greenbrier Estates at Greenbrier Preserve
- Huntsville City School District
Actual schools may vary. Contact the builder for more information.
Amenities
Home details
Ready to build
Build the home of your dreams with the Elm plan by selecting your favorite options. For the best selection, pick your lot in Greenbrier Estates at Greenbrier Preserve today!
Builder details
D.R. Horton
In 1978, D.R. Horton broke ground on our first home in Fort Worth, Texas. Since that day, the company has defined its success not by bricks and mortar, but by the satisfaction of the families that make our houses their homes. Our foundation is a single, guiding principle: a value-first dedication to the individual needs of each and every one of our nation’s homebuyers.
From first-time homebuyers to empty nesters, our family of brands provides a home for every stage in life. Our highly-trained, market experts are where you want to live, from New Jersey to Hawaii, providing unique, personalized services tailored to your individual needs. But the real value comes from the quality construction we put into every home, and the peace of mind that comes with a premium-backed warranty from America’s Number One Homebuilder.
We’ve come a long way, and while more people choose our family of brands over any other builder in the country, we never forget the most important thing of all – the families that choose us for their place to call home.
So continue to live out those dreams, America, and know we’ll be here for you every step of the way.
More new homes in Madison, Alabama
Elm Plan by D.R. Horton
saved to favorites!
To see all the homes you’ve saved, visit the My Favorites section of your account.
Discover More Great Communities
Select additional listings for more information
Way to Go!
An agent will be in contact soon!
